- Home
- News
- Popular Property Categories
- Anna Maria Island Real Estate
- Bedroom Communities
- Bradenton Real Estate
- Charlotte Harbor Real Estate
- Downtown Sarasota Condos
- Ellenton Real Estate
- Englewood Real Estate
- Golf Community Real Estate
- Lakewood Ranch Real Estate
- Lido Key Condos
- Longboat Key Real Estate
- Luxury Real Estate
- New Homes for Sale
- Palmer Ranch Real Estate
- Palmetto Real Estate for Sale
- Parrish Real Estate
- Siesta Key Condos
- Siesta Key Homes and Land
- Venice Florida Real Estate
- West of the Trail
- Advanced Search Form
- Featured Listings
- Buyer or Seller?
- Our Company
- Featured Videos
- Login
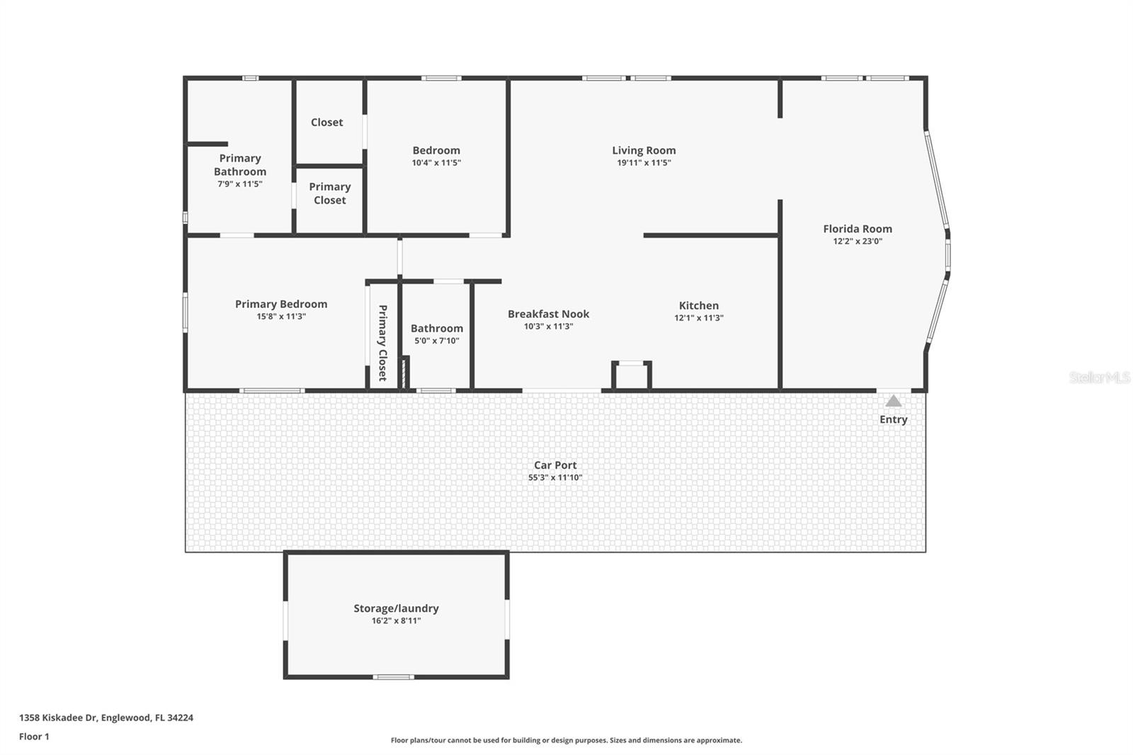
1358 Kiskadee Dr, Englewood, Florida
List Price: $239,000
MLS Number:
A4631554
- Status: Sold
- Sold Date: Feb 03, 2025
- Square Feet: 1320
- Bedrooms: 2
- Baths: 2
- Garage: 4
- City: ENGLEWOOD
- Zip Code: 34224
- Year Built: 1978
- HOA Fee: $35
- Payments Due: Annually
Welcome to this stunning updated 2-bedroom, 2-bathroom manufactured home in the sought-after Holiday Mobile Home Park Community, nestled in the lively community of Englewood. Discover your ideal getaway, investment or forever home in paradise. As you enter, you'll be greeted by an open floor plan that effortlessly blends the living, dining, and kitchen areas, creating a bright and inviting atmosphere ideal for relaxation and entertaining. The beachy interior and decor will make you feel right at home here in SW Florida. The kitchen boasts brand-new stainless steel appliances, new sleek countertops, new tile backsplash and plenty of cabinet space for all your storage needs. Each bathroom is elegantly designed with modern fixtures. The spacious bedrooms feature large closets for storage. One of the standout features of this home is the expansive carport with room for multiple vehicles. The enclosed Florida room will keep you cool year-round--perfect for sipping your beverage of choice, hosting friends, or unwinding after a busy day. Additional conveniences include a storage room with laundry area and plenty of room for your bikes, kayaks or pickleball equipment. Some of the updated features include: A new roof 2022, new carport, multiple new windows, new insulation, new plywood subfloor installed throughout, vapor barrier and insulation on roof & floor, new kitchen cabinetry, new vinyl planking throughout, new sliding doors, new fixtures, new vanity, new sinks, new gutters and downspouts outside and hurricane shutters. Holiday Mobile Estates, is a 55 plus Community, you own your land by fee-simple. Golf carts and Pets are welcome. The HOA fee is only $35 a year. For $300 annually, The Edgewater Beach Club allows you access to the heated swimming pool, tennis courts, shuffleboard, pickleball, bocce ball, and additional outdoor activities. Secure Your Piece of Paradise Today.
Misc Info
Subdivision: Holiday Mob Estates 3rd Add
Annual Taxes: $2,946
HOA Fee: $35
HOA Payments Due: Annually
Age Restrictions: 1
Lot Size: 0 to less than 1/4
Request the MLS data sheet for this property
Sold Information
CDD: $225,000
Sold Price per Sqft: $ 170.45 / sqft
Home Features
Appliances: Dishwasher, Dryer, Microwave, Range, Refrigerator, Washer
Flooring: Vinyl
Air Conditioning: Central Air
Exterior: Hurricane Shutters, Sidewalk, Storage, Tennis Court(s)
Room Dimensions
- Map
- Walk Score
- Street View

























































