- Home
- News
- Popular Property Categories
- Anna Maria Island Real Estate
- Bedroom Communities
- Bradenton Real Estate
- Charlotte Harbor Real Estate
- Downtown Sarasota Condos
- Ellenton Real Estate
- Englewood Real Estate
- Golf Community Real Estate
- Lakewood Ranch Real Estate
- Lido Key Condos
- Longboat Key Real Estate
- Luxury Real Estate
- New Homes for Sale
- Palmer Ranch Real Estate
- Palmetto Real Estate for Sale
- Parrish Real Estate
- Siesta Key Condos
- Siesta Key Homes and Land
- Venice Florida Real Estate
- West of the Trail
- Advanced Search Form
- Featured Listings
- Buyer or Seller?
- Our Company
- Featured Videos
- Login
4822 Ocean Blvd #9d, Sarasota, Florida
List Price: $1,200,000
MLS Number:
A4667328
- Status: Sold
- Sold Date: Nov 12, 2025
- Square Feet: 1440
- Bedrooms: 2
- Baths: 2
- City: SARASOTA
- Zip Code: 34242
- Year Built: 1973
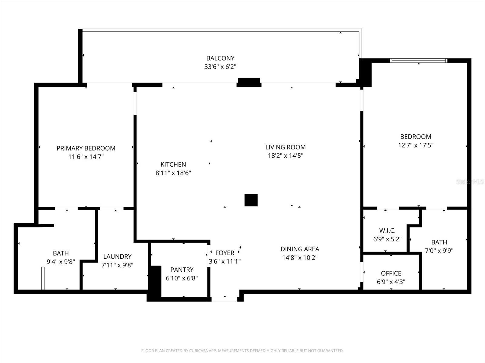
Welcome to Siesta Towers on Siesta Key, where breathtaking Gulf views meet luxurious modern living. Positioned high above on the 9th floor, this stunning 2-bedroom, 2-bath residence showcases sweeping vistas of the Gulf waters, Big Sarasota Pass, and Downtown Sarasota from its expansive private lanai. Completely remodeled with no expense speared, from the studs out in 2024. This 1,440 sq. ft. condo is brand new in every sense of the way. Updates include all new drywall, texture and paint, new plumbing, new electrical, new electrical panel, new hurricane-rated impact windows and sliding glass doors, new air conditioner, and a new hot water heater. Inside new high-end interior finishes, with no expense spared. The chef's inspired kitchen is equipped with custom cabinetry with soft close doors and drawers, beautiful quartz countertops, large island, undermount single bowl kitchen sink, designer tile backsplash, top-of-the-line GE stainless steel appliances, built-in island microwave, and a wine/beverage refrigerator. All new interior doors, closet doors, all new interior millwork to include crown molding, all new lighting and fixtures, new luxury vinyl flooring throughout. Beautifully re-designed bathrooms to include high-end porcelain tile, custom cabinetry with soft close doors and drawers, lighted mirrors, and glass enclosure showers, create a sophisticated yet inviting coastal ambiance. Also, a new in-unit full size washer & dryer with folding table, for ultimate convenience. This beautiful residence comes completely turnkey-furnished with designer-quality furnishings and carefully curated dcor, kitchenware, bedding, bathroom linens, and even high-end "Art Frame" TVs making it move-in ready for you to enjoy the Siesta Key lifestyle immediately. Siesta Towers itself has been thoughtfully updated throughout the building and grounds, offering resort-style amenities, including a state-of-the-art club room, fitness center, heated waterfront swimming pool, fishing pier, and a social pier perfect for sunset cocktails. Additional conveniences include storage room for beach equipment, bike storage and a very secure building environment. Whether you're seeking a full-time residence or a perfect beachside retreat, this pristine condo delivers the best of island living. Modern luxury, panoramic views, and resort-style amenities, all just minutes from the world-famous white sands of Siesta Beach. And with Siesta Key Village dining, shopping, and entertainment just a short walk away, this condo truly offers it all.
Misc Info
Subdivision: Siesta Towers
Annual Taxes: $9,836
Water Front: Gulf/Ocean
Water View: Gulf/Ocean - Full, Intracoastal Waterway
Water Access: Gulf/Ocean
Water Extras: Fishing Pier, Seawall - Concrete
Request the MLS data sheet for this property
Sold Information
CDD: $1,090,000
Sold Price per Sqft: $ 756.94 / sqft
Home Features
Appliances: Dishwasher, Disposal, Dryer, Microwave, Range, Washer, Wine Refrigerator
Flooring: Luxury Vinyl
Air Conditioning: Central Air
Exterior: Balcony, Sliding Doors
Garage Features: Assigned, Deeded, Ground Level, Guest, Open
Room Dimensions
- Map
- Walk Score
- Street View





































































