- Home
- News
- Popular Property Categories
- Anna Maria Island Real Estate
- Bedroom Communities
- Bradenton Real Estate
- Charlotte Harbor Real Estate
- Downtown Sarasota Condos
- Ellenton Real Estate
- Englewood Real Estate
- Golf Community Real Estate
- Lakewood Ranch Real Estate
- Lido Key Condos
- Longboat Key Real Estate
- Luxury Real Estate
- New Homes for Sale
- Palmer Ranch Real Estate
- Palmetto Real Estate for Sale
- Parrish Real Estate
- Siesta Key Condos
- Siesta Key Homes and Land
- Venice Florida Real Estate
- West of the Trail
- Advanced Search Form
- Featured Listings
- Buyer or Seller?
- Our Company
- Featured Videos
- Login
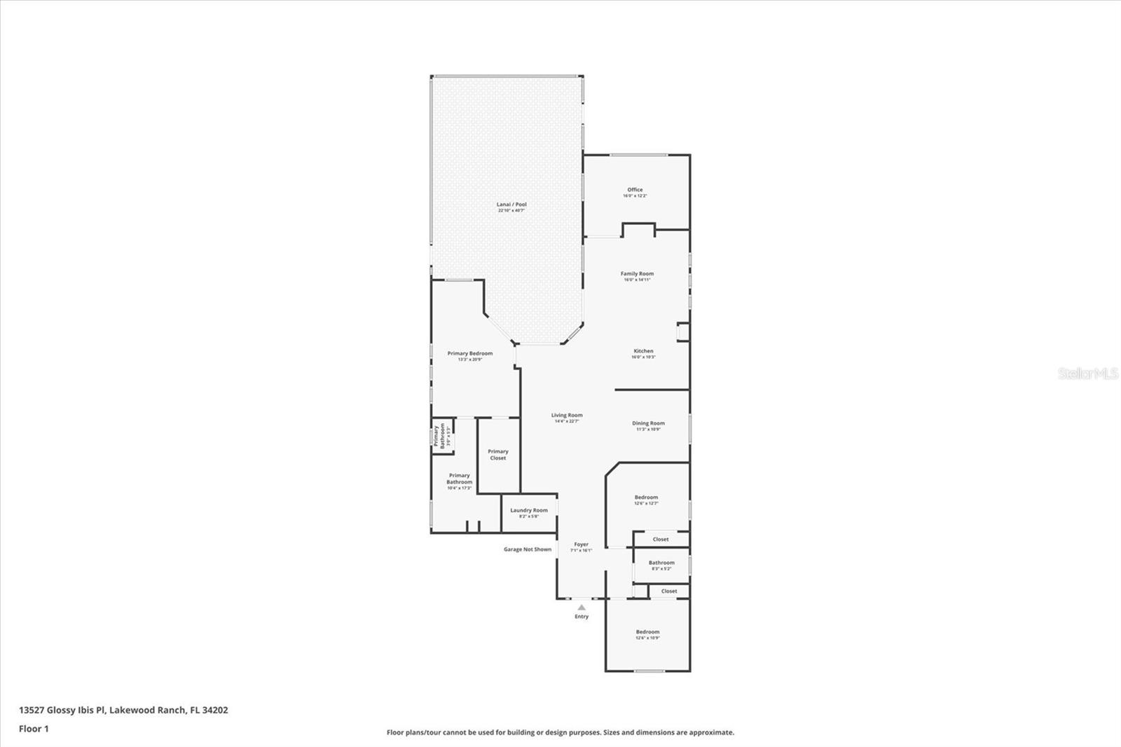
13527 Glossy Ibis Pl, Lakewood Ranch, Florida
List Price: $525,000
MLS Number:
A4669973
- Status: Active
- DOM: 8 days
- Square Feet: 2073
- Bedrooms: 3
- Baths: 2
- Garage: 2
- City: LAKEWOOD RANCH
- Zip Code: 34202
- Year Built: 2002
- HOA Fee: $115
- Payments Due: Annually
Welcome Home! This beautiful Bruce Williams home has been lovingly maintained by its original owner and features a new roof (2023) and hurricane impact windows and sliders (2023) offering peace of mind & insurance discounts. For double protection, the homeowner has fabric hurricane shades for all doors and windows. Fabulous floor plan has a split bedroom position. Primary bedroom with an ensuite bath: walk-in shower, tub, double sinks and private water closet. Large walk-in closet. Two separate bedrooms with a full bath. Living room, dining room, family room and kitchen have an open concept. Extra bonus room with lots of windows, used for home office, remote learning, exercise room or that hobby room you have been dreaming about. Kitchen has gas cooking, Corian counters, island and loads of cabinet storage. Elegant living room and dining room give you ample space for your entertaining needs or to have that place you have carved out for reading that great book. Kitchen is open to the family room with sliders out to the lanai. Whole house sound system with in-ceiling speakers in most rooms and outside. Pool area is the icing on the cake to complete your Florida lifestyle. Undercover area has plenty of space for your outdoor dining. Back yard is completely fenced in. Views of the long sparkling pond. HVAC & AC ductwork was replaced in 2020. AC returns were added to all bedrooms in 2020 when ducts were replaced. Dryer and water heater are also natural gas, but you have the option for an electric dryer and range if preferred. Added lighting throughout the home, high ceilings & crown molding are just a few of the added touches that create the elevated feel throughout. Move right in and enjoy this impeccably cared for retreat. You'll appreciated the details and little extras throughout. Lakewood Ranch is not just a destination; it's a lifestyle that many only dream about. Greenbrook Village is in the heart of Lakewood Ranch with the lowest fees in LWR making your dream to enjoy the lifestyle a reality! Minutes away you can enjoy Greenbrook Adventure Parks walking trails, playground, basketball courts, Sand Volleyball, Hockey, Soccer, baseball, covered pavilion and restrooms all surrounded by picturesque lakes and lush Florida landscaping. Close to great shopping, dining, entertainment and many additional parks throughout Lakewood Ranch, some that allow fishing and small boats. Top Schools - Fabulous Location - Amazing Neighborhood - Stunning Home - Great Price. Your new home awaits you.
Misc Info
Subdivision: Greenbrook Village Subphase K Unit 4 &5
Annual Taxes: $4,197
Annual CDD Fee: $1,626
HOA Fee: $115
HOA Payments Due: Annually
Water Front: Pond
Water View: Pond
Lot Size: 0 to less than 1/4
Request the MLS data sheet for this property
Home Features
Appliances: Dishwasher, Disposal, Dryer, Gas Water Heater, Microwave, Range, Refrigerator, Washer
Flooring: Carpet, Concrete, Tile
Air Conditioning: Central Air
Exterior: Hurricane Shutters, Lighting, Rain Gutters, Sidewalk, Sliding Doors
Garage Features: Driveway, Garage Door Opener
Room Dimensions
Schools
- Elementary: McNeal Elementary
- High: Lakewood Ranch High
- Map
- Walk Score
- Street View




























































