- Home
- News
- Popular Property Categories
- Anna Maria Island Real Estate
- Bedroom Communities
- Bradenton Real Estate
- Charlotte Harbor Real Estate
- Downtown Sarasota Condos
- Ellenton Real Estate
- Englewood Real Estate
- Golf Community Real Estate
- Lakewood Ranch Real Estate
- Lido Key Condos
- Longboat Key Real Estate
- Luxury Real Estate
- New Homes for Sale
- Palmer Ranch Real Estate
- Palmetto Real Estate for Sale
- Parrish Real Estate
- Siesta Key Condos
- Siesta Key Homes and Land
- Venice Florida Real Estate
- West of the Trail
- Advanced Search Form
- Featured Listings
- Buyer or Seller?
- Our Company
- Featured Videos
- Login
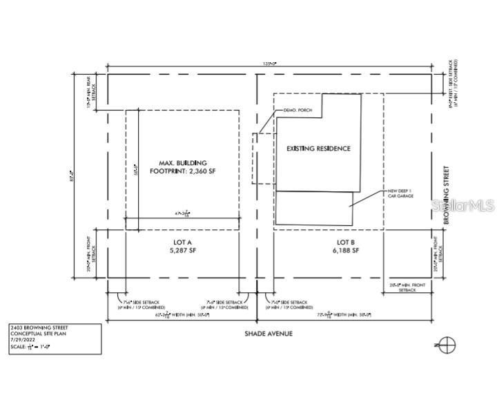
849 Shade Ave, Sarasota, Florida
List Price: $399,000
MLS Number:
A4670960
- Status: Active
- DOM: 21 days
- City: SARASOTA
- Zip Code: 34237
- Lot Size: Non-Applicable
Fully Engineered Plans that are ready to be submitted for permitting. Full set of plans can be viewed in person or digitally during due diligence. Photos are of proposed home for this vacant lot.
Request the MLS data sheet for this property
Land Features
Subdivision: Hudson Park
Utilities Available: Other
- Map
- Walk Score
- Street View






