- Home
- News
- Popular Property Categories
- Anna Maria Island Real Estate
- Bedroom Communities
- Bradenton Real Estate
- Charlotte Harbor Real Estate
- Downtown Sarasota Condos
- Ellenton Real Estate
- Englewood Real Estate
- Golf Community Real Estate
- Lakewood Ranch Real Estate
- Lido Key Condos
- Longboat Key Real Estate
- Luxury Real Estate
- New Homes for Sale
- Palmer Ranch Real Estate
- Palmetto Real Estate for Sale
- Parrish Real Estate
- Siesta Key Condos
- Siesta Key Homes and Land
- Venice Florida Real Estate
- West of the Trail
- Advanced Search Form
- Featured Listings
- Buyer or Seller?
- Our Company
- Featured Videos
- Login
14412 20th St E, Parrish, Florida
List Price: $489,000
MLS Number:
A4674971
- Status: Active
- DOM: 96 days
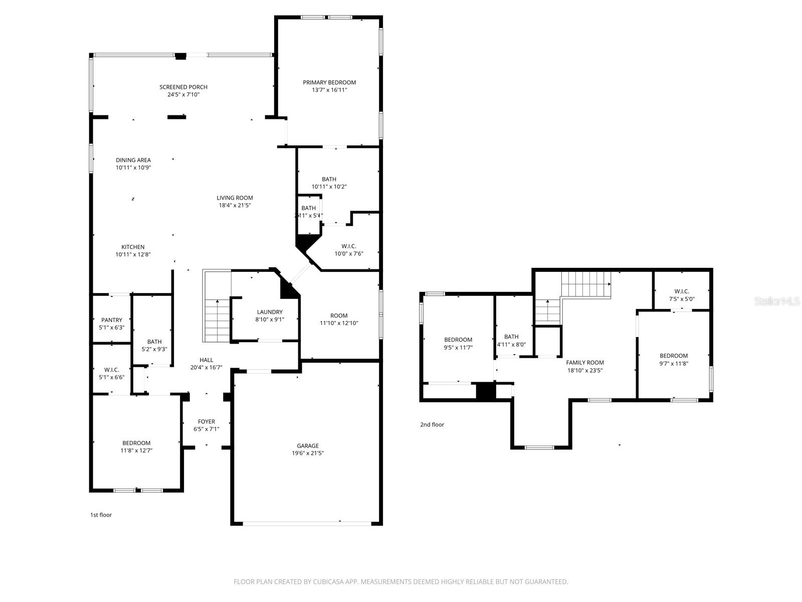
- Square Feet: 2613
- Bedrooms: 4
- Baths: 3
- Garage: 2
- City: PARRISH
- Zip Code: 34219
- Year Built: 2022
- HOA Fee: $173
- Payments Due: Quarterly
**Price Adjustment / Motivated Seller** If you want peace and tranquility, all the sophistication of an updated new build, and the comfort of having established neighbors and no construction by your house- then this is the one you're looking for! The neutral color pallet, smart layout, sound system wiring throughout the downstairs, and stylish quartz countertops all bring an elevated presence to this stunning property. The view through the double sliding glass doors brings the outside in so you can enjoy the serenity that the preserve brings to your every day life. The laundry room is completely finished- making even the mundane a pleasant experience. In the garage, the floors are epoxied and there are elevated storage racks for your convenience. The neighborhood lifestyle is definitely a highlight- with community yard sales, Easter egg hunts, food truck rallies, access to the river via boat ramp, multiple playgrounds, and golf cart parades- you'll be sure to love where you live! This isn't just your next house, it's your forever home.
Misc Info
Subdivision: Cove At Twin Rivers
Annual Taxes: $5,895
HOA Fee: $173
HOA Payments Due: Quarterly
Water Access: River
Water Extras: Boat Ramp - Private
Lot Size: 0 to less than 1/4
Request the MLS data sheet for this property
Home Features
Appliances: Convection Oven, Cooktop, Dishwasher, Disposal, Electric Water Heater, Exhaust Fan, Freezer, Microwave, Range, Range Hood, Refrigerator
Flooring: Carpet, Tile
Air Conditioning: Central Air
Exterior: Hurricane Shutters, Sliding Doors
Room Dimensions
- Map
- Walk Score
- Street View





























































