- Home
- News
- Popular Property Categories
- Anna Maria Island Real Estate
- Bedroom Communities
- Bradenton Real Estate
- Charlotte Harbor Real Estate
- Downtown Sarasota Condos
- Ellenton Real Estate
- Englewood Real Estate
- Golf Community Real Estate
- Lakewood Ranch Real Estate
- Lido Key Condos
- Longboat Key Real Estate
- Luxury Real Estate
- New Homes for Sale
- Palmer Ranch Real Estate
- Palmetto Real Estate for Sale
- Parrish Real Estate
- Siesta Key Condos
- Siesta Key Homes and Land
- Venice Florida Real Estate
- West of the Trail
- Advanced Search Form
- Featured Listings
- Buyer or Seller?
- Our Company
- Featured Videos
- Login
4984 Topsail Dr, Nokomis, Florida
List Price: $389,000
MLS Number:
A4677531
- Status: Active
- DOM: 91 days
- City: NOKOMIS
- Zip Code: 34275
- HOA Fee: $775
- Payments Due: Quarterly
- Water View: Pond
- Water Access: Intracoastal Waterway
- Water Extras: Boat Ramp - Private
- Lot Size: 1/4 to less than 1/2
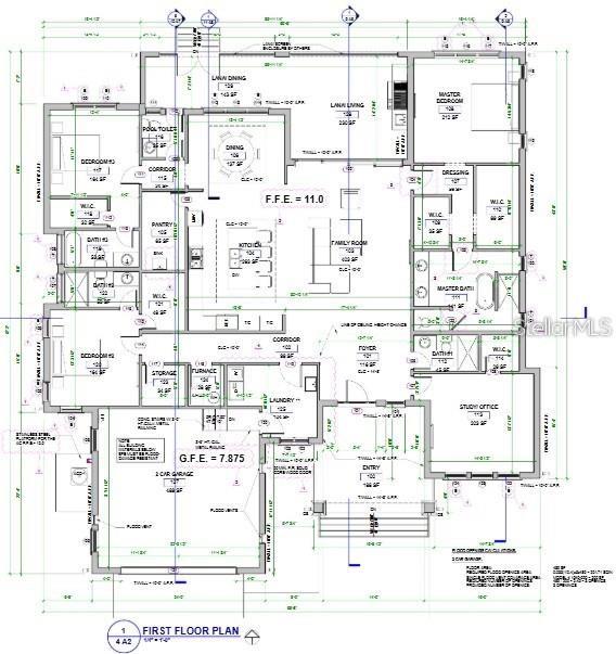
Offered AS-IS, this partially completed residential project presents a rare opportunity to build a custom home in the highly desirable Blackburn Estates community. Construction to date includes completed footers and stem walls filled with soil. The sale conveys active permits, approved building plans, a survey, drainage plan, and the full permit set, along with remaining building materials--most notably a complete package of high-end, impact-resistant hurricane-rated windows and doors.Buyers may choose to continue with the current builder or engage a builder of their choice, with all remaining construction to be completed at the buyer's expense. Surrounded by multi-million-dollar homes and located just minutes from some of the area's most beautiful beaches, the property also offers convenient access to the Intracoastal Waterway, ideal for kayaking, fishing, and waterfront recreation.An exceptional opportunity to complete a custom residence in a premier location--projects of this caliber in Blackburn Estates are seldom available.
Request the MLS data sheet for this property
Land Features
Subdivision: Blackburn Rdg Add
Utilities Available: Electricity Available, Public, Sewer Connected, Sprinkler Meter, Water Connected
- Map
- Walk Score
- Street View





















