- Home
- News
- Popular Property Categories
- Anna Maria Island Real Estate
- Bedroom Communities
- Bradenton Real Estate
- Charlotte Harbor Real Estate
- Downtown Sarasota Condos
- Ellenton Real Estate
- Englewood Real Estate
- Golf Community Real Estate
- Lakewood Ranch Real Estate
- Lido Key Condos
- Longboat Key Real Estate
- Luxury Real Estate
- New Homes for Sale
- Palmer Ranch Real Estate
- Palmetto Real Estate for Sale
- Parrish Real Estate
- Siesta Key Condos
- Siesta Key Homes and Land
- Venice Florida Real Estate
- West of the Trail
- Advanced Search Form
- Featured Listings
- Buyer or Seller?
- Our Company
- Featured Videos
- Login
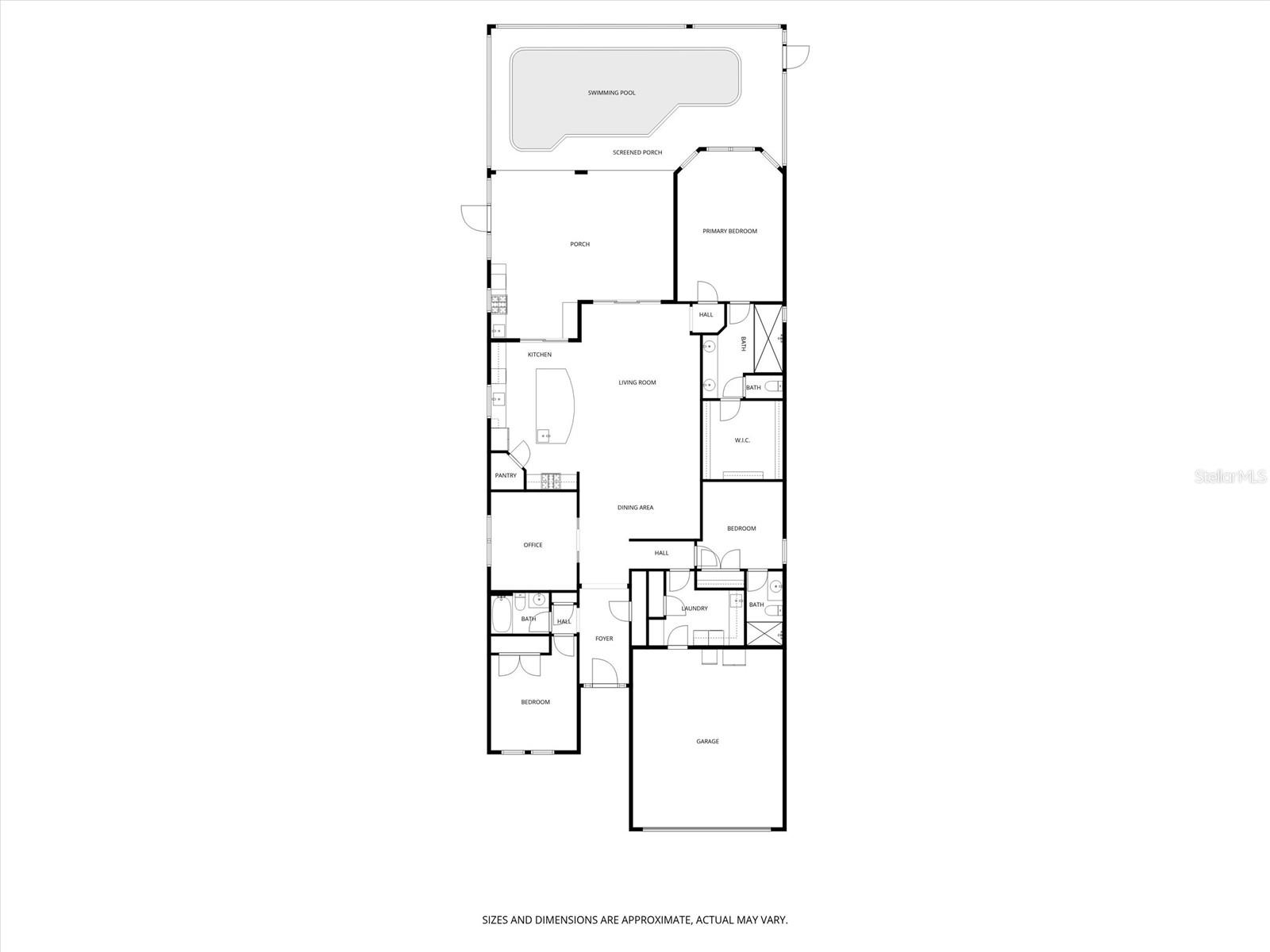
10131 Craftsman Park Way, Palmetto, Florida
List Price: $749,900
MLS Number:
A4680658
- Status: Active
- DOM: 44 days
- Square Feet: 2289
- Bedrooms: 3
- Baths: 3
- Garage: 2
- City: PALMETTO
- Zip Code: 34221
- Year Built: 2017
- HOA Fee: $1,560
- Payments Due: Quarterly
New Update - Now Including Billiard / Ping Pong / Dining table with acceptable offers. Unbeatable Value: Enjoy the ultimate financial perk-the CDD is fully paid off, and your HOA includes yard maintenance, irrigation, internet, and cable.Welcome to the Pinnacle of Resort Living where Luxury, Privacy, and Peace of Mind enable you to experience a life of effortless elegance in this meticulously upgraded sanctuary within the prestigious Esplanade at Artisan Lakes. Every detail has been curated for those who demand the finest in turnkey living, from the grand architectural bones to a backyard oasis that rivals five-star retreats. The home's Architectural Grandeur & Refined Interiors with 10-foot ceilings and 8-foot doors that create a voluminous, airy atmosphere, while elegant archways and crisp crown molding add a touch of timeless custom artistry. The living areas of the home features sophisticated block-pattern porcelain tile, offering a high-end look with maximum durability. The Beautiful Kitchen is anchored by a massive island with a dedicated food prep sink, perfect for the home chef. The laundry room is a functional masterpiece with a utility sink, custom cabinetry, and a dedicated drop zone. The home provides extra Storage as the master suite features an extended walk-in closet, complemented by a 4-foot garage extension-ideal for extra storage and can even accommodate a golf cart. Your Private Tropical Oasis awaits as you step through the Phantom front door screen and out to a backyard designed for the ultimate Florida lifestyle. The extended covered lanai flows into a massive outdoor living area featuring: The Pool: A shimmering 30-foot saltwater pool with a gas heater for year-round enjoyment. The View: A picture-frame pool cage with premium screening offers unobstructed views of the lush surroundings. Outdoor Dining: A stunning outdoor kitchen with tons of storage makes al fresco hosting a dream. Privacy & Protection: Florida glass on the side lanai opening provides secluded peace, while hurricane screens on all lanai openings and whole-house gutters offer total peace of mind. Experience Exclusive Esplanade Lifestyle Living in Esplanade at Artisan Lakes which means more than just a beautiful home; it's a membership to a vibrant, active community. Enjoy world-class amenities just steps from your door. Wellness & Recreation: A state-of-the-art Fitness Center, movement studio, and a Resort style zero entry Pool and Resistance Pool. Social & Leisure: A grand Resort Clubhouse with a catering kitchen, billiards room, and fire pits. Court Sports: Compete on professional-grade Pickleball, Tennis, and Bocce Ball courts. Curated Living: A full-time on-site Lifestyle Manager coordinates signature events, wine tastings, and wellness programs. This isn't just a house; it's a lifestyle upgrade where every "extra" is already included and the social calendar is always full.
Misc Info
Subdivision: Artisan Lakes Esplanade Ph I Sp A-d
Annual Taxes: $4,925
Annual CDD Fee: $177
HOA Fee: $1,560
HOA Payments Due: Quarterly
Water View: Pond
Lot Size: 0 to less than 1/4
Request the MLS data sheet for this property
Home Features
Appliances: Dishwasher, Disposal, Dryer, Gas Water Heater, Ice Maker, Microwave, Range, Refrigerator, Tankless Water Heater, Washer
Flooring: Carpet, Concrete, Tile
Air Conditioning: Central Air
Exterior: Hurricane Shutters, Outdoor Grill, Outdoor Kitchen, Rain Gutters, Sidewalk
Garage Features: Driveway, Garage Door Opener, Ground Level
Room Dimensions
Schools
- Elementary: James Tillman Elementary
- High: Palmetto High
- Map
- Walk Score
- Street View




































































