- Home
- News
- Popular Property Categories
- Anna Maria Island Real Estate
- Bedroom Communities
- Bradenton Real Estate
- Charlotte Harbor Real Estate
- Downtown Sarasota Condos
- Ellenton Real Estate
- Englewood Real Estate
- Golf Community Real Estate
- Lakewood Ranch Real Estate
- Lido Key Condos
- Longboat Key Real Estate
- Luxury Real Estate
- New Homes for Sale
- Palmer Ranch Real Estate
- Palmetto Real Estate for Sale
- Parrish Real Estate
- Siesta Key Condos
- Siesta Key Homes and Land
- Venice Florida Real Estate
- West of the Trail
- Advanced Search Form
- Featured Listings
- Buyer or Seller?
- Our Company
- Featured Videos
- Login
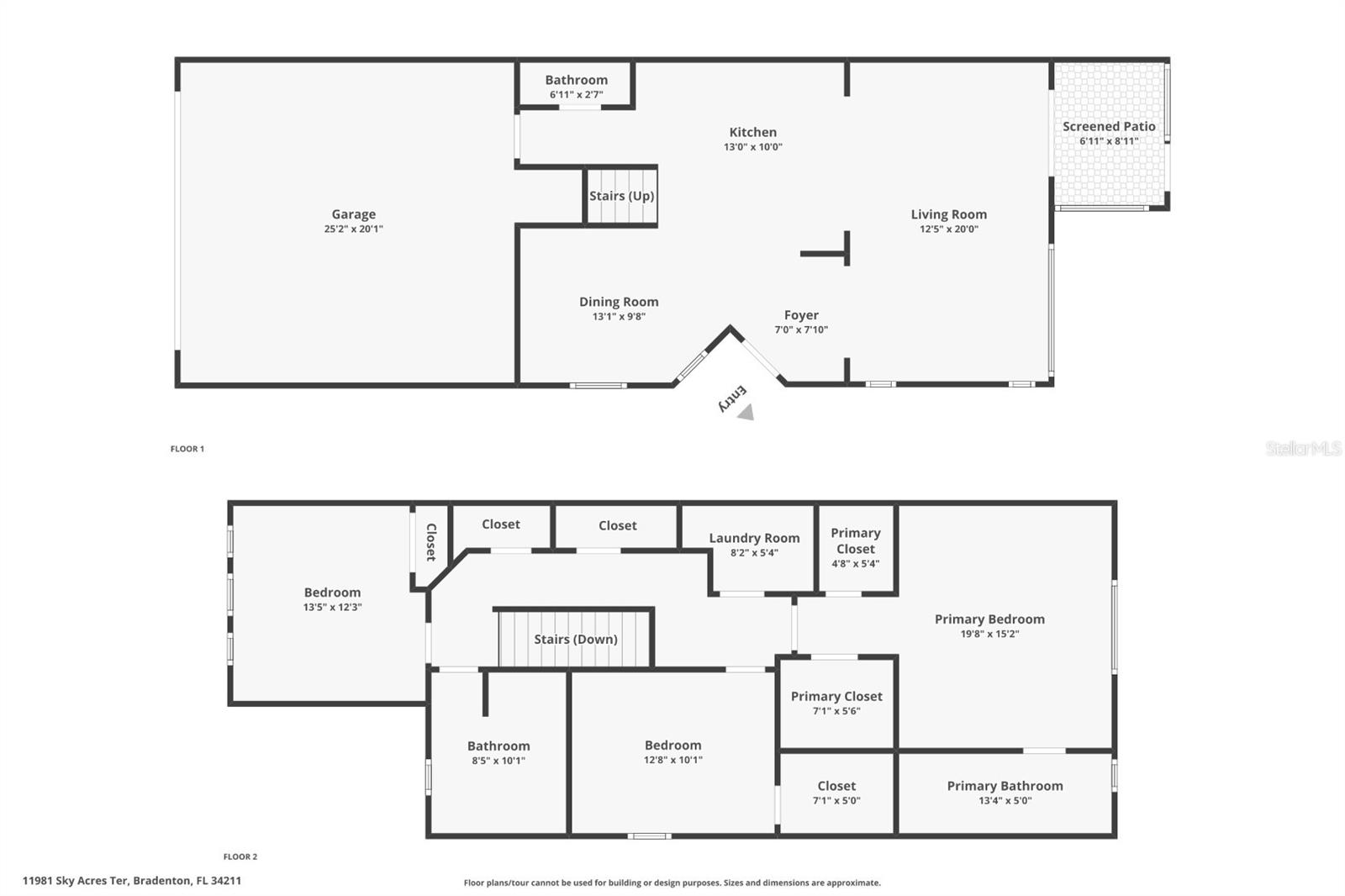
11981 Sky Acres Ter, Bradenton, Florida
List Price: $450,000
MLS Number:
A4680968
- Status: Active
- DOM: 66 days
- Square Feet: 1747
- Bedrooms: 3
- Baths: 2
- Half Baths: 1
- Garage: 2
- City: BRADENTON
- Zip Code: 34211
- Year Built: 2023
- HOA Fee: $313
- Payments Due: Monthly
This stunning house to call HOME is located at 11981 Sky Acres Terrace, Bradenton, FL 34211, nestled in Lakewood Ranch, which is tucked into a quiet, family-friendly neighborhood and offers a perfect blend of comfort, style, and everyday convenience, with supermarkets, convenience stores, your favorite restaurants, great schools, gyms, coffee shops, and additional recreational options all just moments away. Thoughtfully designed for cozy yet spacious living, the home features 3 inviting bedrooms, 2 bathrooms, a 2-car garage, and a warm, welcoming layout that instantly feels like home, including a bright great room and a dedicated dining area ideal for gatherings and relaxed evenings. Step outside to a charming lanai, perfect for soaking in the warm Florida sunshine, enjoying peaceful mornings, or unwinding after a long day. The kitchen is a true showpiece, offering tons of space with elegant 42" upper cabinets, gleaming quartz countertops, and a generously sized peninsula that serves as both a stunning focal point and a perfect spot for casual dining, entertaining, or morning coffee, all while including every essential kitchen appliance for effortless living. Residents also enjoy access to a beautifully maintained community featuring a pool, fitness center, and playground, while Downtown Lakewood Ranch is just 10 minutes away, delivering endless family fun, diverse restaurants, live music, art and fashion events, relaxing spas, and lively food festivals, making this home a comfortable, cozy retreat perfectly positioned in the heart of it all. Tucked away on a peaceful cul-de-sac, this home enjoys the added luxury of privacy and safety and a quiet, close-knit atmosphere that enhances everyday living. Enjoy your perfect Florida family lifestyle with this home! A MUST SEE PROPERTY YOU WILL FALL IN LOVE WITH!
Misc Info
Subdivision: Harmony At Lakewood Ranch Ph Ii-c 1-4
Annual Taxes: $5,652
HOA Fee: $313
HOA Payments Due: Monthly
Water Front: Pond
Water View: Pond
Lot Size: 0 to less than 1/4
Request the MLS data sheet for this property
Home Features
Appliances: Dishwasher, Disposal, Dryer, Electric Water Heater, Microwave, Range, Refrigerator, Washer
Flooring: Carpet, Tile
Air Conditioning: Central Air
Exterior: Hurricane Shutters, Sidewalk, Sliding Doors
Room Dimensions
- Map
- Walk Score
- Street View
















































































