- Home
- News
- Popular Property Categories
- Anna Maria Island Real Estate
- Bedroom Communities
- Bradenton Real Estate
- Charlotte Harbor Real Estate
- Downtown Sarasota Condos
- Ellenton Real Estate
- Englewood Real Estate
- Golf Community Real Estate
- Lakewood Ranch Real Estate
- Lido Key Condos
- Longboat Key Real Estate
- Luxury Real Estate
- New Homes for Sale
- Palmer Ranch Real Estate
- Palmetto Real Estate for Sale
- Parrish Real Estate
- Siesta Key Condos
- Siesta Key Homes and Land
- Venice Florida Real Estate
- West of the Trail
- Advanced Search Form
- Featured Listings
- Buyer or Seller?
- Our Company
- Featured Videos
- Login
3917 Desoto Rd, Sarasota, Florida
List Price: $575,000
MLS Number:
A4681269
- Status: Active
- Square Feet: 3052
- Bedrooms: 4
- Baths: 3
- City: SARASOTA
- Zip Code: 34235
- Year Built: 1984
- HOA Fee: $200
- Payments Due: Annually
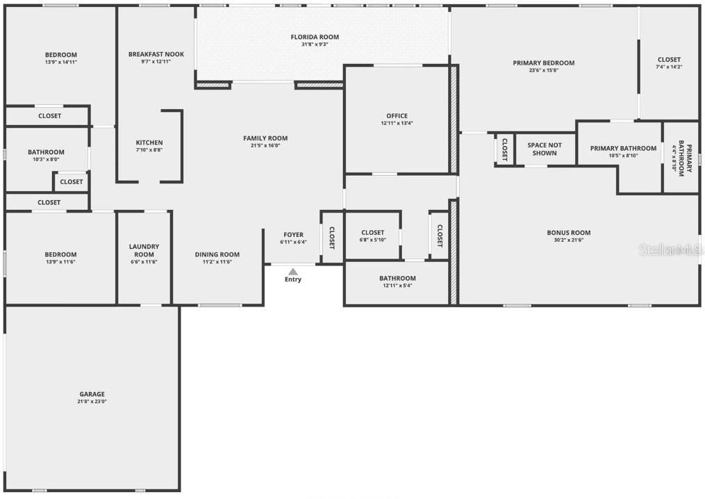
Gorgeous home on a sprawling one acre one acre property off of Desoto Road! This property offers the rare combination of space, versatility, and prime Sarasota location. The home is a 4 bedroom 3 baths plus an office, is over 3,000 square feet, and features an extra large two car garage. Designed for flexibility, the 4th bedroom / bonus room and office can be used as a private in-residence suite complete with its own kitchenette, living area, bedroom, and full bath--ideal for multi-generational living, long-term guests, or a private office retreat. The main home offers multiple living areas and a highly functional layout, creating seamless flow for both everyday comfort and entertaining. Thoughtful updates include a roof replaced just six years ago and a newer air-conditioning system--providing peace of mind and modern convenience. Perfectly positioned just 10 minutes from the shopping, dining, and entertainment of University Town Center and approximately 15 minutes to the vibrant culture and waterfront of downtown Sarasota, this property delivers privacy without sacrificing proximity. A rare opportunity to own acreage and square footage in one of Sarasota's most accessible locations.Perfectly positioned just 10 minutes from the shopping, dining, and entertainment of University Town Center and approximately 15 minutes to the vibrant culture and waterfront of downtown Sarasota, this property delivers privacy without sacrificing proximity.A rare opportunity to own acreage and square footage in one of Sarasota's most accessible locations.
Misc Info
Subdivision: Desoto Pines
Annual Taxes: $5,196
HOA Fee: $200
HOA Payments Due: Annually
Lot Size: 1 to less than 2
Request the MLS data sheet for this property
Home Features
Appliances: Dryer, Microwave, Range, Refrigerator, Washer
Flooring: Carpet, Laminate, Tile, Vinyl
Air Conditioning: Central Air
Exterior: French Doors, Hurricane Shutters, Rain Gutters, Sidewalk, Sliding Doors
Room Dimensions
- Map
- Walk Score
- Street View
















































