- Home
- News
- Popular Property Categories
- Anna Maria Island Real Estate
- Bedroom Communities
- Bradenton Real Estate
- Charlotte Harbor Real Estate
- Downtown Sarasota Condos
- Ellenton Real Estate
- Englewood Real Estate
- Golf Community Real Estate
- Lakewood Ranch Real Estate
- Lido Key Condos
- Longboat Key Real Estate
- Luxury Real Estate
- New Homes for Sale
- Palmer Ranch Real Estate
- Palmetto Real Estate for Sale
- Parrish Real Estate
- Siesta Key Condos
- Siesta Key Homes and Land
- Venice Florida Real Estate
- West of the Trail
- Advanced Search Form
- Featured Listings
- Buyer or Seller?
- Our Company
- Featured Videos
- Login
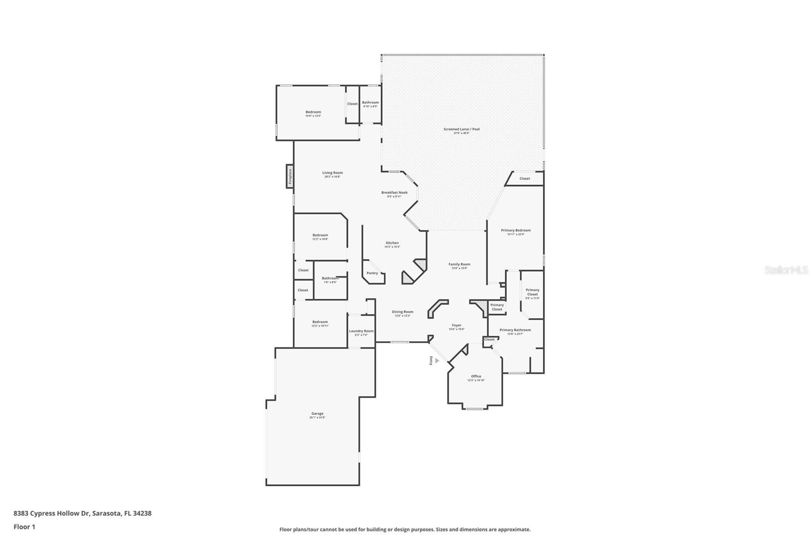
8383 Cypress Hollow Dr, Sarasota, Florida
List Price: $900,000
MLS Number:
A4681688
- Status: Active
- DOM: 75 days
- Square Feet: 3007
- Bedrooms: 4
- Baths: 3
- Garage: 3
- City: SARASOTA
- Zip Code: 34238
- Year Built: 1992
- HOA Fee: $615
- Payments Due: Quarterly
Welcome to this simply spectacular. welcoming home in the gated community of Deer Creek in Sarasota's Palmer Ranch. This quality-built four-bedroom pool home, plus a den and three full baths, sits on a peaceful lake and is designed to truly enjoy Florida living--inside and out.Natural light pours in through multiple windows and sliders, creating a bright, open feel and easy access to the private screened pool and lanai. The spacious gourmet kitchen is the heart of the home, featuring solid stone countertops, a large island, and a breakfast bar--perfect for everyday living or entertaining. Open to the kitchen, the family room offers a cozy fireplace and a comfortable space to gather.The home is thoughtfully laid out with separate living and dining rooms, ideal for hosting family and friends while still keeping everyday spaces relaxed and inviting. A split bedroom plan provides privacy for the owners' suite, which includes large closets and a well-appointed en-suite bath. Some hurricane-impact windows and sliders add peace of mind.Deer Creek offers a 24-hour guard gate, scenic lakes and preserve views, low HOA fees, and no CDD. Conveniently located near Siesta Key Beach, shopping at Publix and Costco, the YMCA, golf courses, the Legacy Trail, and downtown Sarasota's dining, shopping, and cultural events, this home combines comfort, style, and an unbeatable location.
Misc Info
Subdivision: Deer Creek
Annual Taxes: $5,407
HOA Fee: $615
HOA Payments Due: Quarterly
Water Front: Pond
Water View: Lake
Lot Size: 1/4 to less than 1/2
Request the MLS data sheet for this property
Home Features
Appliances: Cooktop, Dishwasher, Disposal, Dryer, Microwave, Refrigerator, Washer
Flooring: Carpet, Tile
Fireplace: Gas
Air Conditioning: Central Air
Exterior: Private Mailbox, Rain Gutters, Sliding Doors
Room Dimensions
Schools
- Elementary: Gulf Gate Elementary
- High: Riverview High
- Map
- Walk Score
- Street View







































































