- Home
- News
- Popular Property Categories
- Anna Maria Island Real Estate
- Bedroom Communities
- Bradenton Real Estate
- Charlotte Harbor Real Estate
- Downtown Sarasota Condos
- Ellenton Real Estate
- Englewood Real Estate
- Golf Community Real Estate
- Lakewood Ranch Real Estate
- Lido Key Condos
- Longboat Key Real Estate
- Luxury Real Estate
- New Homes for Sale
- Palmer Ranch Real Estate
- Palmetto Real Estate for Sale
- Parrish Real Estate
- Siesta Key Condos
- Siesta Key Homes and Land
- Venice Florida Real Estate
- West of the Trail
- Advanced Search Form
- Featured Listings
- Buyer or Seller?
- Our Company
- Featured Videos
- Login
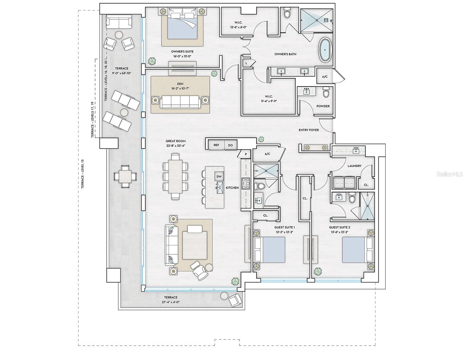
1000 Boulevard Of The Arts #1710, Sarasota, Florida
List Price: $3,499,000
MLS Number:
A4682060
- Status: Active
- DOM: 80 days
- Square Feet: 2800
- Bedrooms: 3
- Baths: 4
- Garage: 1
- City: SARASOTA
- Zip Code: 34236
- Year Built: 2026
Pre-Construction. To be built. Residence 1710 offers a distinctive harbor-front perspective from the 17th floor, overlooking Quay Harbor, the Ringling Bridge, and glimpses of The Gulf in the distance. Part of the elevated Harbor residence collection, this home captures the movement of marina life, yachting and sunset skies, creating a dynamic and visually engaging living environment. The interior features an open, contemporary layout with floor-to-ceiling glass, a refined kitchen with European cabinetry and premium appliances, and a generous private terrace oriented toward the harbor and bridge views. The primary suite is designed as a tranquil retreat with a spa-inspired bath, while additional bedrooms provide comfort and privacy. A den offers flexible space for work or relaxation. At 1000 Boulevard of the Arts, residents enjoy an accessible waterfront lifestyle in Sarasota's Quay Waterfront District, with access to resort-style amenities, concierge services, and immediate proximity to dining, cultural venues and marina promenades.
Misc Info
Subdivision: 1000 Boulevard Of The Arts
Water Front: Bay/Harbor
Water View: Bay/Harbor - Full, Marina
Water Access: Bay/Harbor
Request the MLS data sheet for this property
Home Features
Appliances: Built-In Oven, Cooktop, Dishwasher, Disposal, Dryer, Ice Maker, Microwave, Range Hood, Refrigerator, Washer
Flooring: Carpet, Tile
Air Conditioning: Central Air
Exterior: Balcony, Sliding Doors
Garage Features: Assigned, Circular Driveway, Covered, Valet
Pool Size: 52x31
Room Dimensions
Schools
- Elementary: Alta Vista Elementary
- High: Booker High
- Map
- Walk Score
- Street View














