- Home
- News
- Popular Property Categories
- Anna Maria Island Real Estate
- Bedroom Communities
- Bradenton Real Estate
- Charlotte Harbor Real Estate
- Downtown Sarasota Condos
- Ellenton Real Estate
- Englewood Real Estate
- Golf Community Real Estate
- Lakewood Ranch Real Estate
- Lido Key Condos
- Longboat Key Real Estate
- Luxury Real Estate
- New Homes for Sale
- Palmer Ranch Real Estate
- Palmetto Real Estate for Sale
- Parrish Real Estate
- Siesta Key Condos
- Siesta Key Homes and Land
- Venice Florida Real Estate
- West of the Trail
- Advanced Search Form
- Featured Listings
- Buyer or Seller?
- Our Company
- Featured Videos
- Login
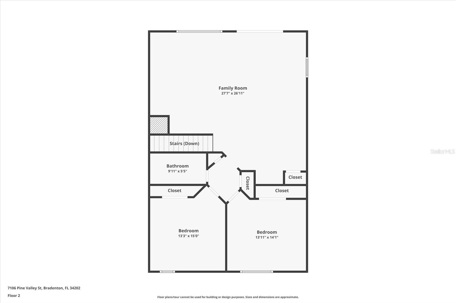
7106 Pine Valley St, Bradenton, Florida
List Price: $1,200,000
MLS Number:
A4682957
- Status: Active
- DOM: 32 days
- Square Feet: 3736
- Bedrooms: 4
- Baths: 3
- Half Baths: 1
- Garage: 3
- City: BRADENTON
- Zip Code: 34202
- Year Built: 2003
- HOA Fee: $916
- Payments Due: Annually
Welcome to this fully remodeled golf course home in River Club in Lakewood Ranch, ideally positioned on the 17th fairway of the River Club Golf Course with peaceful lake views in the front and expansive golf course views in the rear. This River Club property offers rare privacy with no home directly across the street or behind, a larger homesite, and extensive impact window and door upgrades.River Club in Lakewood Ranch is known for oversized lots, mature landscaping, low HOA fees, and no CDD fees, making it one of the most desirable established golf course communities near Sarasota.This upgraded River Club home features a circular driveway, elevated lot, luxury vinyl plank flooring, a custom built entertainment center, and an open layout ideal for entertaining. The remodeled kitchen includes stainless steel appliances, generous counter space, a custom pantry, and a dedicated coffee and wine bar.Designed for Florida living, this home includes a saltwater pool and spa, outdoor kitchen, pool bath, and clearview screened lanai overlooking the 17th fairway. Retractable shades and professional landscape lighting enhance both comfort and curb appeal.Additional features include a buried 250 gallon propane tank, impact rated windows and doors, custom fitted closets, plantation shutters, and power honeycomb shades for energy efficiency.Located just minutes from Main Street Lakewood Ranch, Waterside Place, downtown Sarasota, Gulf Coast beaches, I-75, and Sarasota Bradenton International Airport, this River Club golf course home offers space, privacy, and long term value in one of the most strategically located communities in the Lakewood Ranch area.If you are searching for River Club homes for sale with a pool, large lot, impact windows, and golf course views, this property checks every box.
Misc Info
Subdivision: River Club South Subphase Iv
Annual Taxes: $7,294
HOA Fee: $916
HOA Payments Due: Annually
Water Front: Lake Front, Pond
Water View: Lake, Pond
Lot Size: 1/2 to less than 1
Request the MLS data sheet for this property
Home Features
Appliances: Built-In Oven, Cooktop, Dishwasher, Disposal, Dryer, Gas Water Heater, Microwave, Refrigerator, Washer
Flooring: Carpet, Luxury Vinyl
Fireplace: Gas
Air Conditioning: Central Air
Exterior: Awning(s), Garden, Lighting, Outdoor Grill, Outdoor Kitchen, Private Mailbox, Rain Gutters, Sliding Doors
Room Dimensions
Schools
- Elementary: Braden River Elementary
- High: Lakewood Ranch High
- Map
- Walk Score
- Street View
























































