- Home
- News
- Popular Property Categories
- Anna Maria Island Real Estate
- Bedroom Communities
- Bradenton Real Estate
- Charlotte Harbor Real Estate
- Downtown Sarasota Condos
- Ellenton Real Estate
- Englewood Real Estate
- Golf Community Real Estate
- Lakewood Ranch Real Estate
- Lido Key Condos
- Longboat Key Real Estate
- Luxury Real Estate
- New Homes for Sale
- Palmer Ranch Real Estate
- Palmetto Real Estate for Sale
- Parrish Real Estate
- Siesta Key Condos
- Siesta Key Homes and Land
- Venice Florida Real Estate
- West of the Trail
- Advanced Search Form
- Featured Listings
- Buyer or Seller?
- Our Company
- Featured Videos
- Login
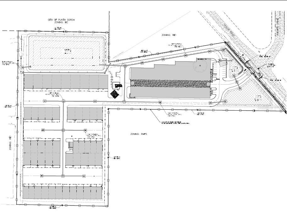
5225 Taylor Rd, Punta Gorda, Florida
List Price: $300,000
MLS Number:
A4684223
Subdivision:
- Status: Active
- DOM: 41 days
- City: PUNTA GORDA
- Zip Code: 33950
- Year Built: 2026
Under Construction. At Florida Premier Garage Condos, we are committed to building every facility with uncompromising quality, structural integrity, and long-term durability in mind. Our construction process is rooted in professionally engineered designs, independently verified testing, and industry-best practices to ensure that each owner receives a product built to last for decades. Because a garage condo is a significant investment, we have created a list of important questions that every buyer should ask--both of us, and of any other facility they may be considering.Not every facility in the market is built to the same standards, make sure you are asking the right questions, not just for today, but also for your long term ownership interests.Key Construction Advantages:- masonry construction, including all interior and exterior walls- Precast hollow core roof panels for enhanced durability- Reinforcing downrods every 16 inches for added stability- Intermediate tie-beam / bond-beam for increased structural rigidity- 2-hour fire-rated masonry walls between adjoining units- Units engineered to Florida's strictest building codes- 30" x 30" interior footers designed to support future mezzanine additions- Built to withstand Florida's heat, humidity, storms, and timeCraftsmanship Highlights:- Built by skilled local engineers, masons, electricians, and finish specialists- Precision construction from foundation through finishing- Consistent attention to detail and structural accuracy- Teams who take pride in creating a product that performs and lasts- A build process that ensures both functionality and aesthetic qualityPremium Features Include:- Insulated garage doors for energy efficiency and comfort- LED lighting throughout each unit- Individual electrical meters billed directly to unit owners- Smart WiFi-enabled systems, including: Garage door openers, Door locks, AC controls- Laundry sink for easy cleanup- Water spigot included with water & sewer provided through POA fees- WiFi access for remote control and convenience- Structural readiness for customizations like mezzanines, workshops, or personalized upgradesUnit Size Mix:40 FT Wide By 60 FT Deep32 FT Wide By 52 FT Deep30 FT Wide By 52 FT Deep25 FT Wide By 52 FT DeepCall for more information!
Misc Info
Annual Taxes: $2,993
Lot Size: 10 to less than 20
Request the MLS data sheet for this property
Home Features
Flooring: Concrete
Air Conditioning: Mini-Split Unit(s)
Garage Features: RV Access/Parking
Room Dimensions
- Map
- Walk Score
- Street View










