- Home
- News
- Popular Property Categories
- Anna Maria Island Real Estate
- Bedroom Communities
- Bradenton Real Estate
- Charlotte Harbor Real Estate
- Downtown Sarasota Condos
- Ellenton Real Estate
- Englewood Real Estate
- Golf Community Real Estate
- Lakewood Ranch Real Estate
- Lido Key Condos
- Longboat Key Real Estate
- Luxury Real Estate
- New Homes for Sale
- Palmer Ranch Real Estate
- Palmetto Real Estate for Sale
- Parrish Real Estate
- Siesta Key Condos
- Siesta Key Homes and Land
- Venice Florida Real Estate
- West of the Trail
- Advanced Search Form
- Featured Listings
- Buyer or Seller?
- Our Company
- Featured Videos
- Login
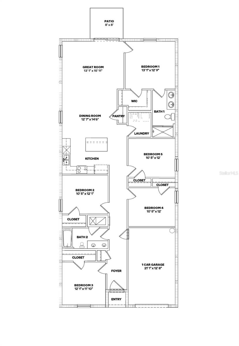
17902 Wheat Stack Ct, Parrish, Florida
List Price: $354,000
MLS Number:
A4684745
- Status: Active
- DOM: 59 days
- Square Feet: 1739
- Bedrooms: 5
- Baths: 2
- Garage: 1
- City: PARRISH
- Zip Code: 34219
- Year Built: 2026
- HOA Fee: $132
- Payments Due: Monthly
Under Construction. EXTENDED REDTAG SALE Receive up to $30,000 towards Flex Cash & closing costs, $5,000 towards upgrades and special interest rates with the use of our preferred lender - Now through Sunday, May 3rd. The Alford is a one-story home that balances style, space, and comfort. Offering 5 bedrooms, 2 bathrooms, and 1,739 square feet, this floor plan provides plenty of room for families of all sizes. Its open-concept layout seamlessly connects the kitchen, dining, and living areas, creating a welcoming space that's ideal for gatherings or everyday living. The kitchen is a standout with shaker-style cabinetry, quartz countertops, and stainless-steel appliances, all overlooking the dining area for easy entertaining. With its thoughtful layout and modern finishes, the Alford makes it easy to create the home that fits your lifestyle. The primary suite is tucked at the back of the home for added privacy, featuring a walk-in closet and a private bathroom with dual vanities and a separate space for the shower and toilet. Four additional bedrooms at the front of the home offers flexibility for family, guests, or even a home office. This community offers resort-style living with amenities for everyone, including a sparkling pool, fitness room, playground, dog park, and both pickleball and tennis courts. Residents can also enjoy friendly competition at the beach volleyball and basketball courts, creating the perfect blend of relaxation and recreation.
Misc Info
Subdivision: Rye Crossing
Annual CDD Fee: $1,415
HOA Fee: $132
HOA Payments Due: Monthly
Water View: Pond
Lot Size: 0 to less than 1/4
Request the MLS data sheet for this property
Home Features
Appliances: Dishwasher, Dryer, Microwave, Range, Refrigerator, Washer
Flooring: Carpet, Luxury Vinyl
Air Conditioning: Central Air
Exterior: Hurricane Shutters
Garage Features: Driveway, Garage Door Opener
Room Dimensions
Schools
- Elementary: Gene Witt Elementary
- High: Parrish Community High
- Map
- Walk Score
- Street View














