- Home
- News
- Popular Property Categories
- Anna Maria Island Real Estate
- Bedroom Communities
- Bradenton Real Estate
- Charlotte Harbor Real Estate
- Downtown Sarasota Condos
- Ellenton Real Estate
- Englewood Real Estate
- Golf Community Real Estate
- Lakewood Ranch Real Estate
- Lido Key Condos
- Longboat Key Real Estate
- Luxury Real Estate
- New Homes for Sale
- Palmer Ranch Real Estate
- Palmetto Real Estate for Sale
- Parrish Real Estate
- Siesta Key Condos
- Siesta Key Homes and Land
- Venice Florida Real Estate
- West of the Trail
- Advanced Search Form
- Featured Listings
- Buyer or Seller?
- Our Company
- Featured Videos
- Login
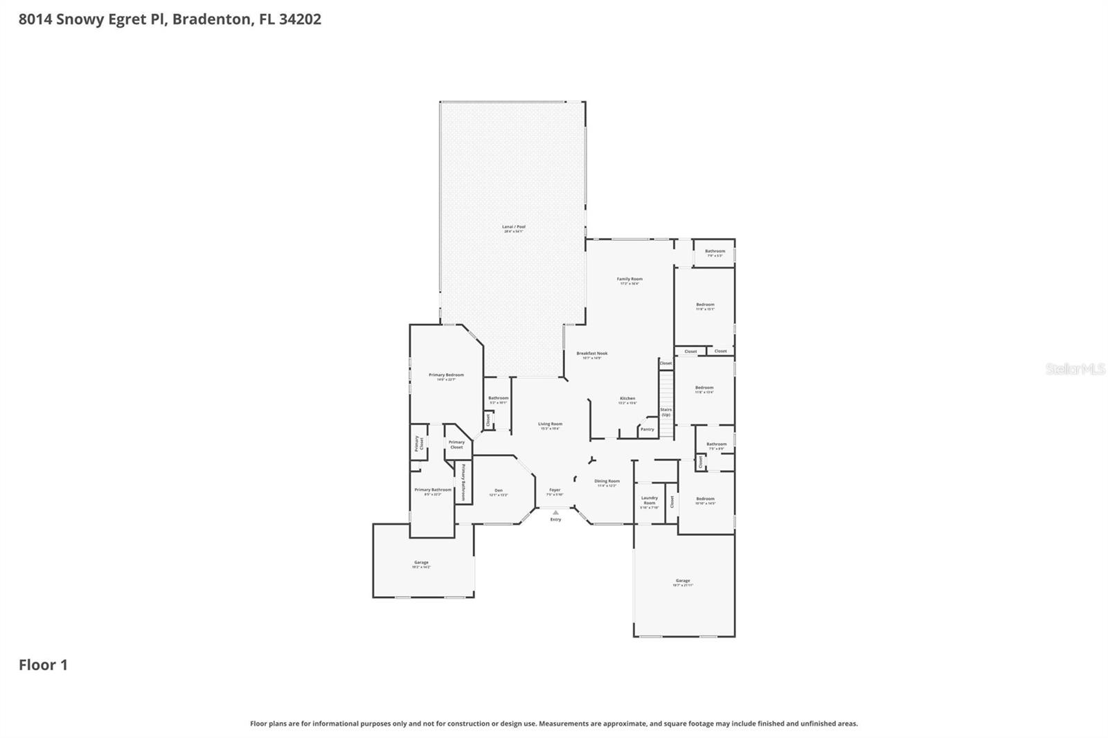
8014 Snowy Egret Pl, Bradenton, Florida
List Price: $1,050,000
MLS Number:
A4688862
- Status: Active
- DOM: 2 days
- Square Feet: 3556
- Bedrooms: 5
- Baths: 3
- Half Baths: 1
- Garage: 3
- City: BRADENTON
- Zip Code: 34202
- Year Built: 2002
- HOA Fee: $766
- Payments Due: Semi-Annually
This stunning 5-bedroom, 3.5-bath home with a dedicated office and expansive bonus room offers the perfect blend of comfort, elegance, and Florida lifestyle. Situated on a private homesite, the property features breathtaking sunset views over the preserve, a resort-style pool, outdoor kitchen, and a basketball court.A grand double glass door entry welcomes you into a bright and spacious dining room highlighted by large windows that fill the space with natural light. The adjacent living room showcases soaring ceilings, expansive sliders, and transom windows that seamlessly connect indoor and outdoor living. The private office also features generous windows, creating an inspiring and light-filled workspace. Elegant tile flooring flows throughout the main living areas of the home.The open-concept kitchen is both functional and inviting, overlooking the large family room and outdoor living space. Aquarium windows bring in stunning backyard views, while new stainless-steel appliances and tall cabinetry provide ample storage and a sleek, modern feel.The primary suite is a private retreat, featuring tray ceilings and dual closets. The luxurious primary bath is a true showstopper, complete with a freestanding soaking tub, walk-in shower, chic tile finishes, and a dual-sink vanity.Two bedrooms share an updated Jack-and-Jill bathroom, while a separate guest bedroom and bath are tucked away for added privacy. Upstairs, you'll find the fifth bedroom--ideal as a second office or flex space--along with a spacious bonus room perfect for entertainment or recreation.Step outside to your own private oasis, featuring one of the largest pools in the community, a generous backyard with preserve views, and a basketball court that could easily be converted into a pickleball court. The outdoor kitchen creates the perfect setting for dining al fresco while enjoying spectacular sunset views.Located in The Preserve at Panther Ridge, this vibrant community offers "A"-rated schools, scenic walking trails, lakes, tennis courts, basketball courts, and playgrounds. Conveniently located near UTC Mall, Lakewood Ranch Main Street, fine dining, and Florida's renowned Gulf beaches. Tampa International Airport is approximately 50 minutes away, and Sarasota-Bradenton International Airport is just 30 minutes away. With NO CDD fees and LOW HOA dues, this home offers an exceptional combination of privacy, luxury, and convenience.
Misc Info
Subdivision: Preserve At Panther Ridge Ph Iv
Annual Taxes: $6,313
HOA Fee: $766
HOA Payments Due: Semi-Annually
Lot Size: 1 to less than 2
Request the MLS data sheet for this property
Home Features
Appliances: Cooktop, Dishwasher, Disposal, Dryer, Kitchen Reverse Osmosis System, Microwave, Refrigerator, Washer, Water Filtration System, Water Softener
Flooring: Carpet, Luxury Vinyl, Tile
Air Conditioning: Central Air
Exterior: Basketball Court, Fire Pit, Outdoor Kitchen, Private Mailbox, Sidewalk, Sliding Doors
Room Dimensions
Schools
- Elementary: Robert E Willis Elementar
- High: Lakewood Ranch High
- Map
- Walk Score
- Street View























































