- Home
- News
- Popular Property Categories
- Anna Maria Island Real Estate
- Bedroom Communities
- Bradenton Real Estate
- Charlotte Harbor Real Estate
- Downtown Sarasota Condos
- Ellenton Real Estate
- Englewood Real Estate
- Golf Community Real Estate
- Lakewood Ranch Real Estate
- Lido Key Condos
- Longboat Key Real Estate
- Luxury Real Estate
- New Homes for Sale
- Palmer Ranch Real Estate
- Palmetto Real Estate for Sale
- Parrish Real Estate
- Siesta Key Condos
- Siesta Key Homes and Land
- Venice Florida Real Estate
- West of the Trail
- Advanced Search Form
- Featured Listings
- Buyer or Seller?
- Our Company
- Featured Videos
- Login
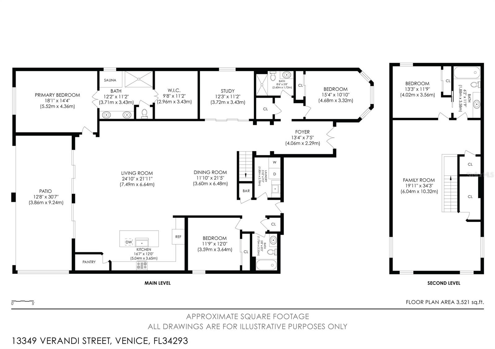
13349 Verandi St, Venice, Florida
List Price: $1,200,000
MLS Number:
A4689745
- Status: Active
- DOM: 18 days
- Square Feet: 3863
- Bedrooms: 4
- Baths: 4
- Garage: 3
- City: VENICE
- Zip Code: 34293
- Year Built: 2020
- HOA Fee: $1,112
- Payments Due: Quarterly
Experience elevated coastal living in this exceptional 4-bedroom, 4-bath residence with Wine Cellar and Private Sauna. The home is nestled within the highly sought-after IslandWalk at the West Villages in Venice--part of the vibrant, master-planned Wellen Park.At the heart of the home, an expansive designer kitchen takes center stage, showcasing a striking 10-foot island, premium finishes, and abundant storage--perfect for both intimate gatherings and upscale entertaining. Open-concept filled with natural light and tranquil water views, to seamless connect indoor elegance and outdoor beauty. Furniture negotiable.Step outside into your private sanctuary, to a stunning saltwater pool is surrounded by lush landscaping and serene waterfront vistas--an idyllic setting that defines luxury Florida living. Beyond the pool, your gaze is drawn to a tranquil water view, stretching outward in calming hues--an ever-changing backdrop that nourishes the soul. View to pair perfectly with a glass of your favorite drink, after all you do have your own cellar! or grab a favorite book enjoy the luxury of unhurried time.. A dreamy canopy of twinkling lights drapes gracefully overhead, creating a magical passageway to a charming veggie garden belowThis lanai is a lifestyle itself. Watch a movie from the comfort of the pool, host intimate gatherings under the glow of ambient lighting, or simply recline and let the gentle sounds of water and night air carry you into complete relaxation. Here, every moment feels elevated, every detail intentional, and every day touched by a sense of lush, effortless luxury The 3-car garage with a 4-foot extension offers unmatched versatility--ideal for a car collection, private gym, hobby space, bring your golf cartThe second level elevates the home even further, featuring one bedroom and bathroom suite plus an extensive loft that can harbor a media lounge, game room, executive office, or guest retreat. This highly upgraded Stonewater model offers water views, built-in kitchen appliances and cabinetry, sliding glass doors to the lanai, a finished utility room, and more. Also, the new owner will benefit from the extensive list of upgrades: Heated in ground Swimming pool. Outdoor in ground Hot tub. Pool cage with 40' clear view. Big Sauna Room. Outdoor shower. Outdoor built in seating, fire pit and arbor. Outdoor landscaping with paver. Whole house automation and WiFi networking. A walk in Dry Wine Room. Designer office with glass double door. Rot iron staircases. Designer chandelier and lighting package. New washer, dryer (less than a year old).Multiple feature walls. Master bedroom custom closet. Extended garage with epoxy flooring. Impact windows throughout the hole house. 10' impact sliding doorBeyond the home, residents of IslandWalk enjoy a gated, resort-style lifestyle. The community offers top-tier amenities:*Resort-style pools and lap pools. *State-of-the-art fitness center *Tennis, pickleball, and bocce courts*Clubhouse and social events*Scenic walking and biking trails*Many Clubs, see attached list.Just 6 minutes from the CoolToday Park (home of Atlanta Braves spring training), 10 minutes to the lively downtown Downtown Wellen Park for fine dining, entertaining and shopping, 15-20 min to Gulf beaches, parks and more.More than a home this is a statement of refined living, where every detail is elevated and every moment feels effortlessly luxurious.
Misc Info
Subdivision: 13349 Verandi Street, Venice, Fl 34293
Annual Taxes: $13,359
HOA Fee: $1,112
HOA Payments Due: Quarterly
Water Front: Lake Front
Water View: Lake
Water Access: Lake
Lot Size: 0 to less than 1/4
Request the MLS data sheet for this property
Home Features
Appliances: Cooktop, Dishwasher, Disposal, Dryer, Electric Water Heater, Exhaust Fan, Microwave, Range, Range Hood, Refrigerator, Washer
Flooring: Carpet, Ceramic Tile, Wood
Air Conditioning: Central Air
Exterior: Fire Pit, French Doors, Garden, Lighting, Other, Outdoor Shower, Sauna
Garage Features: Garage Door Opener, Golf Cart Parking, Oversized
Room Dimensions
Schools
- Elementary: Taylor Ranch Elementary
- High: Venice Senior High
- Map
- Walk Score
- Street View























































































