- Home
- News
- Popular Property Categories
- Anna Maria Island Real Estate
- Bedroom Communities
- Bradenton Real Estate
- Charlotte Harbor Real Estate
- Downtown Sarasota Condos
- Ellenton Real Estate
- Englewood Real Estate
- Golf Community Real Estate
- Lakewood Ranch Real Estate
- Lido Key Condos
- Longboat Key Real Estate
- Luxury Real Estate
- New Homes for Sale
- Palmer Ranch Real Estate
- Palmetto Real Estate for Sale
- Parrish Real Estate
- Siesta Key Condos
- Siesta Key Homes and Land
- Venice Florida Real Estate
- West of the Trail
- Advanced Search Form
- Featured Listings
- Buyer or Seller?
- Our Company
- Featured Videos
- Login
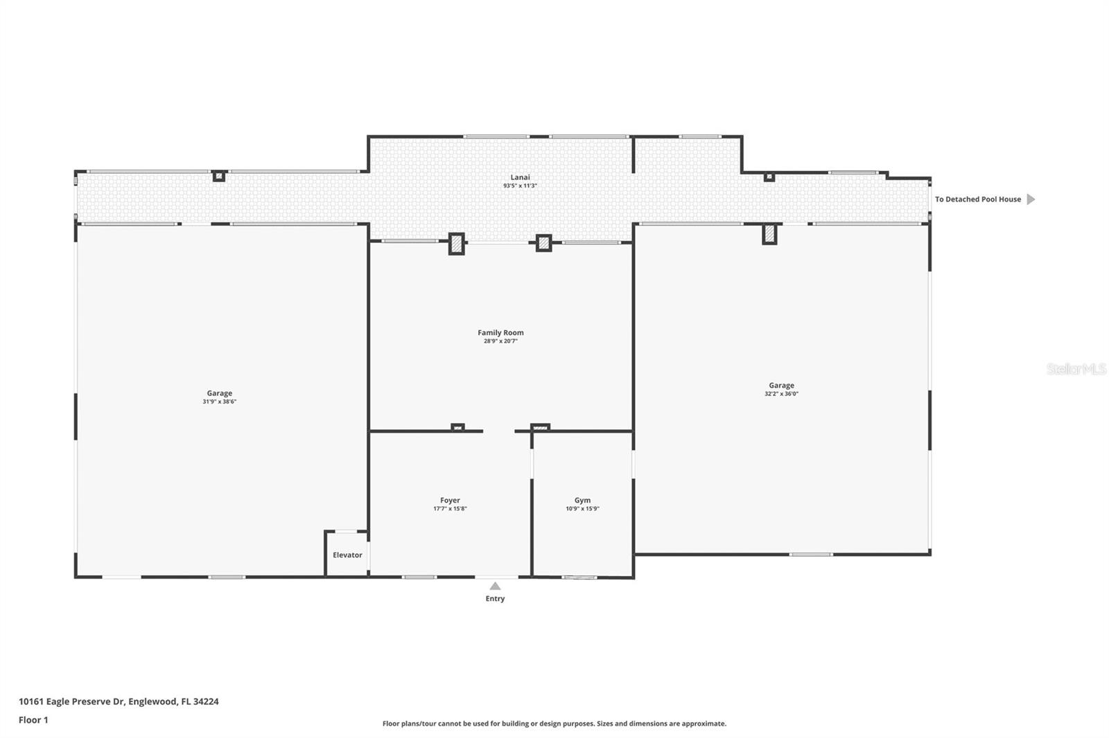
10161 Eagle Preserve Dr, Englewood, Florida
List Price: $2,799,000
MLS Number:
C7510153
- Status: Active
- DOM: 332 days
- Square Feet: 4460
- Bedrooms: 3
- Baths: 3
- Half Baths: 1
- Garage: 6
- City: ENGLEWOOD
- Zip Code: 34224
- Year Built: 2017
- HOA Fee: $1,234
- Payments Due: Annually
Experience the pinnacle of coastal luxury in this extraordinary waterfront residence, perfectly situated on two manicured lots within the prestigious, gated community of Lemon Bay Golf Club. Built in 2017 and thoughtfully updated with high-end upgrades, new interior and exterior paint, and enhanced features throughout, this home offers a rare combination of elegance, functionality, and resort-style living. Spanning over 4,460 square feet under air, this 3-bedroom, 3.5-bathroom masterpiece features a 6-car garage divided between east and west wings, a private elevator, and impeccable craftsmanship in every detail. The home's stately curb appeal includes a tri-colored paver driveway, lush landscaping, and a grand double staircase leading to an impressive front balcony. At the heart of the home, a chef's kitchen is outfitted with rich cabinetry, granite countertops, designer tile backsplash, a gas cooktop, and premium WOLF appliances. A large center island anchors the space, while an adjacent built-in bar enhances functionality for entertaining. With seamless access to two fully equipped outdoor kitchens and multiple balconies, the home is perfectly designed for indoor-outdoor living. A unique architectural breezeway leads to the private indoor/outdoor pool and pool house. This serene retreat is enclosed by arched screened windows to allow natural coastal breezes and features new lighting, updated pool equipment, elegant paver decking, and a coffered ceiling with fans. Whether hosting guests or enjoying a quiet afternoon, this resort-style space offers year-round comfort and style. For boating enthusiasts, a newly constructed private dock provides quick access to Lemon Bay and Stump Pass. Equipped with a 20,000 lb boat lift and a 3,000 lb jet ski lift, the dock offers an ideal setup for both serious boaters and recreational water lovers. The expansive primary suite serves as a luxurious retreat with wraparound balconies, tray ceilings, an electric fireplace, and a custom dressing area with a built-in vanity. The spa-like ensuite bath features a soaking tub, glass-enclosed shower with designer tile, dual vanities, and a private water closet. Each guest bedroom is ensuite and includes custom closets and high-end finishes.Additional highlights of this exceptional home include a brand-new security camera system, pre-stressed concrete floors throughout (extending to the balconies), impact windows and doors, a durable metal roof, a home gym/flex room, custom millwork and ceiling treatments, an EV charger, and a 60 kW whole-house generator. The professionally landscaped grounds are enhanced with irrigation and Lutron smart lighting systems. Set within one of Florida's most exclusive golf communities, this waterfront estate presents an unparalleled opportunity for those seeking refined living, unmatched privacy, and effortless access to coastal adventure
Misc Info
Subdivision: Eagle Preserve Estates Un 02
Annual Taxes: $25,665
HOA Fee: $1,234
HOA Payments Due: Annually
Water Front: Bay/Harbor, Brackish Water, Canal - Brackish, Canal - Freshwater, Canal - Saltwater, Gulf/Ocean, Gulf/Ocean to Bay, Intracoastal Waterway
Water View: Bay/Harbor - Partial, Canal
Water Access: Canal - Saltwater
Water Extras: Bridges - No Fixed Bridges, Lift
Lot Size: 1/2 to less than 1
Request the MLS data sheet for this property
Home Features
Appliances: Bar Fridge, Built-In Oven, Dishwasher, Disposal, Dryer, Microwave, Washer, Water Softener, Wine Refrigerator
Flooring: Tile
Air Conditioning: Central Air
Exterior: Balcony, Outdoor Kitchen, Private Mailbox
Pool Size: 21x16
Room Dimensions
- Map
- Walk Score
- Street View










































































