- Home
- News
- Popular Property Categories
- Anna Maria Island Real Estate
- Bedroom Communities
- Bradenton Real Estate
- Charlotte Harbor Real Estate
- Downtown Sarasota Condos
- Ellenton Real Estate
- Englewood Real Estate
- Golf Community Real Estate
- Lakewood Ranch Real Estate
- Lido Key Condos
- Longboat Key Real Estate
- Luxury Real Estate
- New Homes for Sale
- Palmer Ranch Real Estate
- Palmetto Real Estate for Sale
- Parrish Real Estate
- Siesta Key Condos
- Siesta Key Homes and Land
- Venice Florida Real Estate
- West of the Trail
- Advanced Search Form
- Featured Listings
- Buyer or Seller?
- Our Company
- Featured Videos
- Login
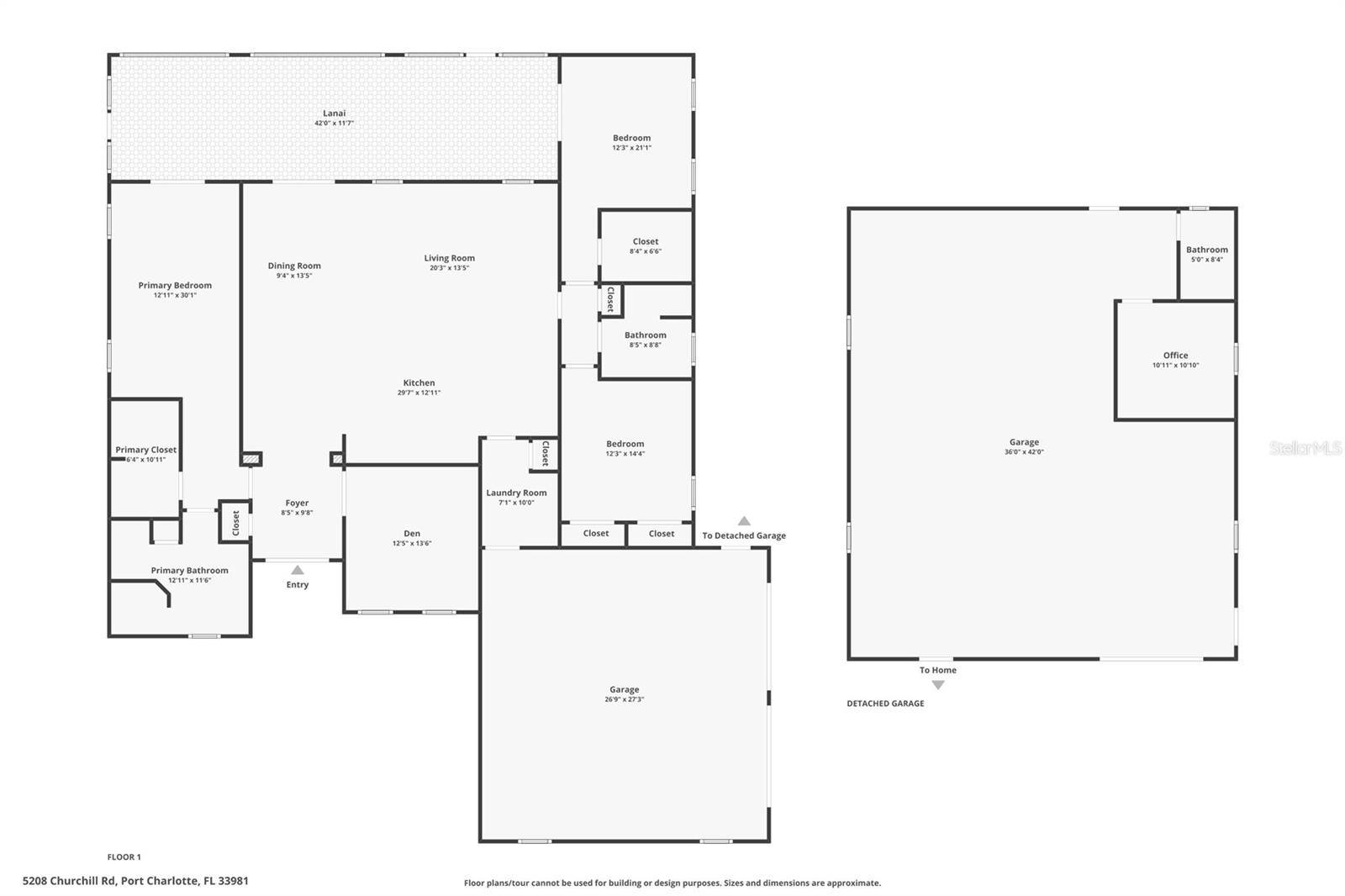
5208 Churchill Rd, Port Charlotte, Florida
List Price: $699,999
MLS Number:
C7514343
- Status: Sold
- Sold Date: Mar 26, 2026
- Square Feet: 2193
- Bedrooms: 3
- Baths: 3
- Garage: 7
- City: PORT CHARLOTTE
- Zip Code: 33981
- Year Built: 2013
ALL THE SPACE YOU NEED! This property is five lots spreading OVER an acre of land in Gulf Cove at 50,000 square feet with NO HOA and NO DEED RESTRICTIONS. Featuring a HUGE 36x40 DETACHED GARAGE that can fit multiple boats, cars and any other toys you may have, as well an office and bathroom. There is also an RV Carport attached with a 50 AMP POWER HOOK UP. The main house by itself is filled with tons of custom updates and features a den/BONUS ROOM that could even serve as a 4TH BEDROOM and another HUGE garage that is very deep that can fit EVEN MORE TOYS IF NEEDED. The property is located just up the road from Gulf Cove's BOAT RAMP that can be accessed for a modest $75 a year granting GULF ACCESS. The property is outfitted with custom wood flooring and feels very airy with tall cathedral ceilings in the living room. The GOURMET KITCHEN is super spacious and features QUARTZ COUNTERTOPS, PULL OUT DRAWERS, CUSTOM WOOD/SOFT CLOSE CABINETS, STAINLESS STEEL APPLIANCES with an ITALIAN GAS RANGE, DRY BAR and charming UNDER CABINET LIGHTING. The Primary Bedroom boasts a tray ceiling and a very large walk-in closet and French doors to the back patio. Primary Bathroom features a HEATED BIDET TOILET, QUARTZ COUNTERTOPS, WALK-IN SHOWER with BENCH and more. The secondary bedrooms are VERY LARGE and have updated tile flooring with one bedroom featuring a HUGE WALK-IN CLOSET and DOORS TO THE PATIO. Enjoy meticulously maintained home updated with small features that go a long way like dimmers on the lights switches, extra-large ceiling fans, crown molding throughout, commercial venting above the range and MORE. The Side yard has a 50x50 IRON FENCE. The DETACHED GARAGE can fit up to FIVE CARS and comes with a full bathroom and PRIVATE OFFICE that can be repurposed to whatever you would like to use it for. There is also an additional STORAGE SHED providing even more space. Property is hooked up to PUBLIC WATER. The homes back patio has a convenient walkway to the detached garage providing easy access. Outdoor shower included. on the side of the home. Lots of charming tropical plants all around the property. Enjoy close proximity to Boca Grande Beach, Manasota Key Beach, Historic Dearborn Street, Historic Downtown Punta Gorda, Wellen Park, Tampa Ray and Atlanta Braves Spring Training. This property is also close to many restaurants, places to shop, doctor's offices, hospitals, farmers markets and MORE. Call your agent today. BE SURE TO ASK FOR THE FEATURE SHEET and VIEW THE 3D VIRTUAL TOUR ON ZILLOW.
Misc Info
Subdivision: Port Charlotte Sec 053
Annual Taxes: $4,549
Water Access: Bay/Harbor, Gulf/Ocean, Gulf/Ocean to Bay, River
Lot Size: 1 to less than 2
Request the MLS data sheet for this property
Sold Information
CDD: $650,000
Sold Price per Sqft: $ 296.40 / sqft
Home Features
Appliances: Dishwasher, Electric Water Heater, Microwave, Range, Refrigerator
Flooring: Tile, Wood
Air Conditioning: Central Air
Exterior: Lighting
Garage Features: Boat, Driveway, Garage Door Opener, Garage Faces Side, RV Access/Parking
Room Dimensions
- Map
- Walk Score
- Street View








































































