- Home
- News
- Popular Property Categories
- Anna Maria Island Real Estate
- Bedroom Communities
- Bradenton Real Estate
- Charlotte Harbor Real Estate
- Downtown Sarasota Condos
- Ellenton Real Estate
- Englewood Real Estate
- Golf Community Real Estate
- Lakewood Ranch Real Estate
- Lido Key Condos
- Longboat Key Real Estate
- Luxury Real Estate
- New Homes for Sale
- Palmer Ranch Real Estate
- Palmetto Real Estate for Sale
- Parrish Real Estate
- Siesta Key Condos
- Siesta Key Homes and Land
- Venice Florida Real Estate
- West of the Trail
- Advanced Search Form
- Featured Listings
- Buyer or Seller?
- Our Company
- Featured Videos
- Login
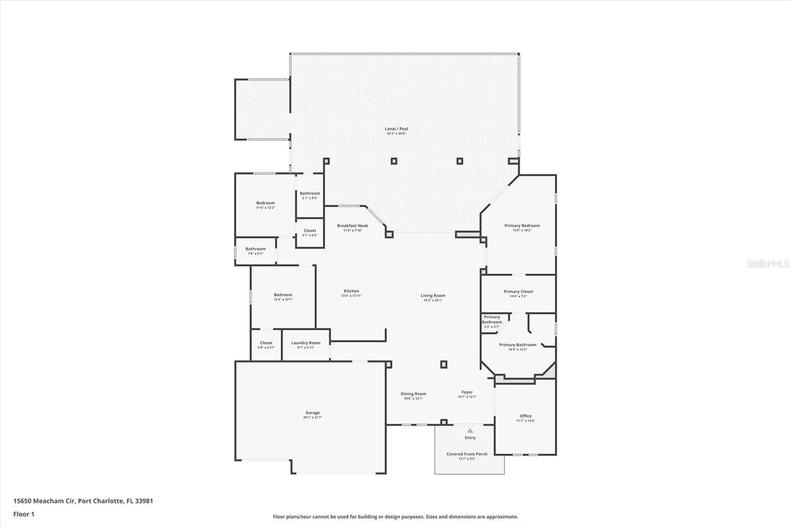
15650 Meacham Cir, Port Charlotte, Florida
List Price: $1,200,000
MLS Number:
C7518869
- Status: Active
- DOM: 53 days
- Square Feet: 2471
- Bedrooms: 3
- Baths: 3
- Garage: 3
- City: PORT CHARLOTTE
- Zip Code: 33981
- Year Built: 2020
- HOA Fee: $120
- Payments Due: Annually
Location! Location! Don't miss this furnished 2020-built CUSTOM MINI ESTATE WATERFRONT POOL HOME with Southern exposure and SAILBOAT ACCESS offering quick boating access to Charlotte Harbor and the Gulf of Mexico! (no bridges to go under!) This stunning 3-bedroom, 3-bathroom 3 car spacious garage pool home with tile roof and a private office (which can serve as a 4th bedroom) was built by the prestigious Luke Brothers Custom Homes. It's packed with luxury features, and every detail has been thoughtfully crafted for the ultimate Florida lifestyle. As you step onto the paver driveway and walkway, you'll be captivated by the impressive entryway. Double leaded glass doors with accordion storm doors in front, lead you into a grand foyer, where your eyes will immediately be drawn to the sparkling saltwater pool and canal views. The pool area features paver decking, a state-of-the-art saltwater heated pebble tech pool with hot tub waterfall and ledge loungers & a paver walkway that takes you to the incredible 60' composite dock. This dock is fully equipped with 240 electric, a 10,000 lb covered boat lift, a jet ski lift, and an 80' concrete seawall, all set in one of the most desirable locations in South Gulf Cove. Inside the home, the craftsmanship shines with 15' coffered ceilings adorned with Poplar wood, crown molding, and beautiful light fixtures. The grand living space showcases lighted built-in shelving, custom gray Spanish tile flooring, and plantation shutters throughout. The gourmet kitchen is a showstopper, boasting a Cambria Quartz center island, high-end Electrolux stainless steel appliances, convection cooktop, built-in oven, microwave, dishwasher and custom soft-close wood cabinetry with crown molding. A glass tile backsplash and lighted display cabinets add to the kitchen's charm. The master suite is an oasis, with coffered tray ceilings, pool access, and two spacious walk-in closets with built-in shelving. The luxurious master bath offers a large walk-in shower, separate tub, dual sinks, and upgraded granite countertops. Step outside to the cabana with a metal roof & custom electric sun shade, where entertaining is a breeze! This outdoor kitchen includes a stainless steel built-in grill, double burner, bar refrigerator, and granite countertops. The pool area is equally stunning with a waterfall, fiber optic color wheel, and fire columns that create a true resort vibe. Additional features include impact windows, Kevlar automatic shutter for the back lanai area, Ring doorbell, a 3-car garage with epoxy floors, smart garage door opener, central vacuum, and an on-demand hot water heater and so much more! The yard is fenced on one side with AstroTurf and a brick paver walkway to the cabana. If you're into boating, fishing, or just love the water, this home is minutes from Boca Grande with easy access to Charlotte Harbor and the Gulf. Call us today for a private showing--you'll be glad you did!
Misc Info
Subdivision: Port Charlotte Sec 093
Annual Taxes: $13,277
HOA Fee: $120
HOA Payments Due: Annually
Water Front: Canal - Brackish
Water View: Canal
Water Access: Bay/Harbor, Brackish Water, Canal - Brackish, Canal - Freshwater, Canal - Saltwater, Gulf/Ocean, Intracoastal Waterway, Lagoon, River
Water Extras: Lift, Lift - Covered, Sailboat Water, Seawall - Concrete
Lot Size: 0 to less than 1/4
Request the MLS data sheet for this property
Home Features
Appliances: Bar Fridge, Built-In Oven, Cooktop, Dishwasher, Disposal, Dryer, Electric Water Heater, Exhaust Fan, Microwave, Range Hood, Refrigerator, Washer
Flooring: Tile
Air Conditioning: Central Air
Exterior: Hurricane Shutters, Lighting, Outdoor Grill, Outdoor Kitchen, Outdoor Shower, Rain Gutters, Shade Shutter(s), Sliding Doors
Garage Features: Boat, Driveway, Garage Door Opener, Golf Cart Garage, Guest, Oversized, RV Access/Parking
Pool Size: 30x14
Room Dimensions
Schools
- Elementary: Myakka River Elementary
- High: Lemon Bay High
- Map
- Walk Score
- Street View







































































