- Home
- News
- Popular Property Categories
- Anna Maria Island Real Estate
- Bedroom Communities
- Bradenton Real Estate
- Charlotte Harbor Real Estate
- Downtown Sarasota Condos
- Ellenton Real Estate
- Englewood Real Estate
- Golf Community Real Estate
- Lakewood Ranch Real Estate
- Lido Key Condos
- Longboat Key Real Estate
- Luxury Real Estate
- New Homes for Sale
- Palmer Ranch Real Estate
- Palmetto Real Estate for Sale
- Parrish Real Estate
- Siesta Key Condos
- Siesta Key Homes and Land
- Venice Florida Real Estate
- West of the Trail
- Advanced Search Form
- Featured Listings
- Buyer or Seller?
- Our Company
- Featured Videos
- Login
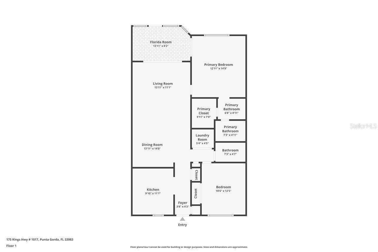
175 Kings Hwy #a7, Punta Gorda, Florida
List Price: $168,999
MLS Number:
C7519929
- Status: Active
- DOM: 73 days
- Square Feet: 1153
- Bedrooms: 2
- Baths: 2
- Garage: 1
- City: PUNTA GORDA
- Zip Code: 33983
- Year Built: 1989
- HOA Fee: $720
- Payments Due: Monthly
Well-maintained and furnished, this 2-bedroom, 2-bathroom FIRST-FLOOR condo offers peaceful water views from the screened lanai. The open concept, split-bedroom floor plan provides excellent privacy, with the spacious primary suite featuring an en-suite bathroom and a generous walk-in closet.Features include newer A/C, tile flooring throughout (laid on a diagonal), granite countertops, stainless steel appliances, an indoor laundry room, and covered parking right out front, with plenty of guest parking available. Monthly fees include water, sewer, and trash.The community offers a huge heated pool for year-round enjoyment along with tennis courts, shuffleboard, and scenic walking paths. Newport Condominiums is situated less than a mile from I-75 and within minutes of shopping, schools, entertainment, and more. Tucked away yet close to everything, this is the kind of place that instantly feels like home.
Misc Info
Subdivision: Newport 02 Ph 01 Bldg 10
Annual Taxes: $2,850
HOA Fee: $720
HOA Payments Due: Monthly
Water View: Pond
Lot Size: Non-Applicable
Request the MLS data sheet for this property
Home Features
Appliances: Dishwasher, Microwave, Range, Refrigerator
Flooring: Ceramic Tile
Air Conditioning: Central Air
Exterior: Balcony, Lighting, Outdoor Grill
Room Dimensions
Schools
- Elementary: Deep Creek Elementary
- High: Charlotte High
- Map
- Walk Score
- Street View








































