- Home
- News
- Popular Property Categories
- Anna Maria Island Real Estate
- Bedroom Communities
- Bradenton Real Estate
- Charlotte Harbor Real Estate
- Downtown Sarasota Condos
- Ellenton Real Estate
- Englewood Real Estate
- Golf Community Real Estate
- Lakewood Ranch Real Estate
- Lido Key Condos
- Longboat Key Real Estate
- Luxury Real Estate
- New Homes for Sale
- Palmer Ranch Real Estate
- Palmetto Real Estate for Sale
- Parrish Real Estate
- Siesta Key Condos
- Siesta Key Homes and Land
- Venice Florida Real Estate
- West of the Trail
- Advanced Search Form
- Featured Listings
- Buyer or Seller?
- Our Company
- Featured Videos
- Login
128 W Charlotte Ave, Punta Gorda, Florida
List Price: $1,100,000
MLS Number:
C7520206
Subdivision:
Punta Gorda
- Status: Active
- DOM: 80 days
- Square Feet: 4917
- City: PUNTA GORDA
- Zip Code: 33950
- Year Built: 1953
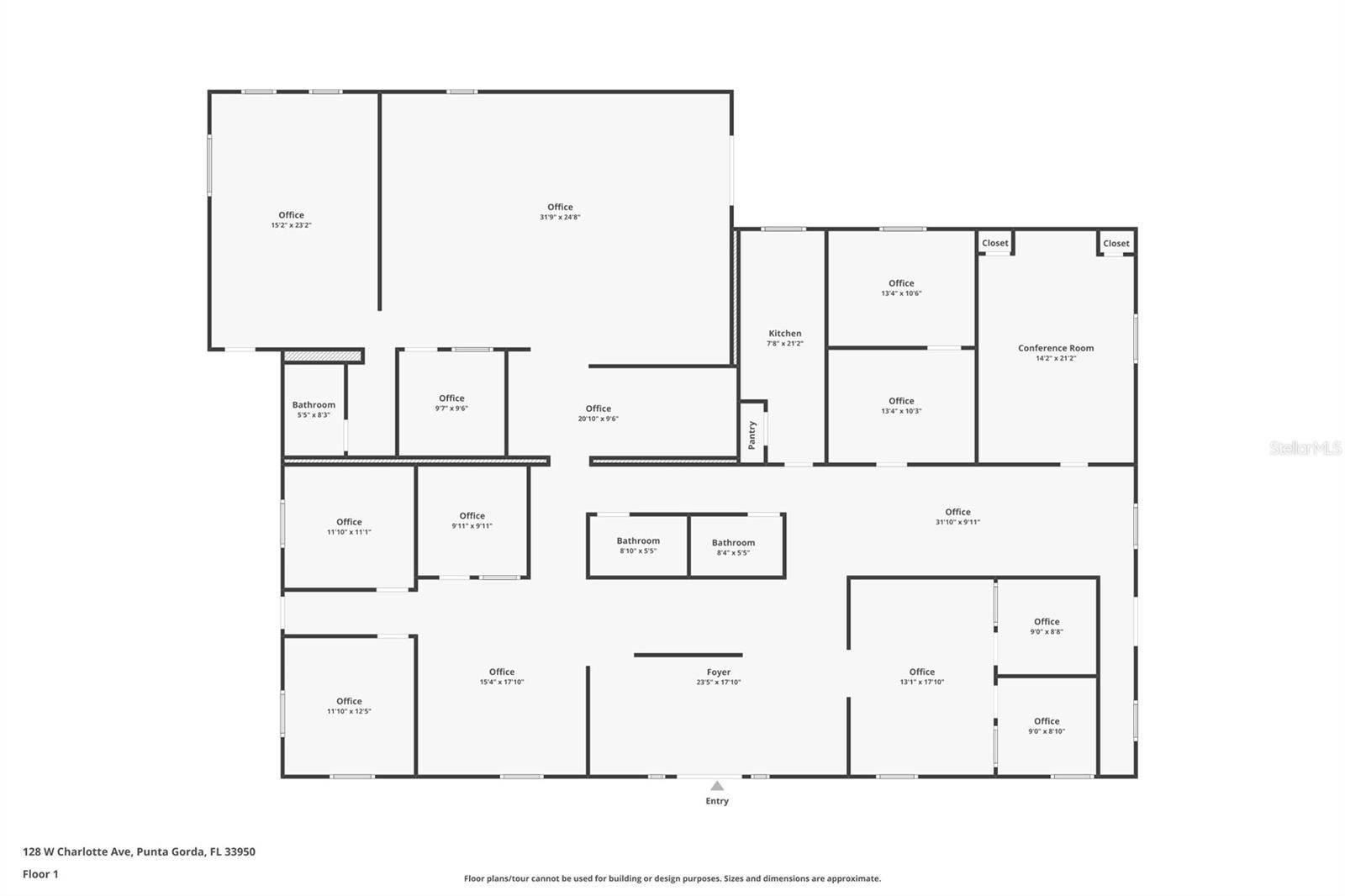
Position your business where visibility, accessibility, and community converge in downtown Punta Gorda. This established professional office building offers approximately 4,917 square feet of highly flexible commercial space designed to adapt to a variety of business needs. The interior layout includes multiple private offices, a conference room, reception area, kitchen/break room, three restrooms, and several large multi-use areas, allowing for efficient workflow and customizable configurations.The property provides parking on three sides plus convenient street parking, enhancing ease of access for staff and clients alike. With quick access to US-41 and immediate proximity to downtown businesses, restaurants, waterfront parks, and civic amenities, the location delivers excellent connectivity and day-to-day convenience.Punta Gorda is widely recognized for its vibrant, welcoming downtown and strong sense of community, making it a desirable destination for professional, medical, and service-oriented users. Zoned City Center District, this property allows for a broad range of permitted commercial uses and represents a compelling opportunity within one of the city's most sought-after commercial corridors.
Misc Info
Annual Taxes: $11,872
Lot Size: 0 to less than 1/4
Request the MLS data sheet for this property
Home Features
Flooring: Luxury Vinyl
Air Conditioning: Central Air
Garage Features: Parking Spaces - 6 to 12
Room Dimensions
- Map
- Walk Score
- Street View





















































