- Home
- News
- Popular Property Categories
- Anna Maria Island Real Estate
- Bedroom Communities
- Bradenton Real Estate
- Charlotte Harbor Real Estate
- Downtown Sarasota Condos
- Ellenton Real Estate
- Englewood Real Estate
- Golf Community Real Estate
- Lakewood Ranch Real Estate
- Lido Key Condos
- Longboat Key Real Estate
- Luxury Real Estate
- New Homes for Sale
- Palmer Ranch Real Estate
- Palmetto Real Estate for Sale
- Parrish Real Estate
- Siesta Key Condos
- Siesta Key Homes and Land
- Venice Florida Real Estate
- West of the Trail
- Advanced Search Form
- Featured Listings
- Buyer or Seller?
- Our Company
- Featured Videos
- Login
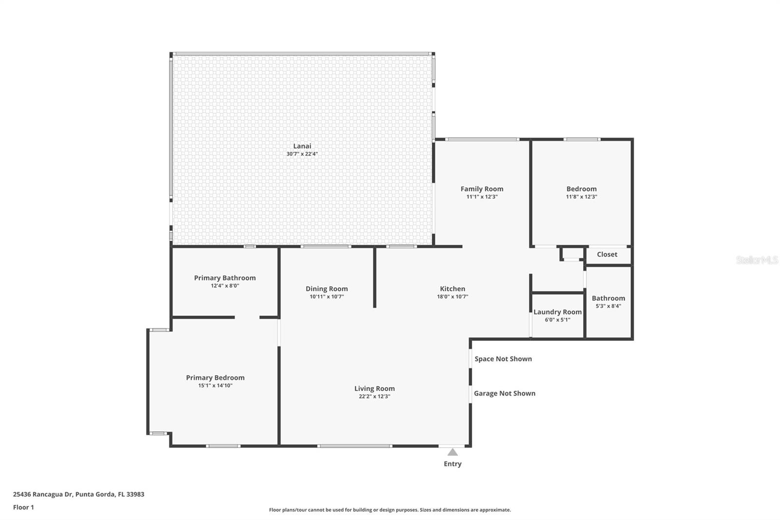
25436 Rancagua Dr, Punta Gorda, Florida
List Price: $325,000
MLS Number:
C7520778
- Status: Sold
- Sold Date: Mar 09, 2026
- Square Feet: 1372
- Bedrooms: 2
- Baths: 2
- Garage: 2
- City: PUNTA GORDA
- Zip Code: 33983
- Year Built: 1989
- HOA Fee: $210
- Payments Due: Annually
Welcome to 25436 Rancagua Drive, a beautifully transformed single-family home located in the desirable Deep Creek community of Punta Gorda. This exceptional property is best described as a New Construction Quality Resale, offering the peace of mind, efficiency, and modern finishes buyers expect in a new build -- without the wait.From the moment you step inside, you'll notice the fresh, clean feel created by all-new drywall, baseboards, door frames, and interior paint. The home features porcelain tile flooring throughout, providing a cohesive, modern aesthetic along with long-term durability. Both bathrooms have been fully renovated, showcasing contemporary finishes that further enhance the home's move-in-ready appeal with truly zero deferred maintenance.The open-concept layout flows seamlessly into the kitchen area, which has been thoughtfully designed with floor utilities already in place for plumbing and electrical -- allowing the next owner to easily add a custom island or personalize the space to their taste. This rare customization opportunity adds exceptional long-term value and flexibility.Major structural and mechanical upgrades provide outstanding safety, comfort, and efficiency. The home includes a brand-new roof, hurricane-grade windows, and a new garage door, offering superior storm protection and potential insurance benefits. A new York AC system with updated ductwork and REME UV air filtration enhances indoor air quality, while the energy-efficient hybrid water heater adds long-term savings and modern performance.Step outside to your private Florida retreat. The saltwater pool has been professionally converted and features a new pool heater, offering low-maintenance enjoyment year-round. Mature privacy landscaping surrounds the fully fenced backyard, creating a peaceful and secluded setting. Outdoor living is elevated with a fire pit and built-in grilling area -- perfect for entertaining, relaxing evenings, or weekend gatherings.Situated in the highly sought-after Deep Creek community, this home offers a quiet residential setting with convenient access to I-75, shopping, dining, golf courses, and all that Punta Gorda has to offer. With full hurricane protection, extensive renovations, premium outdoor amenities, and a true like-new feel, 25436 Rancagua Drive represents a rare opportunity to own a high-quality, modernized home that perfectly blends safety, style, and lifestyle -- all in one exceptional package.
Misc Info
Subdivision: Punta Gorda Isles Sec 20
Annual Taxes: $1,583
HOA Fee: $210
HOA Payments Due: Annually
Lot Size: 1/4 to less than 1/2
Request the MLS data sheet for this property
Sold Information
CDD: $315,000
Sold Price per Sqft: $ 229.59 / sqft
Home Features
Appliances: Dishwasher, Dryer, Microwave, Range, Refrigerator, Washer
Flooring: Tile
Air Conditioning: Central Air
Exterior: Fire Pit, Private Mailbox, Rain Gutters, Sliding Doors
Pool Size: 24x12
Room Dimensions
Schools
- Elementary: Deep Creek Elementary
- High: Charlotte High
- Map
- Walk Score
- Street View






































