- Home
- News
- Popular Property Categories
- Anna Maria Island Real Estate
- Bedroom Communities
- Bradenton Real Estate
- Charlotte Harbor Real Estate
- Downtown Sarasota Condos
- Ellenton Real Estate
- Englewood Real Estate
- Golf Community Real Estate
- Lakewood Ranch Real Estate
- Lido Key Condos
- Longboat Key Real Estate
- Luxury Real Estate
- New Homes for Sale
- Palmer Ranch Real Estate
- Palmetto Real Estate for Sale
- Parrish Real Estate
- Siesta Key Condos
- Siesta Key Homes and Land
- Venice Florida Real Estate
- West of the Trail
- Advanced Search Form
- Featured Listings
- Buyer or Seller?
- Our Company
- Featured Videos
- Login
3900 Colony Ct, Punta Gorda, Florida
List Price: $500,000
MLS Number:
C7521086
- Status: Active
- DOM: 41 days
- Square Feet: 1855
- Bedrooms: 2
- Baths: 2
- Half Baths: 1
- City: PUNTA GORDA
- Zip Code: 33950
- Year Built: 2002
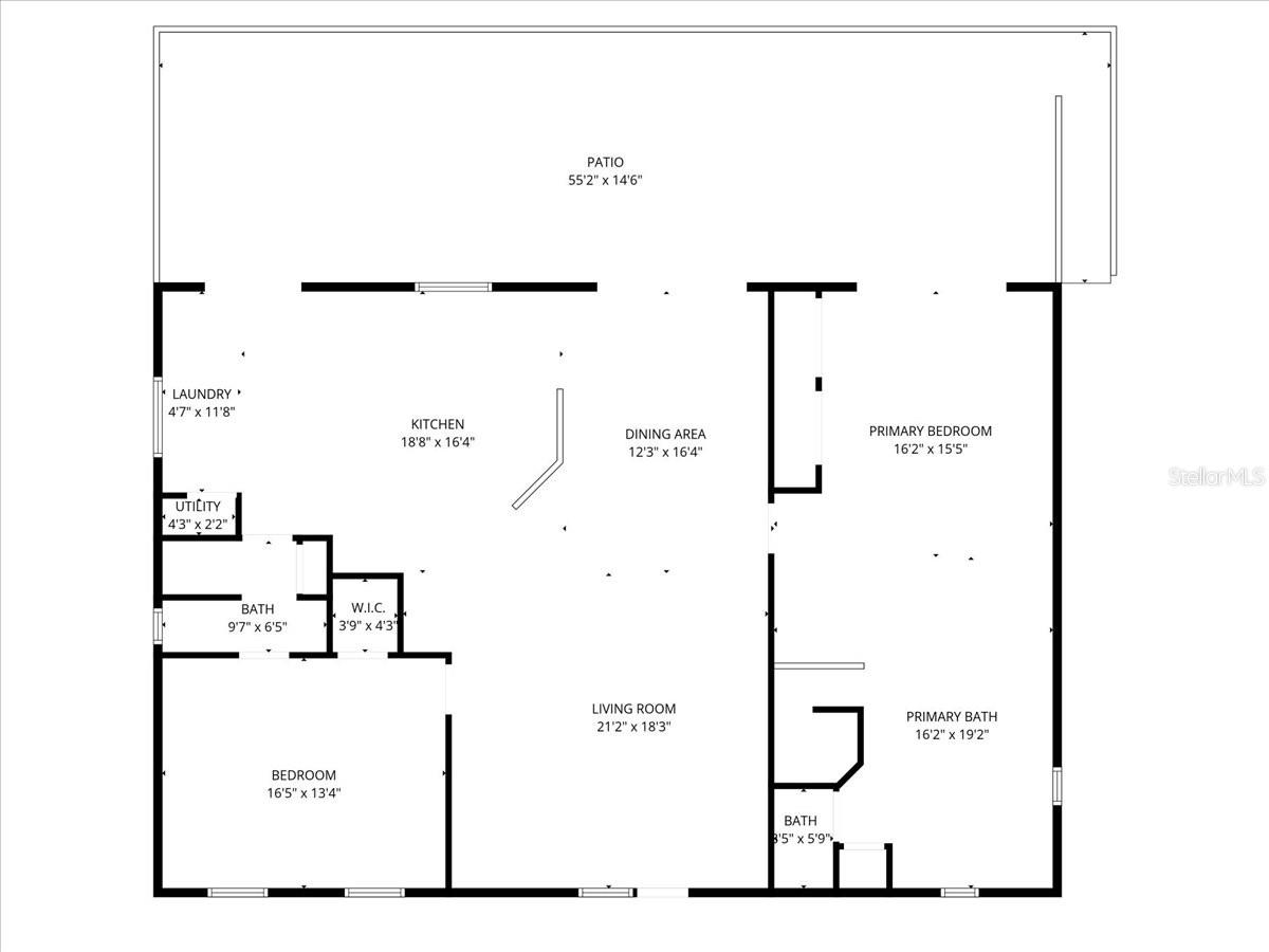
ASSUMABLE FLOOD INSURANCE - This CUSTOM-BUILT elevated Florida-style waterfront home offers 2 bedrooms, 2 1/2 bathrooms, and 1,855 sq ft of thoughtfully designed living space, complemented by a clean, modern exterior blending comfort and functionality along with a metal roof. Nestled on the Venice Canal, the property features 141 feet of waterfront and a 7' x 14' concrete dock with pilings, providing quick boating access to Charlotte Harbor and the Gulf of Mexico--a true haven for water enthusiasts. The fixed bridge clearance measures approximately 12'-13', depending on conditions. Set on a generous lot, the home includes an expansive concrete driveway with ample space for vehicles, boats, or toys. The raised main living area provides peace of mind while creating a breezy, shaded space below--perfect for outdoor seating, storage, or future entertaining. A 144-sq-ft metal shed adds room for tools, lawn equipment, or water gear. Recent updates new septic system, double front doors, and appliances. The A/C and hot water heater were replaced in 2017 for reliable comfort. The exterior showcases a crisp, neutral palette, low-maintenance finishes, and wide staircases leading to multiple entry points. Inside, the bright, open-concept living area flows seamlessly into the kitchen and dining spaces, ideal for everyday living and entertaining. Durable tile flooring spans the home, while neutral tones and ceiling fans enhance comfort and airflow. Large sliding glass doors open to a 55' x 15' rear deck spanning the home's width, overlooking the tranquil canal--perfect for dining, entertaining, or relaxing in Florida style. The chef-inspired kitchen features two center islands: one with a stainless-steel oven and the other with a breakfast bar for four. White cabinetry, glass-front upper cabinets, and abundant recessed lighting complete this functional space. A conveniently located laundry area off the kitchen adds efficiency. The split-bedroom layout offers two primary suites for ultimate privacy. The first suite includes dual-door closets, a sitting area, and slider access to the rear deck. Its ensuite has a jetted soaking tub, Roman shower, L-shaped vanity with double sinks, and a separate toilet room. The second primary suite features a walk-in closet and an attached bath with a walk-in shower that also connects to the kitchen area--ideal for flexible living or guest accommodations. Versatile ground-level living space has a fully screened, open area that expands usable living and entertaining space. Designed for durability, the concrete slab and high ceilings provide room for lounging, dining, or hosting gatherings. Multiple doors open into a bonus area plumbed with a bathroom, enhancing the space's potential for a casual hangout, outdoor kitchen, workshop, or future conversion. Close to I-75/US41 and nearby Fishermen's Village, downtown Punta Gorda shops & restaurants, Saint Andrews Golf Course, and excellent boating, fishing, and sailing. Home is spotless and ready for you--enjoy the Florida lifestyle in this impressive home!**PLEASE ENJOY THE 3D INTERACTIVE VIRTUAL TOUR ASSOCIATED WITH THIS LISTING**
Misc Info
Subdivision: Waterway Colony
Annual Taxes: $3,474
Water Front: Canal Front
Water View: Canal
Water Access: Bay/Harbor, Canal - Brackish, Canal - Freshwater, Canal - Saltwater, Gulf/Ocean, Gulf/Ocean to Bay, Intracoastal Waterway, River
Water Extras: Bridges - Fixed, Riprap, Seawall - Other
Lot Size: 1/4 to less than 1/2
Request the MLS data sheet for this property
Home Features
Appliances: Dishwasher, Dryer, Electric Water Heater, Microwave, Range, Refrigerator, Washer
Flooring: Ceramic Tile
Air Conditioning: Central Air
Exterior: Balcony, Lighting, Rain Gutters, Sliding Doors, Storage
Garage Features: Boat, Covered, Driveway, Ground Level, Guest, Off Street, Oversized
Room Dimensions
Schools
- Elementary: Sallie Jones Elementary
- High: Charlotte High
- Map
- Walk Score
- Street View
























































