- Home
- News
- Popular Property Categories
- Anna Maria Island Real Estate
- Bedroom Communities
- Bradenton Real Estate
- Charlotte Harbor Real Estate
- Downtown Sarasota Condos
- Ellenton Real Estate
- Englewood Real Estate
- Golf Community Real Estate
- Lakewood Ranch Real Estate
- Lido Key Condos
- Longboat Key Real Estate
- Luxury Real Estate
- New Homes for Sale
- Palmer Ranch Real Estate
- Palmetto Real Estate for Sale
- Parrish Real Estate
- Siesta Key Condos
- Siesta Key Homes and Land
- Venice Florida Real Estate
- West of the Trail
- Advanced Search Form
- Featured Listings
- Buyer or Seller?
- Our Company
- Featured Videos
- Login
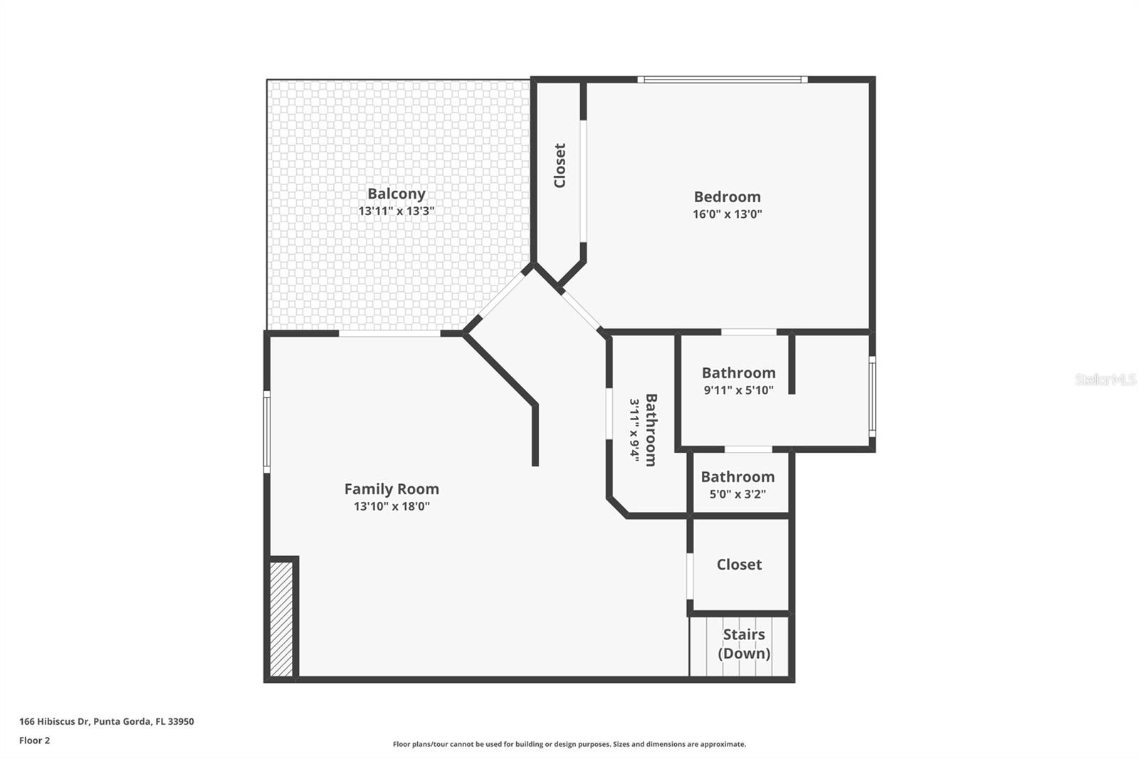
166 Hibiscus Dr, Punta Gorda, Florida
List Price: $1,850,000
MLS Number:
C7521157
- Status: Active
- DOM: 57 days
- Square Feet: 3397
- Bedrooms: 4
- Baths: 3
- Half Baths: 2
- Garage: 3
- City: PUNTA GORDA
- Zip Code: 33950
- Year Built: 2017
A Sail boater's Dream.Luxury abounds in this resort-style waterfront home, perfectly situated in one of Punta Gorda Isles' premier neighborhoods with direct access to the harbor. Boaters will appreciate the 60-foot concrete dock complete with water and electric service. Stunning quality is evident throughout the residence, featuring a gas log fireplace in the great room, stone countertops, rich hardwood and marble flooring, and custom-painted ceilings. The air-conditioned garage adds both comfort and convenience, while every bedroom offers a private ensuite bath.An elevator leads to the upper level, opening into a worldly Speakeasy Lounge with a fully functional bar--ideal for entertaining. The upper deck doubles as a private dance floor overlooking the water, enhanced by built-in Bluetooth speakers throughout the home.Additional highlights include arched entryways, hurricane-impact glass windows, and an exceptional collection of rare, high-quality materials that truly set this home apart.
Misc Info
Subdivision: Punta Gorda Isles Sec 02
Annual Taxes: $19,928
Water Front: Canal - Saltwater
Water View: Canal
Water Access: Canal - Saltwater
Water Extras: Bridges - No Fixed Bridges, Sailboat Water, Seawall - Concrete
Lot Size: 0 to less than 1/4
Request the MLS data sheet for this property
Home Features
Appliances: Bar Fridge, Built-In Oven, Convection Oven, Cooktop, Dishwasher, Disposal, Dryer, Electric Water Heater, Exhaust Fan
Flooring: Carpet, Hardwood, Wood
Fireplace: Gas
Air Conditioning: Central Air
Exterior: Balcony, Hurricane Shutters, Outdoor Shower, Sliding Doors, Sprinkler Metered
Room Dimensions
Schools
- Elementary: Sallie Jones Elementary
- High: Charlotte High
- Map
- Walk Score
- Street View












































































