- Home
- News
- Popular Property Categories
- Anna Maria Island Real Estate
- Bedroom Communities
- Bradenton Real Estate
- Charlotte Harbor Real Estate
- Downtown Sarasota Condos
- Ellenton Real Estate
- Englewood Real Estate
- Golf Community Real Estate
- Lakewood Ranch Real Estate
- Lido Key Condos
- Longboat Key Real Estate
- Luxury Real Estate
- New Homes for Sale
- Palmer Ranch Real Estate
- Palmetto Real Estate for Sale
- Parrish Real Estate
- Siesta Key Condos
- Siesta Key Homes and Land
- Venice Florida Real Estate
- West of the Trail
- Advanced Search Form
- Featured Listings
- Buyer or Seller?
- Our Company
- Featured Videos
- Login
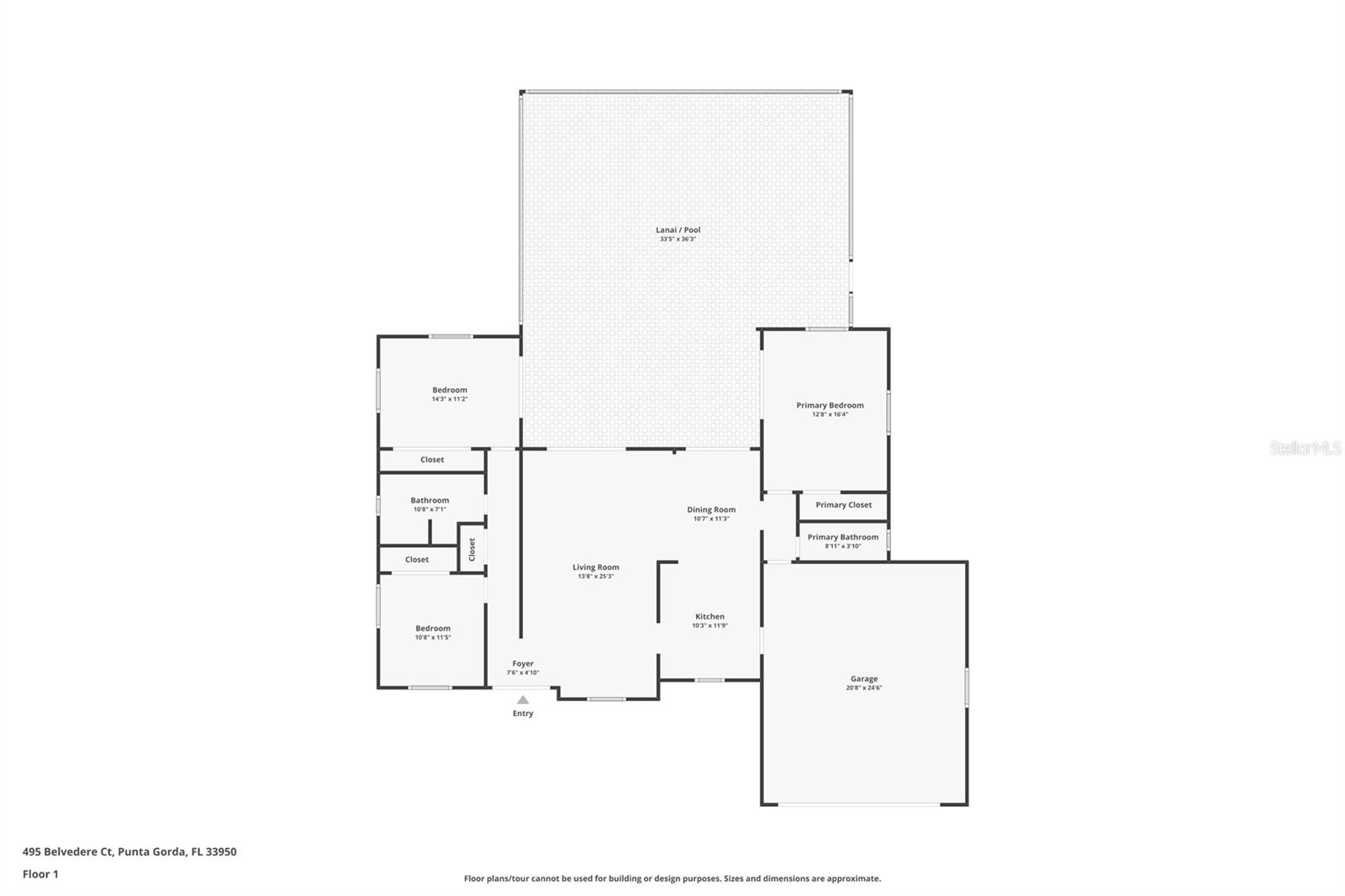
495 Belvedere Ct, Punta Gorda, Florida
List Price: $499,900
MLS Number:
C7521236
- Status: Active
- DOM: 69 days
- Square Feet: 1424
- Bedrooms: 3
- Baths: 2
- Garage: 2
- City: PUNTA GORDA
- Zip Code: 33950
- Year Built: 1969
WATERFRONT POOL HOME WITH BOATING ACCESS IN PUNTA GORDA ISLESWelcome to 495 Belvedere Ct, a beautifully updated 3 BEDROOM, 2 BATHROOM, 2-CAR GARAGE waterfront residence located on a SALTWATER CANAL in the highly desirable PUNTA GORDA ISLES community. This home offers the ultimate Florida lifestyle with DIRECT BOATING ACCESS to Charlotte Harbor and the Gulf of Mexico.Inside, the home features a bright, open floor plan filled with natural light. The FULLY REMODELED KITCHEN (2025) showcases ALL-NEW APPLIANCES, CABINETRY, AND COUNTERTOPS, creating a modern and functional space ideal for everyday living and entertaining. NEW HIGH-VELOCITY GLASS SLIDING DOORS (2025) seamlessly connect the interior to the outdoor living area, enhancing the indoor-outdoor flow and maximizing canal views.Step outside to your private backyard oasis featuring a SPARKLING POOL overlooking the water. Boating enthusiasts will appreciate the 60' DOCK (2020), 10,000 LB BOAT LIFT, and SEAWALL REPLACED IN 2020, offering peace of mind and exceptional waterfront usability.Major system updates include a NEW ROOF (2023) and NEW A/C UNIT (2025), providing comfort and long-term value.Ideally located near DOWNTOWN PUNTA GORDA, Fishermen's Village, shopping, dining, and waterfront parks, this property is perfect as a PRIMARY RESIDENCE, SEASONAL RETREAT, OR INVESTMENT OPPORTUNITY.
Misc Info
Subdivision: Punta Gorda Isles Sec 05
Annual Taxes: $4,995
Water Front: Bay/Harbor, Brackish Water, Canal - Brackish, Canal - Saltwater, Canal Front, Gulf/Ocean, Gulf/Ocean to Bay, Intracoastal Waterway
Water View: Bay/Harbor - Full, Canal, Gulf/Ocean - Full, Intracoastal Waterway
Water Access: Bay/Harbor, Canal - Saltwater, Gulf/Ocean
Water Extras: Lift, Seawall - Concrete
Lot Size: 0 to less than 1/4
Request the MLS data sheet for this property
Home Features
Appliances: Dishwasher, Dryer, Microwave, Range, Refrigerator, Washer
Flooring: Tile
Air Conditioning: Central Air
Exterior: French Doors, Hurricane Shutters, Private Mailbox, Rain Gutters, Sliding Doors
Room Dimensions
Schools
- Elementary: Sallie Jones Elementary
- High: Charlotte High
- Map
- Walk Score
- Street View






































