- Home
- News
- Popular Property Categories
- Anna Maria Island Real Estate
- Bedroom Communities
- Bradenton Real Estate
- Charlotte Harbor Real Estate
- Downtown Sarasota Condos
- Ellenton Real Estate
- Englewood Real Estate
- Golf Community Real Estate
- Lakewood Ranch Real Estate
- Lido Key Condos
- Longboat Key Real Estate
- Luxury Real Estate
- New Homes for Sale
- Palmer Ranch Real Estate
- Palmetto Real Estate for Sale
- Parrish Real Estate
- Siesta Key Condos
- Siesta Key Homes and Land
- Venice Florida Real Estate
- West of the Trail
- Advanced Search Form
- Featured Listings
- Buyer or Seller?
- Our Company
- Featured Videos
- Login
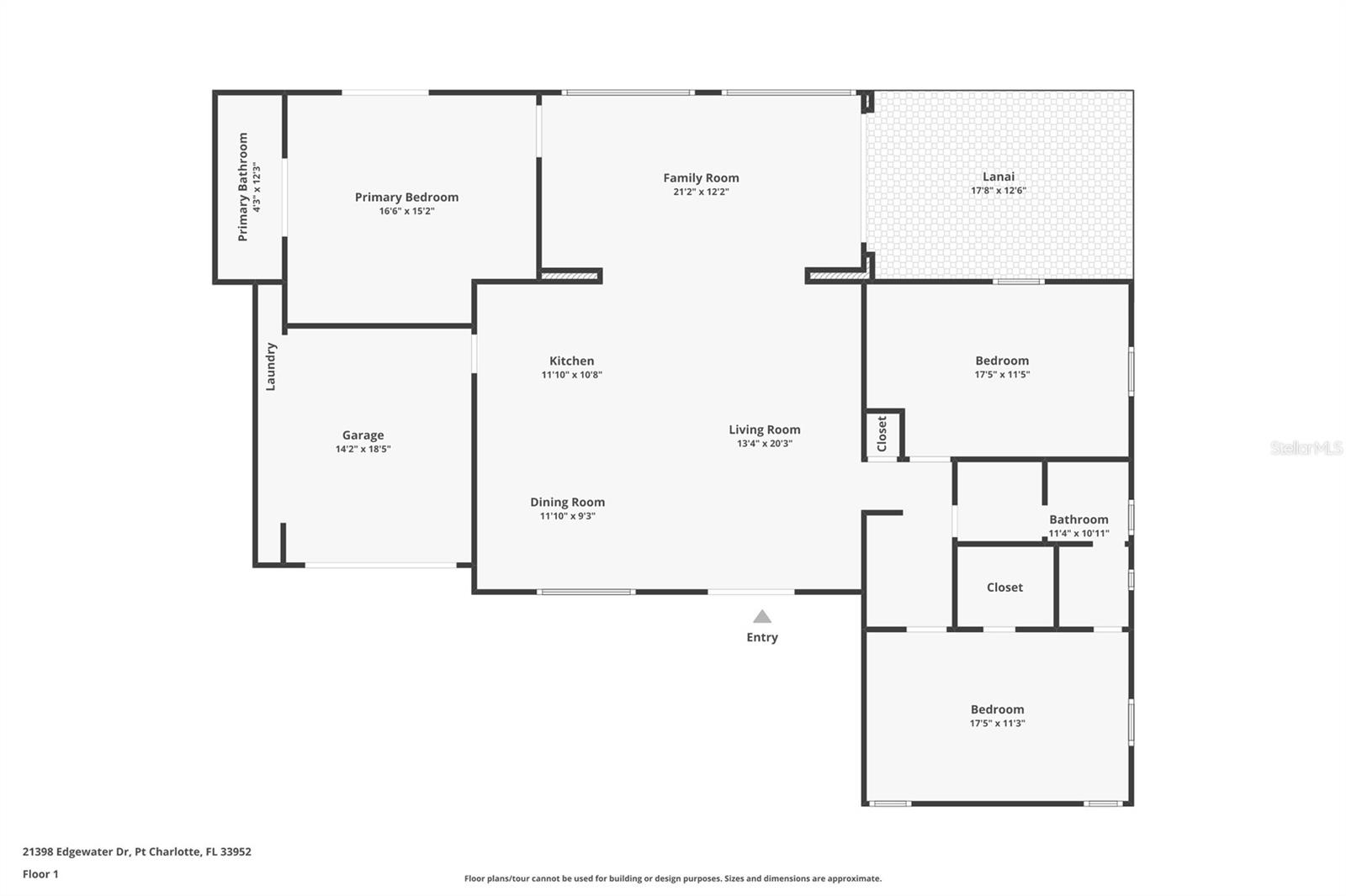
21398 Edgewater Dr, Port Charlotte, Florida
List Price: $499,000
MLS Number:
C7521255
- Status: Active
- DOM: 66 days
- Square Feet: 1641
- Bedrooms: 3
- Baths: 2
- Garage: 1
- City: PORT CHARLOTTE
- Zip Code: 33952
- Year Built: 1965
One or more photo(s) has been virtually staged. Waterfront Perfection on a Premier Tip Lot - Fully Renovated & Move-In ReadyWelcome to 21398 Edgewater Drive, a stunning 3-bedroom, 2-bathroom waterfront residence in the heart of Port Charlotte, where modern design meets effortless Florida living. Completely renovated from top to bottom, this home showcases sleek, contemporary finishes, thoughtful upgrades, and a layout designed to maximize both comfort and water views.Step inside to discover a bright, open interior highlighted by modern touches throughout, complemented by HURRICANE-IMPACT WINDOWS AND DOORS for peace of mind. The well-designed floor plan includes a stylish Jack-and-Jill guest bathroom with a shared shower, perfect for family or visiting guests. The primary suite is a true retreat, featuring tranquil water views that greet you each morning and create a serene escape at the end of the day.Outside is where this property truly shines. Situated on a desirable tip lot, the home enjoys expansive water frontage and picturesque canal views. A brand-new heated pool anchors the outdoor living space, surrounded by an elegant travertine patio ideal for entertaining or relaxing in the Florida sun. Boaters will appreciate the newer dock and boat lift, offering direct access to the water and endless days of cruising, fishing, and waterfront adventure.Additional highlights include a new A/C system, new fencing for added privacy, and a property that has never flooded, according to the seller. Every detail has been carefully curated to deliver a turn-key lifestyle with no compromises.Perfectly located near shopping, dining, and Gulf access waterways, this exceptional home offers the best of waterfront living with modern peace of mind. Whether you're seeking a full-time residence, seasonal retreat, or boating enthusiast's dream, 21398 Edgewater Drive is a rare opportunity you won't want to miss.
Misc Info
Subdivision: Port Charlotte Sec 006
Annual Taxes: $5,986
Water Front: Bay/Harbor, Brackish Water, Canal - Brackish, Canal - Saltwater, Canal Front, Gulf/Ocean, Gulf/Ocean to Bay, Intracoastal Waterway
Water View: Bay/Harbor - Full, Canal, Gulf/Ocean - Full
Water Access: Bay/Harbor, Canal - Saltwater, Gulf/Ocean
Water Extras: Bridges - Fixed, Lift - Covered, Seawall - Concrete
Lot Size: 1/4 to less than 1/2
Request the MLS data sheet for this property
Home Features
Appliances: Cooktop, Refrigerator
Flooring: Tile
Air Conditioning: Central Air
Exterior: Private Mailbox, Rain Gutters, Sliding Doors
Room Dimensions
Schools
- Elementary: Peace River Elementary
- High: Charlotte High
- Map
- Walk Score
- Street View

































