- Home
- News
- Popular Property Categories
- Anna Maria Island Real Estate
- Bedroom Communities
- Bradenton Real Estate
- Charlotte Harbor Real Estate
- Downtown Sarasota Condos
- Ellenton Real Estate
- Englewood Real Estate
- Golf Community Real Estate
- Lakewood Ranch Real Estate
- Lido Key Condos
- Longboat Key Real Estate
- Luxury Real Estate
- New Homes for Sale
- Palmer Ranch Real Estate
- Palmetto Real Estate for Sale
- Parrish Real Estate
- Siesta Key Condos
- Siesta Key Homes and Land
- Venice Florida Real Estate
- West of the Trail
- Advanced Search Form
- Featured Listings
- Buyer or Seller?
- Our Company
- Featured Videos
- Login
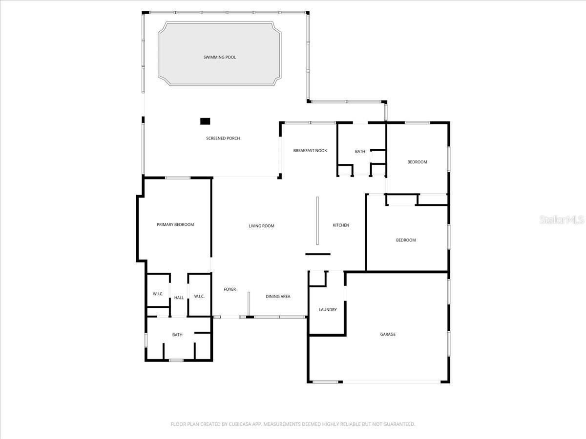
145 Francis Dr Ne, Port Charlotte, Florida
List Price: $549,000
MLS Number:
C7521407
- Status: Active
- DOM: 17 days
- Square Feet: 1966
- Bedrooms: 3
- Baths: 2
- Garage: 2
- City: PORT CHARLOTTE
- Zip Code: 33952
- Year Built: 1998
Exceptionally maintained waterfront pool residence offering a blend of comfort, efficiency, and coastal lifestyle features. Located on a canal overlooking Higgs Park, offering water access paired with rare but delightful views and tranquility. Approximately 1.03 miles to open water via the Elkcam Waterway passing under one fixed bridge - or about 8 minutes at idle speed to the open waters of Charlotte Harbor. Major updates that translate into value for the new homeowner include a 2024 solar photovoltaic system (leased), 2024 pool cage rescreen, 2024 exterior Tex-Cote Coolwall lifetime coating of stucco (not paint), 2022 roof, 2022 hot water heater, 2022 dock planking, and 2018 air conditioning. A kitchen reverse osmosis (2023), wind mitigation and 4-point inspections (2022), pool heater (2018), hot tub, and irrigation supplied by a private well also equate to substantial savings for new owners. MUCH MORE INFO is attached - ask your agent for it, especially the FEATURES SHEET. The interior welcomes guests with volume ceilings highlighting a bright great room with a 12' sliding glass door showcasing pool, canal, and peaceful green space views of the park. The kitchen is designed for daily living and entertaining with a breakfast bar, breakfast nook, and pantry. The primary suite offers two walk-in closets, dual comfort-height vanities, a soaking tub, and linen storage. Additional interior features include tile in wet areas, carpeted bedrooms, Manabloc plumbing, and an interior laundry room with upgraded washer and dryer. Outdoor living maximizes the waterfront setting with a screened entry (2024 rescreen), covered lanai, heated pool, and expansive deck. Boating features include a concrete seawall, dock with water/electric/lighting, a fish cleaning station, a boat lift with an aluminum catwalk, and professionally wrapped pilings for durability. This property comes with a ONE-YEAR HOME WARRANTY for the buyer. MUCH MORE INFO is attached - ask your agent for copies, especially the FEATURES LIST and WARRANTY OUTLINE.
Misc Info
Subdivision: Port Charlotte Sec 006
Annual Taxes: $7,284
Water Front: Brackish Water, Canal - Brackish, Canal - Saltwater, Canal Front
Water View: Canal
Water Access: Canal - Brackish, Canal - Saltwater
Water Extras: Bridges - Fixed, Lift, Seawall - Concrete
Lot Size: 0 to less than 1/4
Request the MLS data sheet for this property
Home Features
Appliances: Dishwasher, Dryer, Electric Water Heater, Kitchen Reverse Osmosis System, Microwave, Range, Refrigerator, Washer
Flooring: Carpet, Ceramic Tile
Air Conditioning: Central Air
Exterior: Rain Gutters
Garage Features: Driveway, Oversized, Parking Pad, Workshop in Garage
Pool Size: 24x12
Room Dimensions
Schools
- Elementary: Peace River Elementary
- High: Charlotte High
- Map
- Walk Score
- Street View




































