- Home
- News
- Popular Property Categories
- Anna Maria Island Real Estate
- Bedroom Communities
- Bradenton Real Estate
- Charlotte Harbor Real Estate
- Downtown Sarasota Condos
- Ellenton Real Estate
- Englewood Real Estate
- Golf Community Real Estate
- Lakewood Ranch Real Estate
- Lido Key Condos
- Longboat Key Real Estate
- Luxury Real Estate
- New Homes for Sale
- Palmer Ranch Real Estate
- Palmetto Real Estate for Sale
- Parrish Real Estate
- Siesta Key Condos
- Siesta Key Homes and Land
- Venice Florida Real Estate
- West of the Trail
- Advanced Search Form
- Featured Listings
- Buyer or Seller?
- Our Company
- Featured Videos
- Login
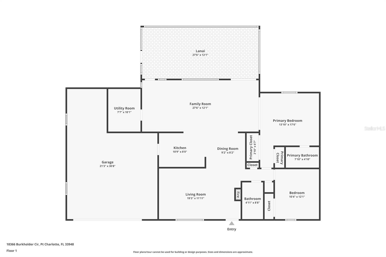
18366 Burkholder Cir, Port Charlotte, Florida
List Price: $319,900
MLS Number:
C7521658
- Status: Active
- DOM: 60 days
- Square Feet: 1245
- Bedrooms: 2
- Baths: 2
- Garage: 2
- City: PORT CHARLOTTE
- Zip Code: 33948
- Year Built: 1971
Imagine starting your mornings with coffee overlooking the water and ending your days by boat at the Harbor--this Gulf-access waterfront home makes it possible.Situated on the Ackerman Waterway with just one bridge to open water, this charming and beautifully updated 2-bedroom, 2-bath home offers 1,245 sq. ft. under air plus additional outdoor living space, all with no deed restrictions or HOA to limit your lifestyle. From the moment you arrive, the home's beautiful curb appeal and friendly waterfront neighborhood set the tone. Inside, there is no carpet anywhere--only fresh laminate flooring, terrazzo tile baths, and all-new interior doors that give the home a clean, modern feel. The open, fully remodeled kitchen is the heart of the home, featuring warm wood cabinetry, granite countertops, pull-out pantry drawers, and all-new stainless steel appliances less than a year old--perfect for both everyday living and entertaining. The enclosed, vented, tiled Florida room extends your living space and invites you to relax while enjoying water views, built-in shelving, and natural light. Just beyond, a spacious screened lanai with no-see-um screening creates the ideal spot for evening breezes and outdoor gatherings. Outside, boating enthusiasts will love the 10x22 wood dock, redone in 2015 with wrapped pilings for longevity, offering quick access to the Harbor and Gulf beyond. An exterior utility sink, plus a shed with electric, water, and an outdoor shower, add exceptional functionality for waterfront living. Practical upgrades bring peace of mind, including a new roof (2023), 2017 A/C system, updated electric panel (2012), hot water heater under one year old, and a septic system inspected and pumped in 2025. Flood insurance is assumable and under $3,000 per year. The 20x20 garage includes extra workspace and storage, a ceiling fan, and a built-in workbench, while the interior utility room offers abundant cabinetry, a utility sink, and even a built-in ironing board. Washer and dryer (new in 2025) are included, and furniture is negotiable--making this home truly move-in ready. This is more than a house--it's a waterfront lifestyle with freedom, comfort, and direct Gulf access.
Misc Info
Subdivision: Port Charlotte Sec 037
Annual Taxes: $1,698
Water Front: Canal - Brackish
Water View: Canal
Water Access: Bay/Harbor, Brackish Water, Canal - Brackish
Water Extras: Bridges - Fixed, Davits
Lot Size: 0 to less than 1/4
Request the MLS data sheet for this property
Home Features
Appliances: Dishwasher, Dryer, Electric Water Heater, Microwave, Range, Refrigerator, Washer
Flooring: Laminate, Terrazzo, Tile
Air Conditioning: Central Air
Exterior: Outdoor Shower, Private Mailbox, Storage
Garage Features: Driveway, Off Street, Workshop in Garage
Room Dimensions
- Map
- Walk Score
- Street View




















































