- Home
- News
- Popular Property Categories
- Anna Maria Island Real Estate
- Bedroom Communities
- Bradenton Real Estate
- Charlotte Harbor Real Estate
- Downtown Sarasota Condos
- Ellenton Real Estate
- Englewood Real Estate
- Golf Community Real Estate
- Lakewood Ranch Real Estate
- Lido Key Condos
- Longboat Key Real Estate
- Luxury Real Estate
- New Homes for Sale
- Palmer Ranch Real Estate
- Palmetto Real Estate for Sale
- Parrish Real Estate
- Siesta Key Condos
- Siesta Key Homes and Land
- Venice Florida Real Estate
- West of the Trail
- Advanced Search Form
- Featured Listings
- Buyer or Seller?
- Our Company
- Featured Videos
- Login
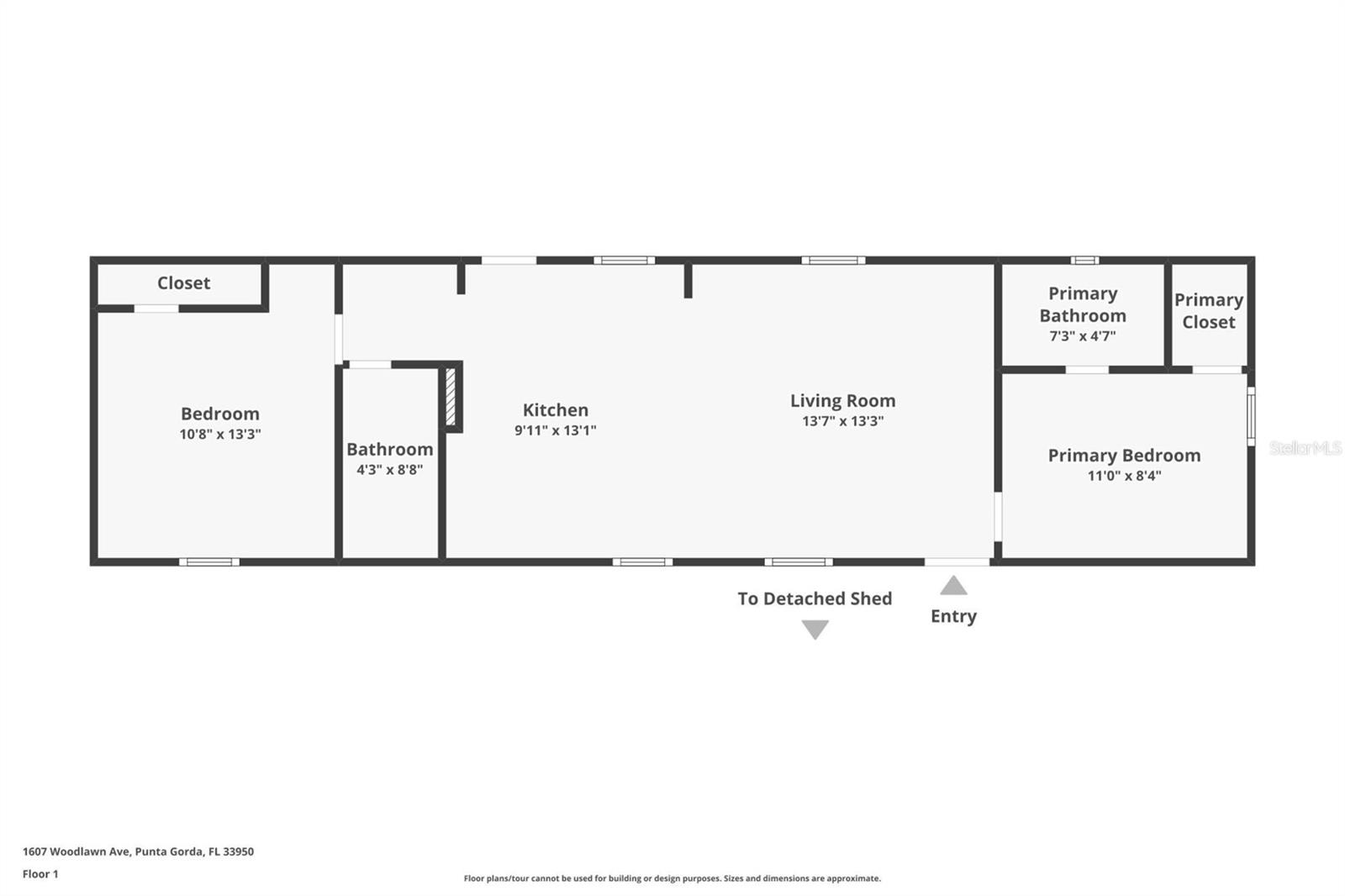
1607 Woodlawn Ave, Punta Gorda, Florida
List Price: $139,000
MLS Number:
C7521932
- Status: Active
- DOM: 53 days
- Square Feet: 728
- Bedrooms: 2
- Baths: 2
- Garage: 1
- City: PUNTA GORDA
- Zip Code: 33950
- Year Built: 2005
Affordable Florida Living So Close to Charlotte Harbor!Welcome to this Well-maintained 2005 manufactured home ideally located less than 5 Minutes from the Heart of Punta Gorda and the Beautiful Charlotte Harbor! Enjoy the Convenience of being Close to Historic Downtown Harborfront Punta Gorda -- offering Waterfront Parks, Boutique Shopping, Vibrant waterfront Dining, Art galleries, Fishing, Boating, Marinas, Medical facilities, and Easy access to Interstate 75.This centrally located property features a Large Fenced Backyard, Perfect for Pets, Gardening, or Outdoor Entertaining. A Garage Plus Storage Shed provide ample room for tools, toys, and seasonal dcor. Additional Highlights Include Hurricane protection & Rain gutters,.Whether you're looking for a Winter Retreat, Investment Opportunity, or Your Own Slice of Southwest Florida SUNSHINE, this home offers Exceptional Value in a Highly desirable area.Punta Gorda welcomes Bicycle Enthusiasts - There are 18 miles of Beautiful Biking Trails that include riding along Charlotte Harbor Water front!It's a Great price for a Prime location. Your piece of Precious Punta Gorda awaits!
Misc Info
Subdivision: Frst Haven
Annual Taxes: $1,695
Lot Size: 0 to less than 1/4
Request the MLS data sheet for this property
Home Features
Appliances: Dishwasher, Dryer, Microwave, Range, Range Hood, Refrigerator, Washer
Flooring: Laminate
Air Conditioning: Central Air
Exterior: Hurricane Shutters, Lighting, Private Mailbox, Private Yard, Rain Gutters, Storage
Garage Features: Covered
Room Dimensions
- Map
- Walk Score
- Street View


































