- Home
- News
- Popular Property Categories
- Anna Maria Island Real Estate
- Bedroom Communities
- Bradenton Real Estate
- Charlotte Harbor Real Estate
- Downtown Sarasota Condos
- Ellenton Real Estate
- Englewood Real Estate
- Golf Community Real Estate
- Lakewood Ranch Real Estate
- Lido Key Condos
- Longboat Key Real Estate
- Luxury Real Estate
- New Homes for Sale
- Palmer Ranch Real Estate
- Palmetto Real Estate for Sale
- Parrish Real Estate
- Siesta Key Condos
- Siesta Key Homes and Land
- Venice Florida Real Estate
- West of the Trail
- Advanced Search Form
- Featured Listings
- Buyer or Seller?
- Our Company
- Featured Videos
- Login
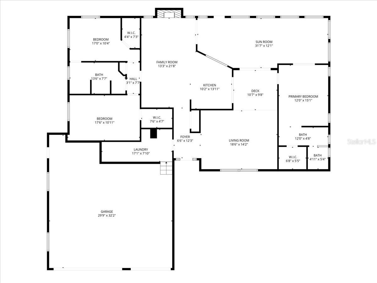
1116 Hawks Nest Ct, Punta Gorda, Florida
List Price: $645,000
MLS Number:
C7522048
- Status: Active
- DOM: 50 days
- Square Feet: 2570
- Bedrooms: 3
- Baths: 2
- Garage: 3
- City: PUNTA GORDA
- Zip Code: 33950
- Year Built: 1990
Nestled on a quiet cul-de-sac, and within 5-minute walking distance to Fisherman's' Village, this meticulously maintained single-family home offers 2,170 sq. ft. of thoughtfully designed living space--perfect for a growing family. Built in 1990, the residence features three bedrooms, two bathrooms, and a welcoming family room anchored by a stunning floor-to-ceiling stone fireplace. Exceptional curb appeal greets you with lush landscaping, a covered front entryway, a durable metal roof, a gracefully curved driveway, and an attached three-car RV garage. This garage features two overhead doors, extra-clearance ceilings to accommodate an RV, a pristine epoxy floor, and 220V power. A full wall of built-in cabinetry and shelving, a wall-mounted organization system, and a convenient workbench provide ample space for parking, storage, or home projects. Boaters will appreciate 104 feet of waterfront, complete with a city-maintained concrete seawall and a dock with water and electric hook-ups. Enjoy quick boating access under one bridge to open water in 15 minutes or less, with direct access to Charlotte Harbor and the Gulf. The fenced-in backyard adds privacy and security, perfect for children, pets, or outdoor entertaining. Inside, the bright and inviting living and dining areas feature hardwood floors, crown molding, and an open layout perfect for entertaining or everyday life. Wide entryways and upgraded light fixtures enhance the elegant yet comfortable atmosphere. The beautifully updated kitchen offers a bright, open design that blends modern finishes with warm, welcoming character. Crisp white cabinetry lines both sides, accented by sleek brushed-metal hardware and rich, dark granite countertops. Stainless steel appliances--including a French-door refrigerator, dishwasher, and range--combine style with functionality, while a textured tile backsplash adds visual interest. Natural wood floors flow seamlessly into the adjoining dining area, and recessed lighting, under-cabinet illumination, and a central ceiling fixture ensure a well-lit workspace. A wide pass-through opening to the living area enhances the open-concept design. With abundant counter space and ample storage, this kitchen truly serves as the heart of the home. The family room flows naturally from the kitchen, creating a central gathering space with easy access to the Florida room and dining area. The Florida room, featuring expansive windows, fills the home with natural light and offers a bright, inviting space to relax or entertain. The spacious primary suite provides direct access to the Florida room and includes an en-suite bath with a large single-sink vanity, an expansive walk-in closet, and a tub-shower combination. A desirable split-bedroom floor plan offers generous guest bedrooms, each with walk-in closets, while the guest bathroom features a jetted tub and separate walk-in shower. Step outside to your private outdoor oasis, where a large patio with a retractable awning and a relaxing hot tub await--perfect for enjoying the Florida sunshine. Additional highlights include an inside laundry room with washer and dryer, hurricane shutters, an irrigation system, and updated water heater and A/C. Easy access to I-75 and US-41. Enjoy proximity to downtown Punta Gorda's shops and restaurants, Saint Andrews Golf Course, and excellent boating, fishing, and sailing opportunities. **PLEASE ENJOY THE 3D INTERACTIVE VIRTUAL TOUR ASSOCIATED WITH THIS LISTING**
Misc Info
Subdivision: Punta Gorda Isles Sec 11
Annual Taxes: $7,813
Water Front: Canal Front
Water View: Canal
Water Access: Bay/Harbor, Canal - Brackish, Canal - Freshwater, Canal - Saltwater, Gulf/Ocean, Gulf/Ocean to Bay, Intracoastal Waterway, River
Water Extras: Bridges - Fixed, Lift, Seawall - Concrete
Lot Size: 1/4 to less than 1/2
Request the MLS data sheet for this property
Home Features
Appliances: Dishwasher, Dryer, Electric Water Heater, Microwave, Range, Refrigerator, Washer
Flooring: Tile, Vinyl
Fireplace: Family Room, Wood Burning
Air Conditioning: Central Air
Exterior: Awning(s), Hurricane Shutters, Lighting, Rain Gutters
Garage Features: Circular Driveway, Driveway, Garage Door Opener, Ground Level, Off Street, Oversized, RV Garage, RV Access/Parking
Room Dimensions
- Map
- Walk Score
- Street View






























































