- Home
- News
- Popular Property Categories
- Anna Maria Island Real Estate
- Bedroom Communities
- Bradenton Real Estate
- Charlotte Harbor Real Estate
- Downtown Sarasota Condos
- Ellenton Real Estate
- Englewood Real Estate
- Golf Community Real Estate
- Lakewood Ranch Real Estate
- Lido Key Condos
- Longboat Key Real Estate
- Luxury Real Estate
- New Homes for Sale
- Palmer Ranch Real Estate
- Palmetto Real Estate for Sale
- Parrish Real Estate
- Siesta Key Condos
- Siesta Key Homes and Land
- Venice Florida Real Estate
- West of the Trail
- Advanced Search Form
- Featured Listings
- Buyer or Seller?
- Our Company
- Featured Videos
- Login
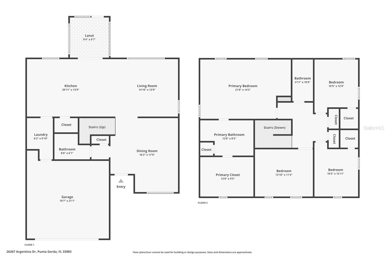
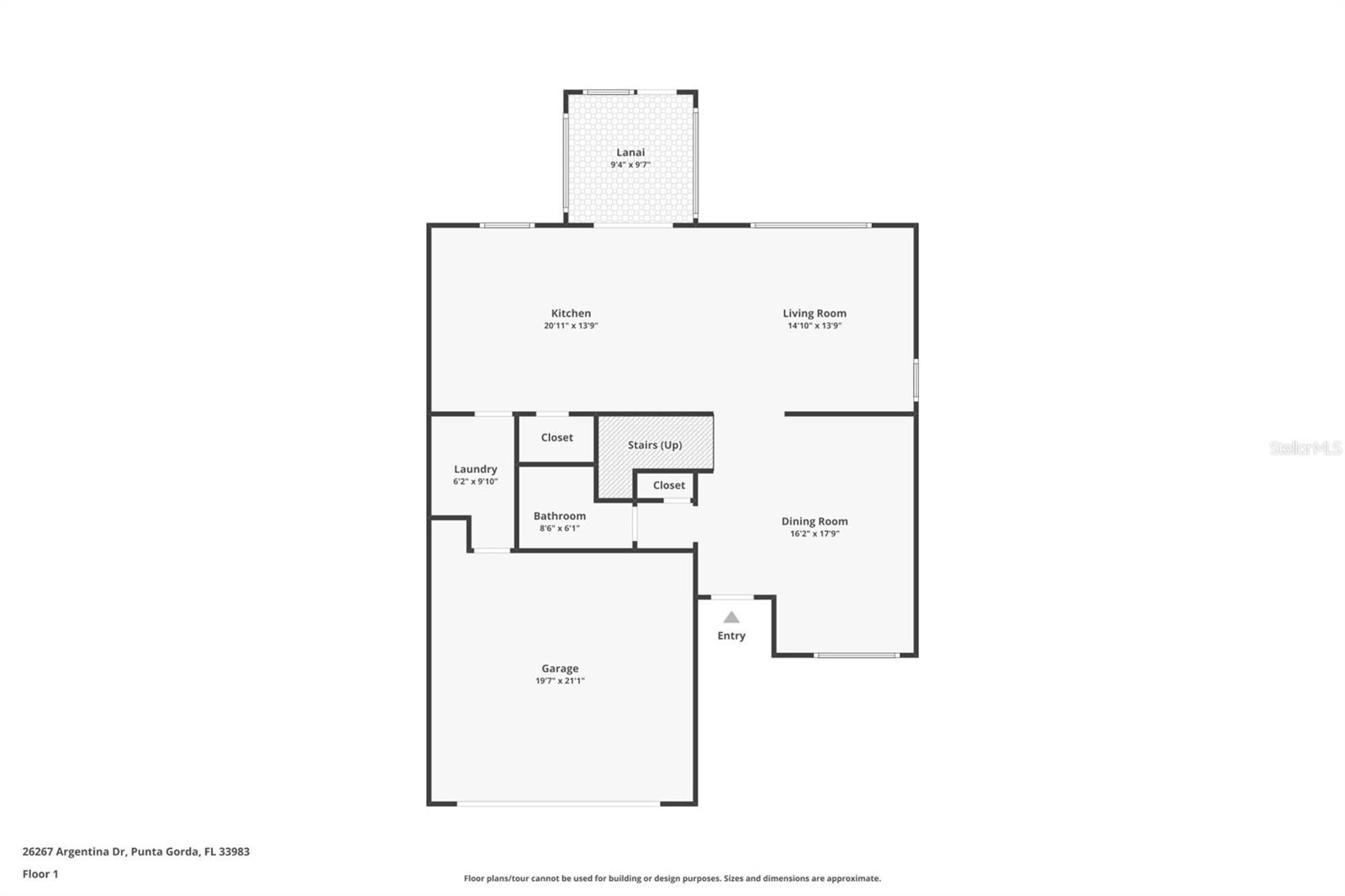
26267 Argentina Dr, Punta Gorda, Florida
List Price: $349,900
MLS Number:
C7522140
- Status: Active
- DOM: 49 days
- Square Feet: 2375
- Bedrooms: 3
- Baths: 2
- Half Baths: 1
- Garage: 2
- City: PUNTA GORDA
- Zip Code: 33983
- Year Built: 2006
- HOA Fee: $200
- Payments Due: Annually
Welcome to this spacious two-story Deep Creek home! Offering generous living space and a functional layout, this beautiful home provides the perfect blend of comfort, style, and Florida charm. No flood zone, minimal deed restrictions, community park and sidewalks. Step inside to discover a bright and open floor plan designed for everyday living and effortless entertaining. The main level features expansive living areas with plenty of natural light, creating a warm and inviting atmosphere. The spacious kitchen with island, two tone cabinetry, solid surface counter tops, closet pantry and area from breakfast table and bar overlooks the family room and backyard, making it ideal for gatherings, holiday celebrations, or simply enjoying time together. Included on the main level are a half bathroom and spacious utility room. Upstairs, you'll find three well-sized bedrooms and a den that offer privacy and flexibility, home office, or guest accommodations. The large primary suite provides a peaceful retreat with large closet space and room to unwind at the end of the day. One of the standout features of this home is the beautiful backyard. Enjoy your morning coffee or evening sunsets from the patio while overlooking lush landscaping and plenty of room for outdoor activities. Whether you envision adding a pool, creating a garden, or hosting weekend barbecues, this backyard offers endless possibilities. Home features a roof new in 2023, hurricane shutters and fresh exterior paint (last month). Come live your best life in SW FL and take advantage of all the sunshine state has to offer with World Famous Fishing, Nature parks, Award-winning Golf Courses, and stunning beaches on the Gulf of Mexico! Conveniently located minutes from I-75, it is a quick 30-minute drive to Sarasota or Fort Myers. Charlotte County is home to the beautiful historic downtown Punta Gorda, Hilton Curio Sunseeker Resort and the Atlanta Braves and Tampa Bay Rays Spring Training Sports Parks! Don't miss your opportunity to make this wonderful town YOUR hometown! **See Tour 1 for 3D Walk Through**
Misc Info
Subdivision: Punta Gorda Isles Sec 20
Annual Taxes: $3,270
HOA Fee: $200
HOA Payments Due: Annually
Lot Size: 1/4 to less than 1/2
Request the MLS data sheet for this property
Home Features
Appliances: Convection Oven, Dishwasher, Disposal, Dryer, Electric Water Heater, Microwave, Range, Refrigerator, Washer
Flooring: Carpet, Ceramic Tile, Luxury Vinyl
Air Conditioning: Central Air
Exterior: Lighting
Garage Features: Driveway, Garage Door Opener
Room Dimensions
Schools
- Elementary: Deep Creek Elementary
- High: Charlotte High
- Map
- Walk Score
- Street View

























































