- Home
- News
- Popular Property Categories
- Anna Maria Island Real Estate
- Bedroom Communities
- Bradenton Real Estate
- Charlotte Harbor Real Estate
- Downtown Sarasota Condos
- Ellenton Real Estate
- Englewood Real Estate
- Golf Community Real Estate
- Lakewood Ranch Real Estate
- Lido Key Condos
- Longboat Key Real Estate
- Luxury Real Estate
- New Homes for Sale
- Palmer Ranch Real Estate
- Palmetto Real Estate for Sale
- Parrish Real Estate
- Siesta Key Condos
- Siesta Key Homes and Land
- Venice Florida Real Estate
- West of the Trail
- Advanced Search Form
- Featured Listings
- Buyer or Seller?
- Our Company
- Featured Videos
- Login
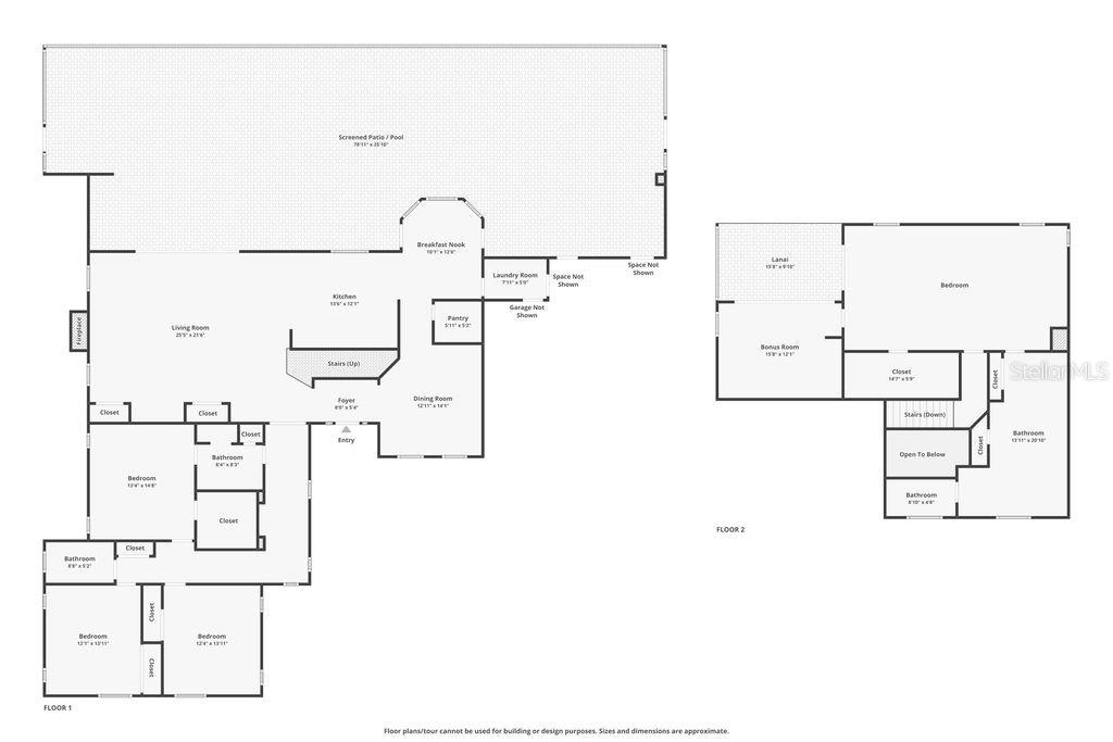
139 Seville Pl Sw, Port Charlotte, Florida
List Price: $1,295,000
MLS Number:
C7522197
- Status: Active
- DOM: 50 days
- Square Feet: 3285
- Bedrooms: 4
- Baths: 4
- Garage: 2
- City: PORT CHARLOTTE
- Zip Code: 33952
- Year Built: 1989
STUNNING COASTAL RESIDENCE. Experience exceptional waterfront living at this fully renovated coastal estate offering sailboat access to Charlotte Harbor in approximately 15 minutes, no bridges, just open water, stunning sunsets, and the ultimate Southwest Florida boating lifestyle. Situated on an oversized lot with 150 feet of saltwater frontage, this 4-bedroom, 4-bath residence seamlessly blends luxury with peace of mind. A metal roof, impact windows and doors, and high-quality finishes provide durability, energy efficiency, and the potential for lower insurance costs. Inside, high ceilings, French doors, plantation shutters, and coastal accents create a bright, welcoming atmosphere. The chef's kitchen showcases quartzite countertops, stainless steel appliances, solid wood cabinetry, open shelving, and a spacious breakfast bar ideal for entertaining. The primary suite offers a private retreat with dual vanities, a glass walk-in shower, Jacuzzi soaking tub, steam room, built-in wet bar, and a private balcony overlooking tranquil canal views. Outdoor living is exceptional, featuring a heated saltwater pool, expansive paver deck, and serene water feature designed for relaxation and entertaining. Boaters will appreciate the composite dock, 16,000-lb boat lift. Conveniently located near downtown Punta Gorda, golf courses, dining, Punta Gorda Airport, and Gulf beaches, this home offers the perfect blend of luxury, lifestyle, and location.
Misc Info
Subdivision: Port Charlotte Sec 043
Annual Taxes: $13,550
Water Front: Canal - Saltwater
Water View: Canal
Water Access: Bay/Harbor, Brackish Water, Canal - Brackish, Canal - Saltwater, Gulf/Ocean, Gulf/Ocean to Bay, River
Water Extras: Bridges - No Fixed Bridges, Lift, Sailboat Water, Seawall - Concrete
Lot Size: 1/4 to less than 1/2
Request the MLS data sheet for this property
Home Features
Appliances: Dryer, Microwave, Range, Refrigerator, Washer
Flooring: Luxury Vinyl, Tile
Air Conditioning: Central Air
Exterior: French Doors, Outdoor Shower, Private Mailbox, Rain Gutters
Garage Features: Driveway, Garage Door Opener
Pool Size: 14x30
Room Dimensions
Schools
- Elementary: Kingsway
- High: Charlotte High
- Map
- Walk Score
- Street View


























































