- Home
- News
- Popular Property Categories
- Anna Maria Island Real Estate
- Bedroom Communities
- Bradenton Real Estate
- Charlotte Harbor Real Estate
- Downtown Sarasota Condos
- Ellenton Real Estate
- Englewood Real Estate
- Golf Community Real Estate
- Lakewood Ranch Real Estate
- Lido Key Condos
- Longboat Key Real Estate
- Luxury Real Estate
- New Homes for Sale
- Palmer Ranch Real Estate
- Palmetto Real Estate for Sale
- Parrish Real Estate
- Siesta Key Condos
- Siesta Key Homes and Land
- Venice Florida Real Estate
- West of the Trail
- Advanced Search Form
- Featured Listings
- Buyer or Seller?
- Our Company
- Featured Videos
- Login
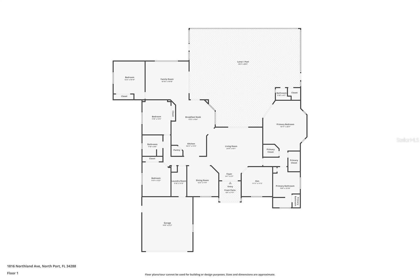
1816 Northland Ave, North Port, Florida
List Price: $650,000
MLS Number:
C7522198
- Status: Active
- DOM: 2 days
- Square Feet: 2712
- Bedrooms: 4
- Baths: 2
- Half Baths: 1
- Garage: 2
- City: NORTH PORT
- Zip Code: 34288
- Year Built: 2012
Discover comfortable Florida living in this well-maintained, furnished 4 bedroom, 2.5 bath home located in a peaceful North Port neighborhood. NOT A FLOOD ZONE! The property features an inviting open layout with bright living areas that flows easily into the dining space and kitchen, creating a functional setup for everyday living. The kitchen features slow close wood cabinets, granite countertops, stainless steel appliances, breakfast bar and nook. Two living areas include a large living room with triple tray ceiling and glass pocket sliders, the den with glass sliders that both lead to the lanai and pool area. The split-bedroom design provides privacy, with a spacious primary suite offering walk-in closets and an en-suite bath with two sinks, and jetted soaking tub. Tray ceiling in the primary bedroom with glass sliders leading to the pool area. The additional bedrooms are well-sized and versatile for guests, or furniture enhancements. Heated saltwater pool and hot tub, wet bar, storage, and a half bath. NEW ROOF and Insulation 2022. New tile throughout all living areas. Conveniently situated near shopping, dining, parks, and Gulf Coast Beaches. The home delivers a balanced blend of comfort, convenience, and value in a growing community. "Virtual Tour 1" to view the 3-D Tour and Floor Plan. "Video Tour 2" to view video tour.
Misc Info
Subdivision: Port Charlotte Sub 51
Annual Taxes: $7,371
Lot Size: 1/4 to less than 1/2
Request the MLS data sheet for this property
Home Features
Appliances: Dishwasher, Dryer, Electric Water Heater, Exhaust Fan, Microwave, Refrigerator, Washer, Water Filtration System
Flooring: Carpet, Ceramic Tile, Laminate, Vinyl
Air Conditioning: Central Air
Exterior: Private Mailbox, Rain Gutters, Sliding Doors
Garage Features: Curb Parking, Driveway, Garage Door Opener, Off Street
Pool Size: 26X13
Room Dimensions
- Map
- Walk Score
- Street View


























































