- Home
- News
- Popular Property Categories
- Anna Maria Island Real Estate
- Bedroom Communities
- Bradenton Real Estate
- Charlotte Harbor Real Estate
- Downtown Sarasota Condos
- Ellenton Real Estate
- Englewood Real Estate
- Golf Community Real Estate
- Lakewood Ranch Real Estate
- Lido Key Condos
- Longboat Key Real Estate
- Luxury Real Estate
- New Homes for Sale
- Palmer Ranch Real Estate
- Palmetto Real Estate for Sale
- Parrish Real Estate
- Siesta Key Condos
- Siesta Key Homes and Land
- Venice Florida Real Estate
- West of the Trail
- Advanced Search Form
- Featured Listings
- Buyer or Seller?
- Our Company
- Featured Videos
- Login
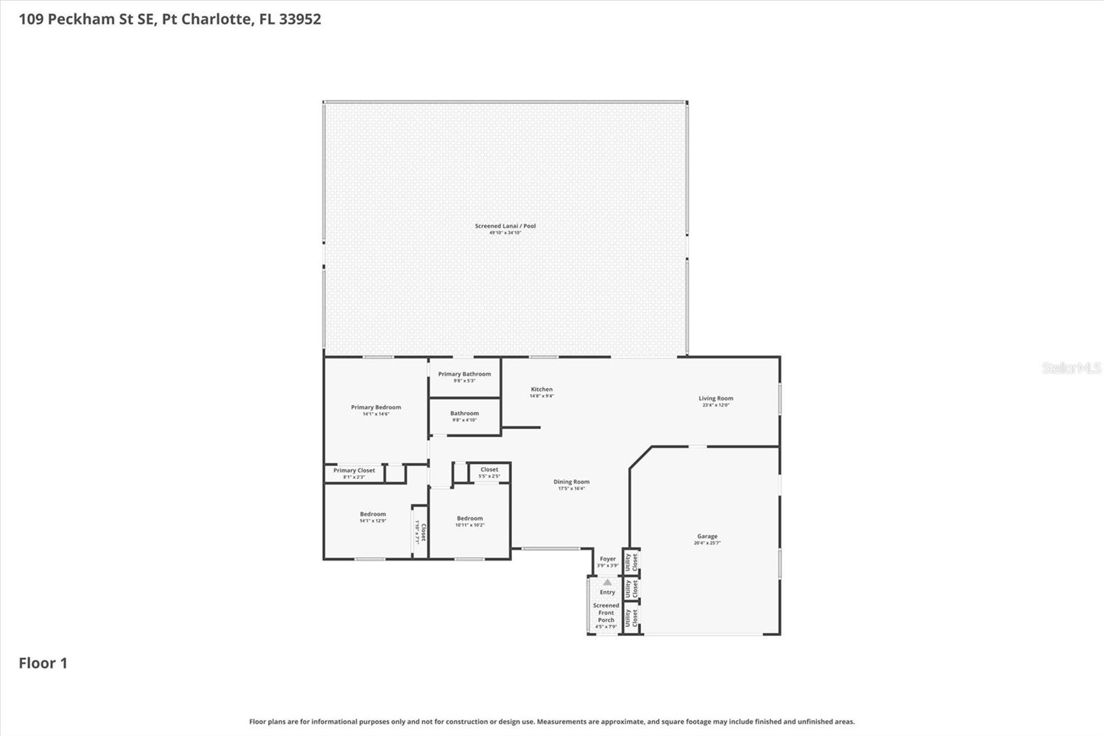
109 Peckham St Se, Port Charlotte, Florida
List Price: $549,800
MLS Number:
C7523183
- Status: Active
- Square Feet: 1490
- Bedrooms: 3
- Baths: 2
- Garage: 2
- City: PORT CHARLOTTE
- Zip Code: 33952
- Year Built: 1977
SAILBOAT ACCESS! TURNKEY! FULLY FURNISHED AND READY FOR YOU! Move right into this 3 bedroom, 2 bath, 2 car garage sailboat waterfront pool and spa home with 80 feet of concrete seawall, dock, and a new 10,000 LB covered boat lift. Located within walking distance to the Port Charlotte Beach Complex, this property offers the ultimate Florida waterfront lifestyle. If you enjoy boating, fishing, biking, kayaking, relaxing by the pool and spa, and hosting cookouts, this home delivers it all. The location truly stands out with immediate access to Charlotte Harbor and the Gulf of Mexico, making it easy to get out on the water anytime you want. Important updates bring peace of mind and modern comfort. The home features a NEW Rheem A/C (3 years), NEW roof (3 years), and NEW hot water heater (3 years). The kitchen includes a NEW refrigerator with a picture door display (3 years). The washer is 4 years old and the dryer is NEW. The pool system has a newer $3,000 pump, and the lanai and screening have also been updated. Hurricane protection is in place with impact windows in the front and hurricane shutters throughout the home. Inside, the floor plan offers plenty of room to spread out and enjoy daily life. The kitchen opens directly to the living room and family room, with a dining area located right off the kitchen for easy meals and gatherings. A large granite wrap-around breakfast bar creates the perfect spot for casual dining and entertaining. The kitchen features wood cabinetry with crown molding, granite countertops, and a matching granite backsplash that adds a clean and polished look. Attention to detail is found throughout the home. Crown molding runs through the entire house, including the bathrooms, and chair molding accents the main living areas. All bedrooms are spacious and offer great closet space with mirrored doors and ceiling fans for comfort. The main bedroom includes an additional linen closet along with the main closet for extra storage. Both bathrooms have been nicely updated with granite counters, wood cabinets, tiled walls, and modern glass doors. The main bathroom features a walk-in shower and also serves as a convenient pool bath with direct access to the pool and spa. The guest bath includes a tub and shower combination. Step outside and enjoy the huge covered brick paver lanai and pool patio measuring 12 x 49. The lanai covering is brand new and provides a large shaded area for relaxing, grilling, and enjoying the Florida sunshine. With sailboat water access, a private dock, pool, spa, and beautiful outdoor living space, this waterfront home truly has everything needed to enjoy sunny Florida living all year long!
Misc Info
Subdivision: Port Charlotte Sec 039
Annual Taxes: $6,836
Water Front: Canal - Saltwater
Water View: Canal
Water Access: Bay/Harbor, Beach, Brackish Water, Canal - Brackish, Canal - Freshwater, Canal - Saltwater, Gulf/Ocean, Intracoastal Waterway
Water Extras: Bridges - No Fixed Bridges, Lift - Covered, Sailboat Water, Seawall - Concrete
Lot Size: 0 to less than 1/4
Request the MLS data sheet for this property
Home Features
Appliances: Dishwasher, Dryer, Electric Water Heater, Microwave, Range, Refrigerator, Washer
Flooring: Ceramic Tile
Air Conditioning: Central Air
Exterior: Hurricane Shutters, Lighting, Rain Gutters, Sliding Doors
Garage Features: Driveway
Room Dimensions
Schools
- Elementary: Peace River Elementary
- High: Charlotte High
- Map
- Walk Score
- Street View


















































