- Home
- News
- Popular Property Categories
- Anna Maria Island Real Estate
- Bedroom Communities
- Bradenton Real Estate
- Charlotte Harbor Real Estate
- Downtown Sarasota Condos
- Ellenton Real Estate
- Englewood Real Estate
- Golf Community Real Estate
- Lakewood Ranch Real Estate
- Lido Key Condos
- Longboat Key Real Estate
- Luxury Real Estate
- New Homes for Sale
- Palmer Ranch Real Estate
- Palmetto Real Estate for Sale
- Parrish Real Estate
- Siesta Key Condos
- Siesta Key Homes and Land
- Venice Florida Real Estate
- West of the Trail
- Advanced Search Form
- Featured Listings
- Buyer or Seller?
- Our Company
- Featured Videos
- Login
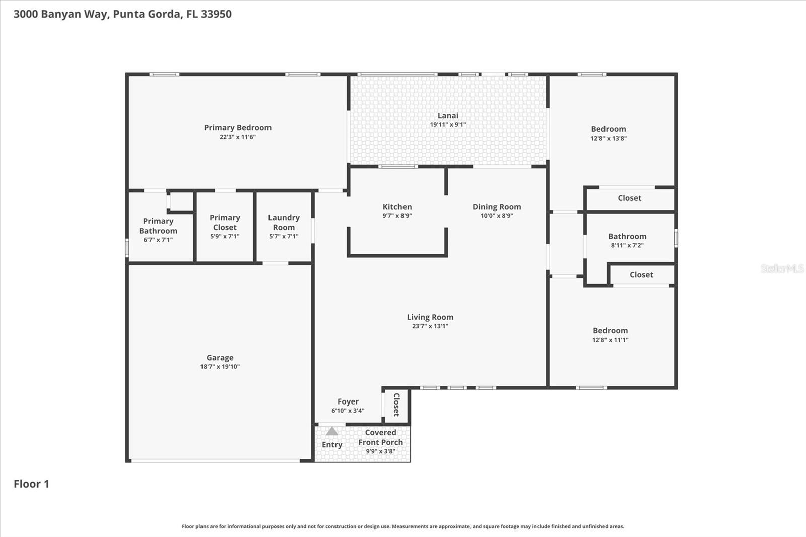
3000 Banyan Way, Punta Gorda, Florida
List Price: $375,000
MLS Number:
C7523628
- Status: Active
- DOM: 21 days
- Square Feet: 1532
- Bedrooms: 3
- Baths: 2
- Garage: 2
- City: PUNTA GORDA
- Zip Code: 33950
- Year Built: 1989
Waterfront freedom with NO HOA and NO deed restrictions -- welcome to your private slice of Southwest Florida paradise with 211 feet of prime waterfront and intersecting canals. This beautifully maintained 3-bedroom, 2-bath canal-front home with 1,532 sq ft sits on an oversized nearly 1/3-acre lot at the end of a quiet cul-de-sac, offering space, privacy, and direct boating access (20 minutes) to Charlotte Harbor and the Gulf of Mexico. Bring your boat, RV, and all the toys -- there's plenty of room here to live the Florida lifestyle the way it was meant to be. LOCATION LOCATION LOCATION! Enjoy true coastal living with a brand-new metal roof, new dock, and direct saltwater canal access leading to some of the best boating and fishing on Florida's west coast. The mangrove-lined seawall and natural setting create a peaceful, Key West-style atmosphere where wildlife, birds, and dolphins are part of everyday life. Cast a line from your dock, cruise to the harbor in minutes, or simply relax in your backyard garden oasis.Inside, the home offers a comfortable and inviting layout with tasteful finishes, hurricane impact windows in the front, and a relaxed, coastal feel throughout. The large yard provides plenty of space for entertaining, future pool plans, or storing recreational vehicles -- a rare find this close to the water.Located just minutes from historic downtown Punta Gorda, you'll enjoy easy access to Fisherman's Village, SunSeeker Resort, waterfront dining, shopping, live music, marinas, golf, and year-round events. Commuters and travelers will appreciate quick access to I-75, the Punta Gorda Airport, and Southwest Florida International Airport, with convenient drives to Fort Myers, Naples, Venice, Sarasota, Boca Grande, and Sanibel Island beaches.Situated on a quiet corner canal with only a handful of neighboring homes, this property offers the perfect blend of privacy, boating access, and location. Whether you're looking for a full-time residence, seasonal getaway, or high-potential vacation rental, this home checks every box.If you've been searching for waterfront living with freedom, space, and a laid-back coastal vibe -- this is the one. Call today for a private showing.
Misc Info
Subdivision: Charlotte Park
Annual Taxes: $5,757
Lot Size: 1/4 to less than 1/2
Request the MLS data sheet for this property
Home Features
Appliances: Dishwasher, Microwave, Range, Refrigerator
Flooring: Luxury Vinyl, Tile
Air Conditioning: Central Air
Exterior: Courtyard, Sliding Doors
Garage Features: Driveway, Garage Door Opener, Workshop in Garage
Room Dimensions
Schools
- Elementary: Sallie Jones Elementary
- High: Charlotte High
- Map
- Walk Score
- Street View













































































