- Home
- News
- Popular Property Categories
- Anna Maria Island Real Estate
- Bedroom Communities
- Bradenton Real Estate
- Charlotte Harbor Real Estate
- Downtown Sarasota Condos
- Ellenton Real Estate
- Englewood Real Estate
- Golf Community Real Estate
- Lakewood Ranch Real Estate
- Lido Key Condos
- Longboat Key Real Estate
- Luxury Real Estate
- New Homes for Sale
- Palmer Ranch Real Estate
- Palmetto Real Estate for Sale
- Parrish Real Estate
- Siesta Key Condos
- Siesta Key Homes and Land
- Venice Florida Real Estate
- West of the Trail
- Advanced Search Form
- Featured Listings
- Buyer or Seller?
- Our Company
- Featured Videos
- Login
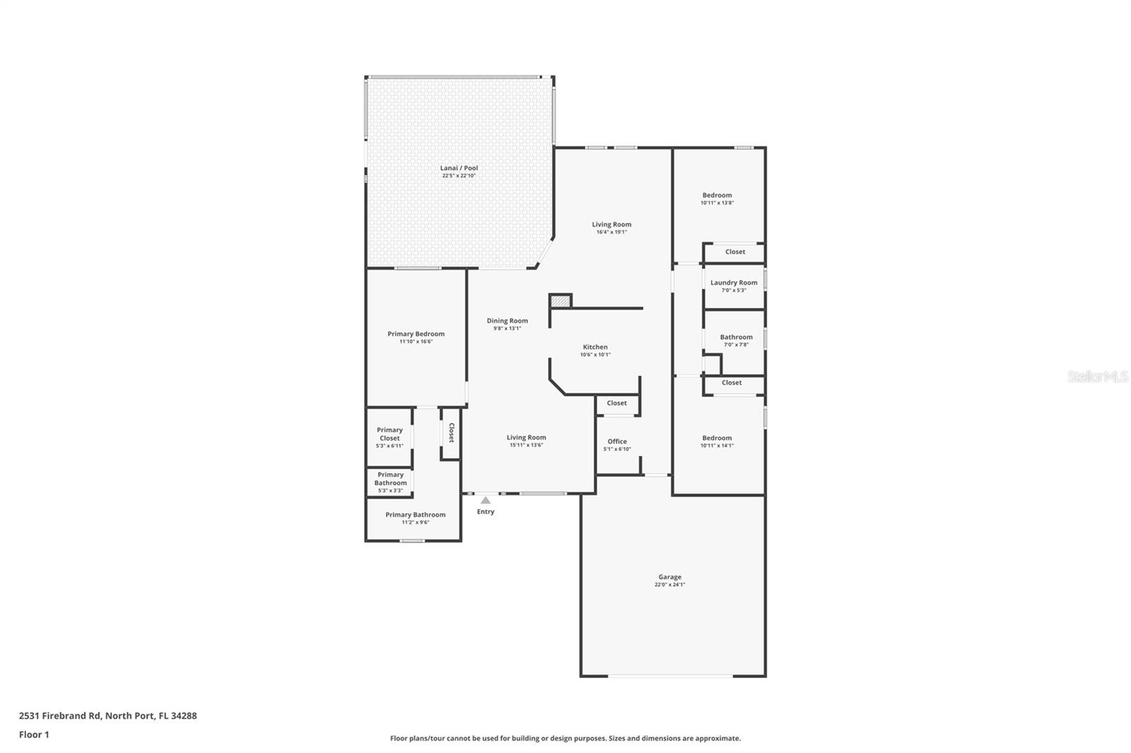
2531 Firebrand Rd, North Port, Florida
List Price: $399,900
MLS Number:
C7524181
- Status: Active
- DOM: 13 days
- Square Feet: 1909
- Bedrooms: 3
- Baths: 2
- Garage: 2
- City: NORTH PORT
- Zip Code: 34288
- Year Built: 2007
Welcome to your slice of Florida living in the desirable community of North Port. This well-maintained 3 bedroom, 2 bathroom pool home offers over 1,900 square feet of comfortable living space, perfectly situated on a spacious lot just under a quarter-acre.Built in 2007, this thoughtfully designed home features a functional split floor plan, ideal for both everyday living and entertaining. The open living areas create a welcoming flow, while the generously sized bedrooms provide comfort and flexibility for family, guests, or a home office.The kitchen overlooks the main living space, keeping everyone connected, while sliding glass doors lead you out to your private outdoor oasis. Step outside to enjoy your screened-in pool and enclosure, perfect for year-round enjoyment, relaxing afternoons, or hosting family and friends while taking in the serene backyard setting. A two car garage adds convenience and storage. Located in a quiet residential area with no HOA, this property offers flexibility and freedom while still being close to shopping, dining, schools, and easy access to I75 and nearby Gulf beaches.Whether you are looking for a full-time residence, seasonal getaway, or investment opportunity, this home checks all the boxes for true Florida living.
Misc Info
Subdivision: Port Charlotte Sub 24
Annual Taxes: $4,368
Lot Size: 0 to less than 1/4
Request the MLS data sheet for this property
Home Features
Appliances: Dishwasher, Kitchen Reverse Osmosis System, Microwave, Range, Refrigerator
Flooring: Luxury Vinyl
Air Conditioning: Central Air
Exterior: Hurricane Shutters, Sliding Doors
Room Dimensions
- Map
- Walk Score
- Street View












































