- Home
- News
- Popular Property Categories
- Anna Maria Island Real Estate
- Bedroom Communities
- Bradenton Real Estate
- Charlotte Harbor Real Estate
- Downtown Sarasota Condos
- Ellenton Real Estate
- Englewood Real Estate
- Golf Community Real Estate
- Lakewood Ranch Real Estate
- Lido Key Condos
- Longboat Key Real Estate
- Luxury Real Estate
- New Homes for Sale
- Palmer Ranch Real Estate
- Palmetto Real Estate for Sale
- Parrish Real Estate
- Siesta Key Condos
- Siesta Key Homes and Land
- Venice Florida Real Estate
- West of the Trail
- Advanced Search Form
- Featured Listings
- Buyer or Seller?
- Our Company
- Featured Videos
- Login
4 Pine Valley Ln, Rotonda West, Florida
List Price: $365,000
MLS Number:
D6141995
- Status: Sold
- Sold Date: Jul 15, 2025
- Square Feet: 1590
- Bedrooms: 3
- Baths: 2
- Garage: 3
- City: ROTONDA WEST
- Zip Code: 33947
- Year Built: 2004
- HOA Fee: $380
- Payments Due: Annually
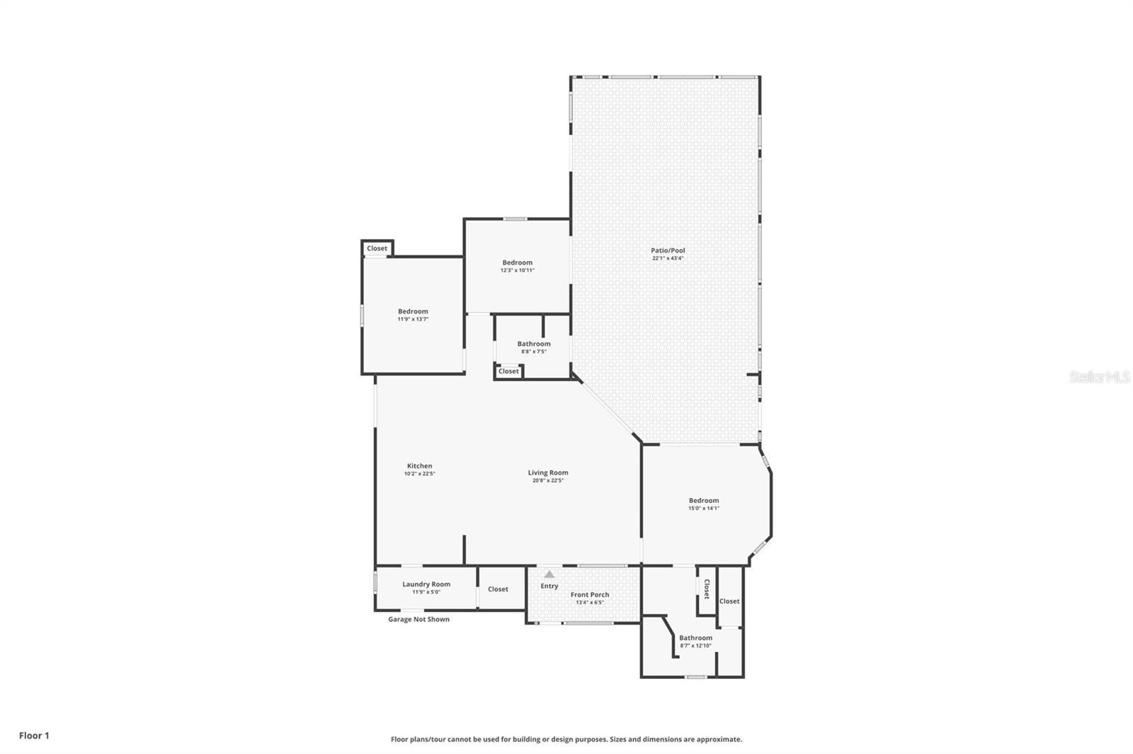
DOUBLE WATERFRONT LOT, ONE OWNER, COMPLETE HURRICANE PROTECTION & ROOF: 2020, HVAC: 2019, Irrigation from the canal-- everything you want and more! This custom built home has been meticulously maintained and awaiting you! As you approach the front door, you are warmly welcomed with a screened-in front porch and stepping inside, the open floor plan with 12 foot vaulted ceilings and neutral color scheme awaits..... The great room provides the perfect space for entertaining with a spacious living room, dining area, and kitchen that features ample cabinets & countertop space, stainless steel appliances, a built-in desk/workspace, breakfast bar, recessed lighting, and access to the large laundry room with a pocketing door. The main living areas have easy to maintain tile that flows throughout most of the home. Easily expand your living space outdoors with triple pocketing sliding glass doors that lead outside to your covered lanai with your very own POOL and most importantly the stunning canal view-- a true private backyard oasis! There's plenty of room inside with a split bedroom floor plan providing privacy for everyone and all bedrooms feature walk-in closets. The owner's suite is truly a "retreat" with private access to the lanai and pool area, a walk-in closet, and en-suite that has ample cabinet space, large vanity, a roomy shower, and a private water closet.On the other side of the home are the two guest bedrooms--one with private access to the pool area, and both bedrooms feature quality carpeting, walk-in closets, and ceiling fans. The guest bath doubles as a POOL BATH with a shower/tub combo and lots of cabinets. Let's not forget about the THREE CAR GARAGE! This home offers an abundance of storage both inside and out! Plus an added patio space off the garage where you can sit and gather with friends. There are SO many opulent features this home offers you must come see it for yourself! Rotonda West offers five golf courses, walking and bike trails, tennis courts, and located just minutes away from world-class Gulf beaches, amazing fishing, farmers markets and a wide selection of restaurants and quaint shops. You don't want to hesitate, you can make this your Florida oasis!
Misc Info
Subdivision: Rotonda Pine Valley
Annual Taxes: $3,595
HOA Fee: $380
HOA Payments Due: Annually
Water View: Canal
Lot Size: 1/2 to less than 1
Request the MLS data sheet for this property
Sold Information
CDD: $355,000
Sold Price per Sqft: $ 223.27 / sqft
Home Features
Appliances: Dishwasher, Dryer, Microwave, Range, Refrigerator, Washer, Water Filtration System
Flooring: Carpet, Tile
Air Conditioning: Central Air
Exterior: Lighting, Rain Gutters, Sliding Doors
Garage Features: Driveway, Garage Door Opener, Oversized
Pool Size: 23x11
Room Dimensions
Schools
- Elementary: Vineland Elementary
- High: Lemon Bay High
- Map
- Walk Score
- Street View



















































