- Home
- News
- Popular Property Categories
- Anna Maria Island Real Estate
- Bedroom Communities
- Bradenton Real Estate
- Charlotte Harbor Real Estate
- Downtown Sarasota Condos
- Ellenton Real Estate
- Englewood Real Estate
- Golf Community Real Estate
- Lakewood Ranch Real Estate
- Lido Key Condos
- Longboat Key Real Estate
- Luxury Real Estate
- New Homes for Sale
- Palmer Ranch Real Estate
- Palmetto Real Estate for Sale
- Parrish Real Estate
- Siesta Key Condos
- Siesta Key Homes and Land
- Venice Florida Real Estate
- West of the Trail
- Advanced Search Form
- Featured Listings
- Buyer or Seller?
- Our Company
- Featured Videos
- Login
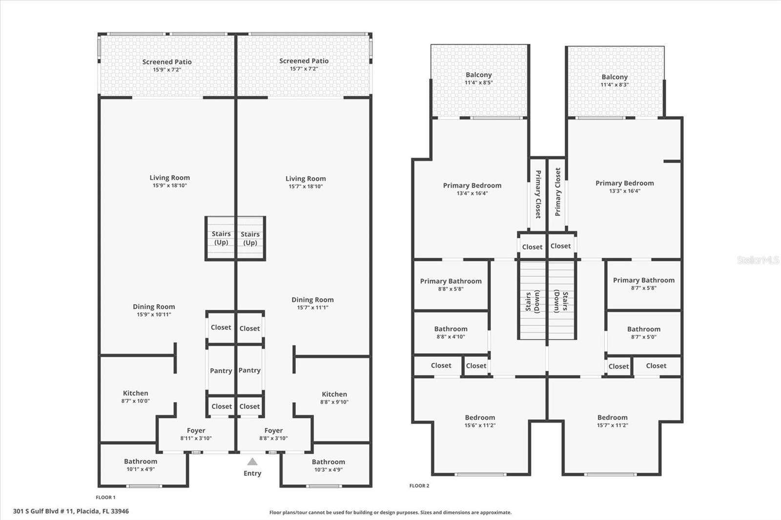
301 S Gulf Blvd #11 & 12, Placida, Florida
List Price: $2,510,000
MLS Number:
D6144566
- Status: Active
- DOM: 139 days
- Square Feet: 2694
- Bedrooms: 4
- Baths: 4
- Half Baths: 2
- City: PLACIDA
- Zip Code: 33946
- Year Built: 1982
- HOA Fee: $1,750
- Payments Due: Semi-Annually
Beachfront Investment Opportunity on Don Pedro Island - Dual Renovated Units with Flexible Rental Potential!Discover a rare opportunity to own two fully renovated beachfront units in the Colony Don Pedro community--Units 11 & 12, offered as a single property. With a total of 4 bedrooms, 4 full baths, and 2 half baths, this versatile layout features an interior connecting door, allowing the property to function as:One large family retreat, Two separate 2BR/2.5BA vacation rentals OR A personal getaway + income-producing unit.Each unit features private screened and open lanais, plus shaded lounging areas below--perfect for outdoor entertaining or relaxing after a day on the beach.Every detail has been thoughtfully updated: newer roof, modern kitchens & baths, upgraded flooring, electric, plumbing, and HVAC systems. The seller is offering a $5,000 appliance credit per unit, allowing the buyer to select their preferred appliances.Enjoy miles of pristine sandy beaches just steps away--perfect for shelling, shark tooth hunting, and peaceful strolls. With breathtaking Gulf sunsets, world-class fishing, and the laid-back lifestyle of golf carts, bicycles, and boats, this island gem offers the true essence of "Old Florida" living.Community amenities include: Heated pool, Tennis court, Dockage with access to the Intracoastal and Gulf via just two bridges. Whether you're looking for an income-generating rental, a family compound, or a flexible island escape, this property delivers unmatched potential and coastal charm. Don Pedro Island is accessible via a short car ferry ride, keeping it quiet, private, and unspoiled.Live, rent, or retreat--this is island life, your way.
Misc Info
Subdivision: Palm Island Estates Un 4
Annual Taxes: $11,687
HOA Fee: $1,750
HOA Payments Due: Semi-Annually
Water Front: Beach Front
Water View: Bay/Harbor - Partial, Beach, Gulf/Ocean - Full, Lagoon
Water Access: Bay/Harbor, Beach, Beach - Access Deeded, Canal - Saltwater, Gulf/Ocean, Gulf/Ocean to Bay, Intracoastal Waterway, Lagoon
Water Extras: Bridges - Fixed
Lot Size: 0 to less than 1/4
Request the MLS data sheet for this property
Home Features
Appliances: Electric Water Heater
Flooring: Carpet, Luxury Vinyl
Air Conditioning: Central Air
Exterior: Lighting, Sliding Doors, Tennis Court(s)
Garage Features: Golf Cart Parking, Basement
Room Dimensions
- Map
- Walk Score
- Street View





























































