- Home
- News
- Popular Property Categories
- Anna Maria Island Real Estate
- Bedroom Communities
- Bradenton Real Estate
- Charlotte Harbor Real Estate
- Downtown Sarasota Condos
- Ellenton Real Estate
- Englewood Real Estate
- Golf Community Real Estate
- Lakewood Ranch Real Estate
- Lido Key Condos
- Longboat Key Real Estate
- Luxury Real Estate
- New Homes for Sale
- Palmer Ranch Real Estate
- Palmetto Real Estate for Sale
- Parrish Real Estate
- Siesta Key Condos
- Siesta Key Homes and Land
- Venice Florida Real Estate
- West of the Trail
- Advanced Search Form
- Featured Listings
- Buyer or Seller?
- Our Company
- Featured Videos
- Login
401 Albatross Rd, Rotonda West, Florida
List Price: $785,000
MLS Number:
D6146244
- Status: Active
- DOM: 53 days
- Square Feet: 2210
- Bedrooms: 3
- Baths: 3
- Garage: 5
- City: ROTONDA WEST
- Zip Code: 33947
- Year Built: 2023
- HOA Fee: $270
- Payments Due: Annually
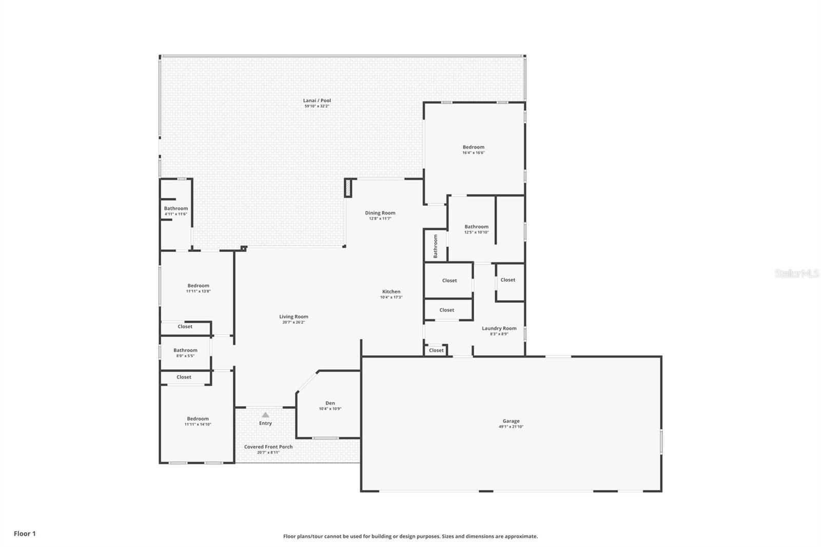
Car enthusiasts and nature lovers--don't miss this beautifully appointed 3-bedroom + office/flex room, 3-bath smart home in Rotonda Lakes. Built in 2023 by a respected local builder, this residence showcases quality craftsmanship and sought-after Florida design, blending modern luxury with everyday functionality. Step inside to soaring ceilings and elegant coffered details that create a bright, open, and inviting atmosphere. Spray-foam insulation ensures energy efficiency and year-round comfort, while integrated smart-home features add convenience throughout. A versatile office/flex room provides the perfect space for a home office, den, gyn or potential fourth bedroom. Designed for both relaxation and entertaining, the private primary suite offers sliding glass doors leading directly to the pool and spa--your own peaceful retreat. The ensuite bath includes direct access from the laundry room for added practicality. A second bedroom features its own ensuite, which also serves as a cabana bath with direct pool access--perfect for guests and seamless indoor-outdoor living. At the heart of the home, the chef's kitchen impresses with a massive island seating six, all-wood cabinetry, striking leathered granite countertops, double oven and high-end induction cooking--ideal for casual meals or elevated entertaining. Situated on an oversized corner lot with tranquil lake views, the outdoor space is a true highlight. Enjoy abundant wildlife and serene surroundings, along with a dedicated fire pit, a beautifully paved seating area, and a connecting sidewalk--perfect for evenings under the stars. A rare 5-car attached garage makes this home stand out, complete with an attic elevator lift and partially floored attic space for convenient, accessible storage--ideal for car enthusiasts or hobbyists. Additional features include hurricane-impact windows and sliders, along with premium upgrades throughout. Conveniently located near the beautiful beaches of Manasota Key and Boca Grande, as well as shopping, dining, boating, golf courses, and world-class fishing, this nearly new home offers the very best of Florida living. Whether you're relaxing poolside, enjoying lakeside sunsets, or showcasing your automotive collection, this exceptional property is ready to be your Florida retreat or full-time residence. Schedule your private showing today!
Misc Info
Subdivision: Rotonda Lakes
Annual Taxes: $8,707
HOA Fee: $270
HOA Payments Due: Annually
Water View: Lake
Lot Size: 1/4 to less than 1/2
Request the MLS data sheet for this property
Home Features
Appliances: Built-In Oven, Cooktop, Dishwasher, Disposal, Dryer, Electric Water Heater, Exhaust Fan, Refrigerator, Washer
Flooring: Tile
Air Conditioning: Central Air
Exterior: Fire Pit, Lighting, Private Mailbox, Rain Gutters, Sidewalk, Sliding Doors
Garage Features: Circular Driveway, Driveway, Garage Door Opener, Oversized
Pool Size: 12x25
Room Dimensions
Schools
- Elementary: Myakka River Elementary
- High: Lemon Bay High
- Map
- Walk Score
- Street View






















































































