- Home
- News
- Popular Property Categories
- Anna Maria Island Real Estate
- Bedroom Communities
- Bradenton Real Estate
- Charlotte Harbor Real Estate
- Downtown Sarasota Condos
- Ellenton Real Estate
- Englewood Real Estate
- Golf Community Real Estate
- Lakewood Ranch Real Estate
- Lido Key Condos
- Longboat Key Real Estate
- Luxury Real Estate
- New Homes for Sale
- Palmer Ranch Real Estate
- Palmetto Real Estate for Sale
- Parrish Real Estate
- Siesta Key Condos
- Siesta Key Homes and Land
- Venice Florida Real Estate
- West of the Trail
- Advanced Search Form
- Featured Listings
- Buyer or Seller?
- Our Company
- Featured Videos
- Login
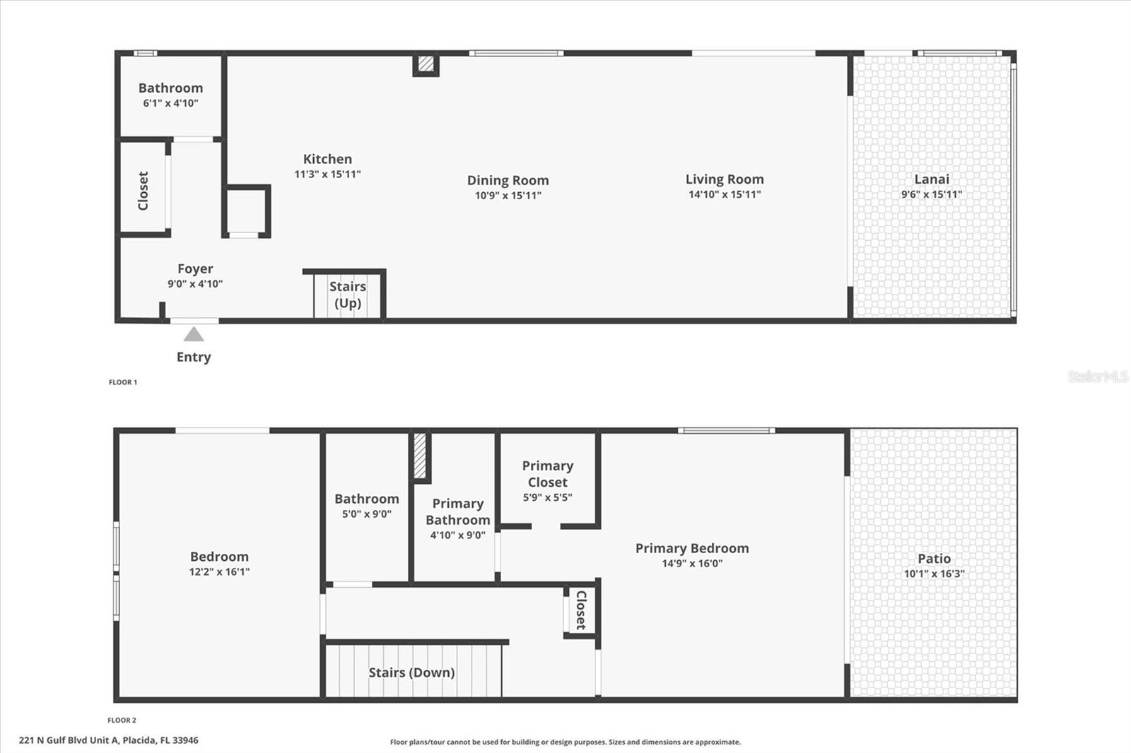
221 N Gulf Blvd #a, Placida, Florida
List Price: $1,295,000
MLS Number:
D6146245
- Status: Active
- DOM: 84 days
- Square Feet: 1486
- Bedrooms: 2
- Baths: 2
- Half Baths: 1
- City: PLACIDA
- Zip Code: 33946
- Year Built: 1986
DIRECT BEACHFRONT TOWNHOME on "Palm" Island!If you're dreaming of an island getaway with your toes in the sand instead of the snow, this beautifully renovated end-unit townhome delivers the ultimate coastal escape. Located on magical Palm Island, along the sparkling Gulf of America, you'll enjoy front-row seats to breathtaking sunsets and miles of pristine, shell-strewn white-sand beaches.This 2-bedroom, 2.5-bath residence has been thoughtfully updated inside and out and is truly move-in ready. Features include hurricane-rated windows and sliders, a 2025 standing-seam metal roof, Hardy Board siding, newer A/C, plumbing, electrical, and appliances, plus an open, inviting floor plan filled with natural light. Step outside to an expansive and private beachfront deck--perfect for entertaining, dining, or simply soaking in the views. The primary suite also offers its own private deck, ideal for savoring nightly sunsets.Whether you're seeking a personal island retreat or a high-performing investment property, this townhome checks all the boxes and has excellent rental potential.Palm Island is a bridgeless barrier island accessible by a short car ferry ride, preserving its laid-back Old Florida charm. Once here, enjoy golf cart rides, kayaking, boating, fishing, biking, and long, peaceful beach walks--far from the hustle and bustle of everyday life.
Misc Info
Subdivision: Palm Island Estates Un 1
Annual Taxes: $7,818
Water Front: Beach Front
Water View: Beach, Gulf/Ocean - Full
Water Access: Beach, Beach - Access Deeded, Gulf/Ocean
Lot Size: 0 to less than 1/4
Request the MLS data sheet for this property
Home Features
Appliances: Dishwasher, Dryer, Electric Water Heater, Microwave, Range, Refrigerator, Washer
Flooring: Ceramic Tile, Luxury Vinyl
Air Conditioning: Central Air
Exterior: Lighting, Sliding Doors
Room Dimensions
- Map
- Walk Score
- Street View


















































