- Home
- News
- Popular Property Categories
- Anna Maria Island Real Estate
- Bedroom Communities
- Bradenton Real Estate
- Charlotte Harbor Real Estate
- Downtown Sarasota Condos
- Ellenton Real Estate
- Englewood Real Estate
- Golf Community Real Estate
- Lakewood Ranch Real Estate
- Lido Key Condos
- Longboat Key Real Estate
- Luxury Real Estate
- New Homes for Sale
- Palmer Ranch Real Estate
- Palmetto Real Estate for Sale
- Parrish Real Estate
- Siesta Key Condos
- Siesta Key Homes and Land
- Venice Florida Real Estate
- West of the Trail
- Advanced Search Form
- Featured Listings
- Buyer or Seller?
- Our Company
- Featured Videos
- Login
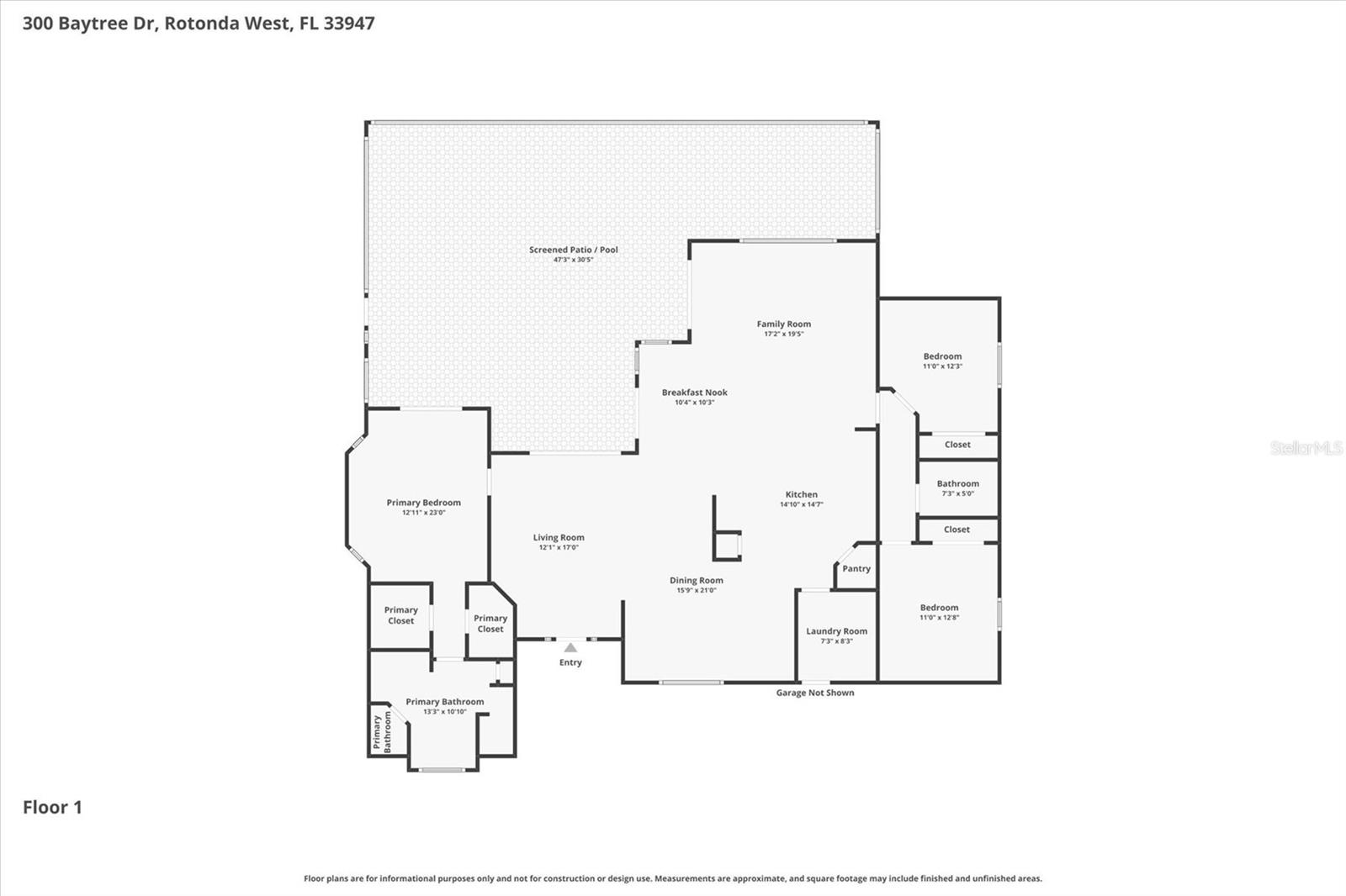
300 Baytree Dr, Rotonda West, Florida
List Price: $499,900
MLS Number:
D6146641
- Status: Active
- DOM: 24 days
- Square Feet: 2087
- Bedrooms: 3
- Baths: 2
- Garage: 2
- City: ROTONDA WEST
- Zip Code: 33947
- Year Built: 2005
- HOA Fee: $90
- Payments Due: Annually
Welcome to 300 Baytree Drive in Englewood, Florida--a spacious 3-bedroom, 2-bathroom residence set on an oversized double lot in an X flood zone, offering both room to spread out and added peace of mind.From the moment you step inside, you're greeted by soaring ceilings, expansive windows, and an abundance of natural light that enhance the home's open and airy feel. The thoughtfully designed layout creates a seamless flow between the main living areas, making the home both comfortable and functional.The kitchen is centrally positioned and features ample cabinetry, generous counter space, and a breakfast bar, opening to the living area--ideal for everyday use and entertaining alike. A dedicated dining space is framed by large windows, providing a bright and welcoming setting.The primary suite offers a spacious retreat with direct access to the outdoor living area, along with an en-suite bathroom and well-proportioned layout. Two additional bedrooms and a full guest bathroom provide flexibility for a variety of needs, whether for guests, workspace, or additional living space.Step outside to a screened lanai with a private pool, where you can relax and enjoy tranquil water views and natural surroundings. The oversized double lot enhances privacy and provides additional outdoor space with potential for further customization.Conveniently located near shopping, dining, golf courses, boating, fishing, parks, and the Gulf Coast beaches, this home offers access to a wide range of local amenities while maintaining a peaceful residential setting.A rare combination of space, location, and outdoor living, this property presents an opportunity to enjoy the Florida lifestyle in a well-positioned Englewood location.
Misc Info
Subdivision: Rotonda Lakes
Annual Taxes: $6,971
HOA Fee: $90
HOA Payments Due: Annually
Water Front: Canal - Brackish
Water View: Canal
Water Access: Canal - Brackish, Canal - Freshwater
Lot Size: 1/4 to less than 1/2
Request the MLS data sheet for this property
Home Features
Appliances: Dishwasher, Microwave, Refrigerator
Flooring: Ceramic Tile
Air Conditioning: Central Air
Exterior: Lighting
Room Dimensions
- Map
- Walk Score
- Street View






















































