- Home
- News
- Popular Property Categories
- Anna Maria Island Real Estate
- Bedroom Communities
- Bradenton Real Estate
- Charlotte Harbor Real Estate
- Downtown Sarasota Condos
- Ellenton Real Estate
- Englewood Real Estate
- Golf Community Real Estate
- Lakewood Ranch Real Estate
- Lido Key Condos
- Longboat Key Real Estate
- Luxury Real Estate
- New Homes for Sale
- Palmer Ranch Real Estate
- Palmetto Real Estate for Sale
- Parrish Real Estate
- Siesta Key Condos
- Siesta Key Homes and Land
- Venice Florida Real Estate
- West of the Trail
- Advanced Search Form
- Featured Listings
- Buyer or Seller?
- Our Company
- Featured Videos
- Login
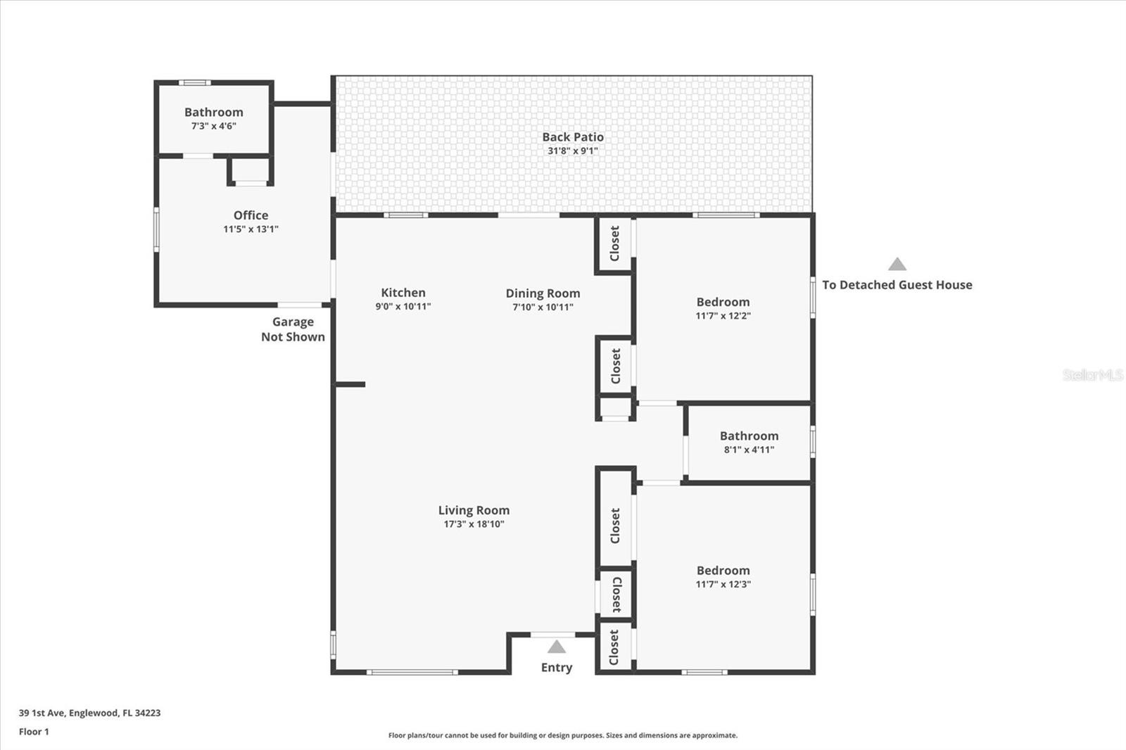
39 1st Ave, Englewood, Florida
List Price: $497,500
MLS Number:
D6146869
- Status: Active
- DOM: 17 days
- Square Feet: 1808
- Bedrooms: 3
- Baths: 3
- Garage: 1
- City: ENGLEWOOD
- Zip Code: 34223
- Year Built: 1950
Two Homes in Old Englewood: A Florida Paradise Awaits! Discover classic Florida charm at its finest with this well-loved property, ideally located just minutes from the vibrant Dearborn Street and beautiful Manasota Key! Pride of ownership shines through in the main house, which features 2 bedrooms and 2 baths, fully updated with tile flooring throughout. The spacious kitchen and abundant closet space make this home truly inviting. A versatile flex room adds more functionality, perfect as an office or guest room. Step outside to enjoy the beautiful garden, where blooming plumeria fill the air with their delightful fragrance--an enchanting reminder of the paradise you call home! Nestled at the back of the property is a charming cottage with 2 bedrooms and 1 bath. As you enter, you'll be captivated by the stunning pine ceilings that evoke a cozy beach vibe that carries through the cottage! The kitchen is open concept with tasteful solid wood cabinetry, tiled counters and newer appliances. The soothing wall color and tile flooring provide a fresh and inviting atmosphere. After a day of beachcombing for seashells, unwind in this delightful retreat. The cottage also features a privacy fence, a carport, and a covered outdoor area currently adorned with lounge furniture--perfect for savoring your morning coffee. Both homes are offered turn-key furnished, making it easy to move right in. The HVAC units and roofs for both properties were updated in recent years. This unique property is perfect for a multigenerational family or as an investment opportunity with excellent vacation rental potential. Being sold "AS IS," this gem won't last long! Call today for your private showing and embrace the incredible lifestyle of this property!
Misc Info
Subdivision: Tyler & Darling Add 01
Annual Taxes: $5,534
Lot Size: 0 to less than 1/4
Request the MLS data sheet for this property
Home Features
Appliances: Dishwasher, Dryer, Microwave, Range, Refrigerator, Washer
Flooring: Ceramic Tile
Air Conditioning: Central Air
Exterior: Courtyard, Garden, Private Entrance, Sliding Doors
Room Dimensions
Schools
- Elementary: Englewood Elementary
- High: Lemon Bay High
- Map
- Walk Score
- Street View






















































