- Home
- News
- Popular Property Categories
- Anna Maria Island Real Estate
- Bedroom Communities
- Bradenton Real Estate
- Charlotte Harbor Real Estate
- Downtown Sarasota Condos
- Ellenton Real Estate
- Englewood Real Estate
- Golf Community Real Estate
- Lakewood Ranch Real Estate
- Lido Key Condos
- Longboat Key Real Estate
- Luxury Real Estate
- New Homes for Sale
- Palmer Ranch Real Estate
- Palmetto Real Estate for Sale
- Parrish Real Estate
- Siesta Key Condos
- Siesta Key Homes and Land
- Venice Florida Real Estate
- West of the Trail
- Advanced Search Form
- Featured Listings
- Buyer or Seller?
- Our Company
- Featured Videos
- Login
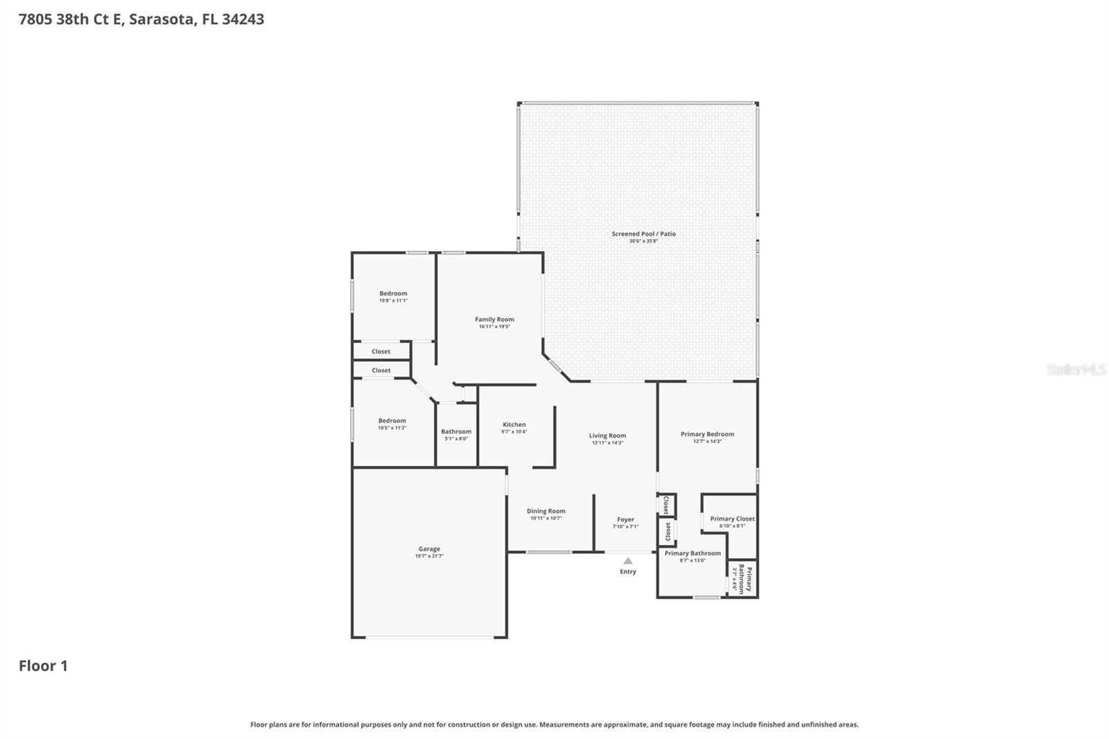
7805 38th Ct E, Sarasota, Florida
List Price: $425,000
MLS Number:
GC539715
- Status: Active
- DOM: 8 days
- Square Feet: 1408
- Bedrooms: 3
- Baths: 2
- Garage: 2
- City: SARASOTA
- Zip Code: 34243
- Year Built: 1989
- HOA Fee: $300
- Payments Due: Annually
Welcome to this beautifully updated 3-bedroom, 2-bath home in a prime Sarasota location! Nestled on a quiet cul-de-sac, this property offers the perfect blend of comfort & Florida living. Step inside to find a well-maintained interior featuring stainless steel appliances and newer flooring. Major updates provide peace of mind, including a new roof (2025) and AC system (2020). Out back, your private oasis awaits--a large heated in-ground pool with a screened enclosure, & fire pit perfect for year-round enjoyment, relaxing weekends, or hosting guests. Location is everything, just a quick stroll to nearby schools, minutes from University Town Center (UTC) Mall for premier shopping and dining, and convenient to Sarasota-Bradenton International Airport for easy travel. Enjoy the benefits of a deed-restricted community with no CDD fees and a low HOA offering affordability without sacrificing neighborhood standards. Whether you're looking for a primary residence, seasonal getaway, or investment opportunity, this home checks all the boxes. Don't miss your chance to own a slice of Sarasota living!
Misc Info
Subdivision: Copperfield
Annual Taxes: $2,261
HOA Fee: $300
HOA Payments Due: Annually
Lot Size: 0 to less than 1/4
Request the MLS data sheet for this property
Home Features
Appliances: Dishwasher, Microwave, Range, Refrigerator
Flooring: Carpet, Tile, Vinyl
Air Conditioning: Central Air
Exterior: Private Yard
Garage Features: Driveway
Room Dimensions
Schools
- Elementary: Kinnan Elementary
- High: Braden River High
- Map
- Walk Score
- Street View















































