- Home
- News
- Popular Property Categories
- Anna Maria Island Real Estate
- Bedroom Communities
- Bradenton Real Estate
- Charlotte Harbor Real Estate
- Downtown Sarasota Condos
- Ellenton Real Estate
- Englewood Real Estate
- Golf Community Real Estate
- Lakewood Ranch Real Estate
- Lido Key Condos
- Longboat Key Real Estate
- Luxury Real Estate
- New Homes for Sale
- Palmer Ranch Real Estate
- Palmetto Real Estate for Sale
- Parrish Real Estate
- Siesta Key Condos
- Siesta Key Homes and Land
- Venice Florida Real Estate
- West of the Trail
- Advanced Search Form
- Featured Listings
- Buyer or Seller?
- Our Company
- Featured Videos
- Login
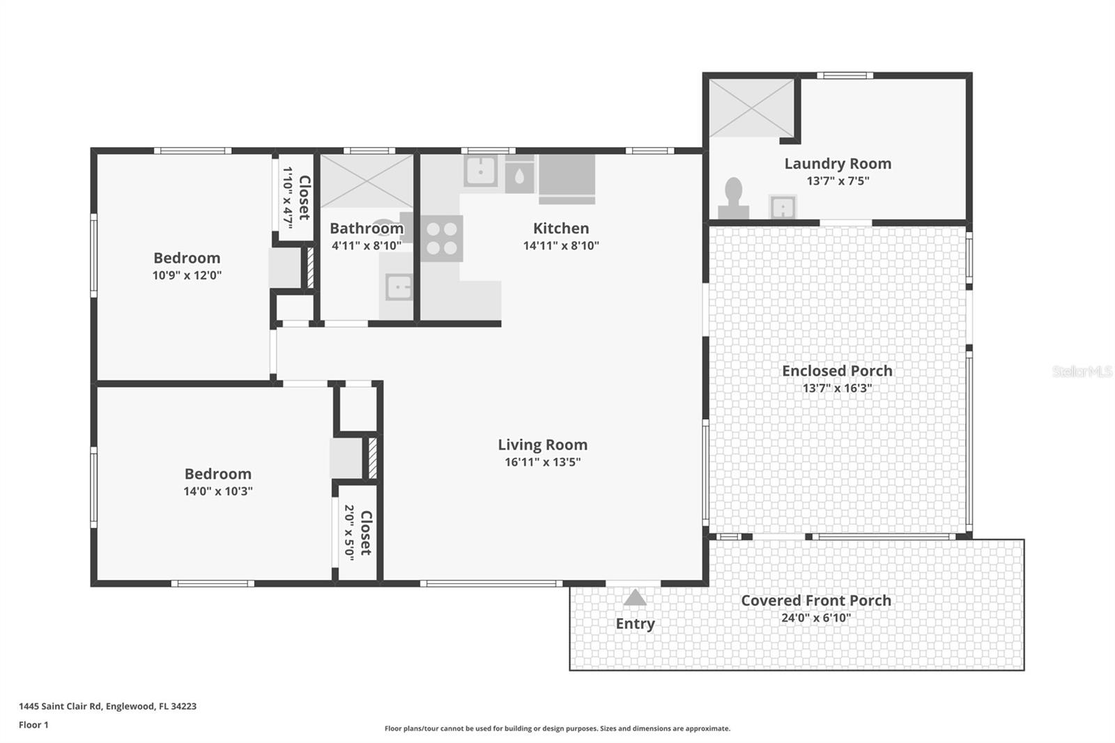
1445 Saint Clair Rd, Englewood, Florida
List Price: $248,900
MLS Number:
N6142099
- Status: Sold
- Sold Date: Feb 06, 2026
- Square Feet: 941
- Bedrooms: 2
- Baths: 2
- City: ENGLEWOOD
- Zip Code: 34223
- Year Built: 1958
Located just 2.2 miles from Manasota Beach, this fully-updated 2-bedroom, 2-bath home is set in the boating-friendly community of Overbrook Gardens, where an optional HOA provides access to a private community boat ramp with no fixed bridges to the Intracoastal Waterway and the Gulf.Major improvements are already complete, including impact windows, a new roof in 2023, A/C replacement in 2021, and 200-amp electrical service for long-term reliability. Inside, luxury vinyl plank flooring pairs with marble countertops and a full suite of new appliances, including a side-by-side refrigerator, range, dishwasher, and built-in microwave.The kitchen features shaker-style cabinetry with updated hardware, a subway tile backsplash, and clean, timeless finishes. Custom 5-inch baseboards and updated door hardware continue throughout the home. Both bedrooms include built-in dressers with marble tops, adding functional storage with a custom feel. The bathroom is finished with a tiled shower featuring hexagonal mosaic accents.The layout is practical and comfortable, highlighted by a large screened lanai that extends the living space outdoors. A separate utility/ laundry room includes an 2nd bathroom, ideal for beach days or visiting guests. The backyard offers plenty of space to relax, entertain, or personalize.The home is not located in a flood zone, eliminating the need for flood insurance.Overbrook Gardens is known for its relaxed, golf cart and bike-friendly lifestyle, with optional low-cost HOA access to the community boat ramp, offering the benefits of waterfront access without the expense of a waterfront home.Conveniently located near shopping and dining along Historic Dearborn Street, with easy access to Wellen Park and downtown Venice, this home stands out for its location, updates, and boating lifestyle.
Misc Info
Subdivision: Overbrook Gardens
Annual Taxes: $2,725
Lot Size: 0 to less than 1/4
Request the MLS data sheet for this property
Sold Information
CDD: $225,000
Sold Price per Sqft: $ 239.11 / sqft
Home Features
Appliances: Dishwasher, Electric Water Heater, Microwave, Range, Refrigerator
Flooring: Luxury Vinyl, Tile
Air Conditioning: Central Air
Exterior: Sidewalk
Room Dimensions
Schools
- Elementary: Englewood Elementary
- Map
- Walk Score
- Street View














































