- Home
- News
- Popular Property Categories
- Anna Maria Island Real Estate
- Bedroom Communities
- Bradenton Real Estate
- Charlotte Harbor Real Estate
- Downtown Sarasota Condos
- Ellenton Real Estate
- Englewood Real Estate
- Golf Community Real Estate
- Lakewood Ranch Real Estate
- Lido Key Condos
- Longboat Key Real Estate
- Luxury Real Estate
- New Homes for Sale
- Palmer Ranch Real Estate
- Palmetto Real Estate for Sale
- Parrish Real Estate
- Siesta Key Condos
- Siesta Key Homes and Land
- Venice Florida Real Estate
- West of the Trail
- Advanced Search Form
- Featured Listings
- Buyer or Seller?
- Our Company
- Featured Videos
- Login
2506 18th Ave W, Bradenton, Florida
List Price: $549,900
MLS Number:
O6347717
- Status: Active
- DOM: 88 days
- Square Feet: 1623
- Bedrooms: 3
- Baths: 2
- City: BRADENTON
- Zip Code: 34205
- Year Built: 1951
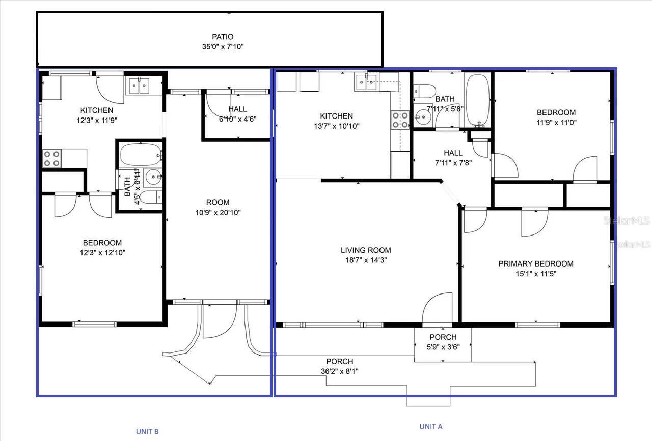
Turnkey Property fully equipped and furnished boasts two units, the main house has 2 Bedrooms and 1 Bath, and an In-Law Suite featuring 1 Bedroom and 1 Bath with a separate driveway and entrance which provides an excellent setup for a multi-generational family or as an investment. This updated home features a new kitchen with a quartz countertop, brand new stainless steel appliances, vinyl flooring throughout the whole house, new plumbing, new electrical panel and wires, Impact windows, new water heater, replaced washer and dryer, also front doors were replaced as well, fenced backyard, security cameras around the property for unparalleled comfort and security. Enjoy a private backyard oasis complete with a jacuzzi and a spacious gazebo. The backyard has space for your boat or RV. Sitting on an impressive almost 15,000 SqFt. Simply bring your belongings and you're ready to enjoy the coming up summer. Conveniently located just 8 miles to Anna Maria Island and 2 miles from Downtown Bradenton, providing various entertainment options including waterfront bars, restaurants, and Saturday markets. This property is great as a permanent, temporary, or rental residence. Simply an investor's dream without deed restrictions, HOA, and rests outside the flood zone.
Misc Info
Subdivision: Seminole Park
Annual Taxes: $4,409
Lot Size: 1/4 to less than 1/2
Request the MLS data sheet for this property
Home Features
Appliances: Dishwasher, Dryer, Ice Maker, Microwave, Range, Refrigerator, Tankless Water Heater, Washer
Flooring: Luxury Vinyl
Air Conditioning: Central Air
Exterior: Sauna
Room Dimensions
- Map
- Walk Score
- Street View






































