- Home
- News
- Popular Property Categories
- Anna Maria Island Real Estate
- Bedroom Communities
- Bradenton Real Estate
- Charlotte Harbor Real Estate
- Downtown Sarasota Condos
- Ellenton Real Estate
- Englewood Real Estate
- Golf Community Real Estate
- Lakewood Ranch Real Estate
- Lido Key Condos
- Longboat Key Real Estate
- Luxury Real Estate
- New Homes for Sale
- Palmer Ranch Real Estate
- Palmetto Real Estate for Sale
- Parrish Real Estate
- Siesta Key Condos
- Siesta Key Homes and Land
- Venice Florida Real Estate
- West of the Trail
- Advanced Search Form
- Featured Listings
- Buyer or Seller?
- Our Company
- Featured Videos
- Login
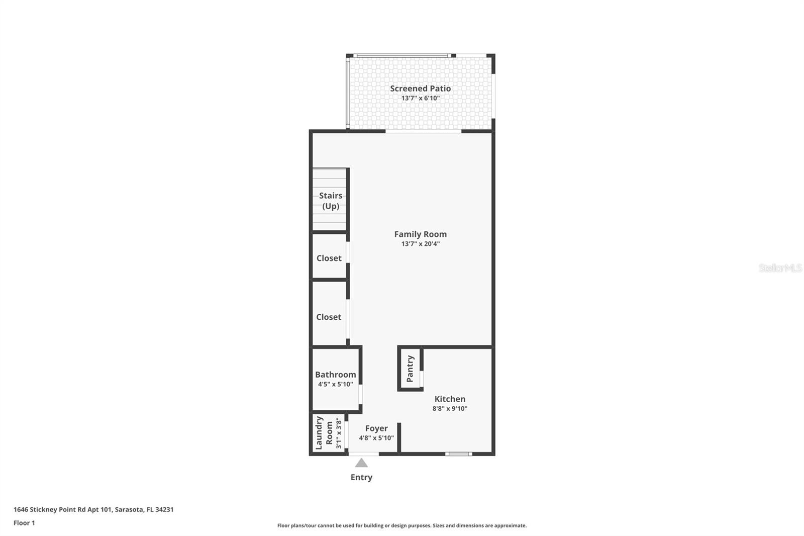
1646 Stickney Point Rd #1646-101, Sarasota, Florida
List Price: $414,000
MLS Number:
O6376065
- Status: Active
- DOM: 78 days
- Square Feet: 1036
- Bedrooms: 2
- Baths: 2
- City: SARASOTA
- Zip Code: 34231
- Year Built: 1975
- HOA Fee: $993
- Payments Due: Monthly
LOCATION, LOCATION, LOCATION! Just a 10-MINUTE WALK to world-famous Siesta Key Beach and less to popular restaurants, shops, and bars, this beautifully updated TOWNHOUSE (2 floors) in Castel Del Mare offers the perfect blend of convenience and coastal living. Enjoy a community pool set directly on the Intracoastal Waterway for a true resort-style experience.Bathed in natural light and surrounded by lush greenery, this turnkey-furnished two-bedroom, one-and-a-half-bath residence offers 1,036 square feet under air (1,232 total). A rare highlight is its two private outdoor spaces--a screened ground-level lanai and an open second-floor balcony--found in only a handful of homes in the community. Southern exposure enhances privacy while showcasing tranquil greenbelt views from both levels.The main level features tile flooring throughout and a seamless flow from the updated kitchen--complete with stainless steel appliances (2022)--into the living and dining areas, opening to the peaceful lanai. A remodeled half bath and a convenient interior utility closet with a stacked washer and dryer add functionality rarely found in this complex. Additional storage is thoughtfully integrated, including a spacious under-stair area housing the HVAC system (2020) and water heater (2017).Upstairs, a split-bedroom layout provides comfort and privacy. The primary suite, tucked at the rear, opens to its own private balcony--perfect for enjoying quiet mornings or evening breezes. Both bedrooms include walk-in closets, complemented by a hall linen closet and a locked owner's closet. The primary bath features a dual-sink vanity and updated cabinetry (2022).Assigned parking is located directly in front of the home, with ample guest parking nearby.Residents of Castel Del Mare enjoy an array of amenities, including two renovated pools, tennis and pickleball courts, shuffleboard, a gazebo, fishing pier, grilling areas, and bike and kayak storage. Recent community enhancements include updated landscaping, irrigation, and paver improvements.The HOA fee covers exterior and roof maintenance, landscaping, amenities, on-site management, strong reserves, basic cable, water, sewer, trash, recycling, and weekly pest control--offering both value and peace of mind.Whether as a primary residence, seasonal getaway, or investment opportunity, this home offers privacy, comfort, and the ultimate Siesta Key lifestyle. With flexible rental guidelines, you can offset ownership costs by renting part of the year - and take advantage of peak season high-rate rental opportunities.
Misc Info
Subdivision: Castel Del Mare
Annual Taxes: $3,529
HOA Fee: $993
HOA Payments Due: Monthly
Water View: Intracoastal Waterway
Water Access: Canal - Saltwater, Intracoastal Waterway
Water Extras: Seawall - Concrete, Skiing Allowed
Lot Size: Non-Applicable
Request the MLS data sheet for this property
Home Features
Appliances: Dishwasher, Disposal, Dryer, Electric Water Heater, Exhaust Fan, Ice Maker, Microwave, Range, Range Hood, Refrigerator, Washer
Flooring: Luxury Vinyl, Wood
Air Conditioning: Central Air
Exterior: Balcony, Lighting, Private Mailbox, Sidewalk, Sliding Doors, Sprinkler Metered, Storage, Tennis Court(s)
Pool Size: 45x36
Room Dimensions
Schools
- Elementary: Gulf Gate Elementary
- High: Riverview High
- Map
- Walk Score
- Street View





































































