- Home
- News
- Popular Property Categories
- Anna Maria Island Real Estate
- Bedroom Communities
- Bradenton Real Estate
- Charlotte Harbor Real Estate
- Downtown Sarasota Condos
- Ellenton Real Estate
- Englewood Real Estate
- Golf Community Real Estate
- Lakewood Ranch Real Estate
- Lido Key Condos
- Longboat Key Real Estate
- Luxury Real Estate
- New Homes for Sale
- Palmer Ranch Real Estate
- Palmetto Real Estate for Sale
- Parrish Real Estate
- Siesta Key Condos
- Siesta Key Homes and Land
- Venice Florida Real Estate
- West of the Trail
- Advanced Search Form
- Featured Listings
- Buyer or Seller?
- Our Company
- Featured Videos
- Login
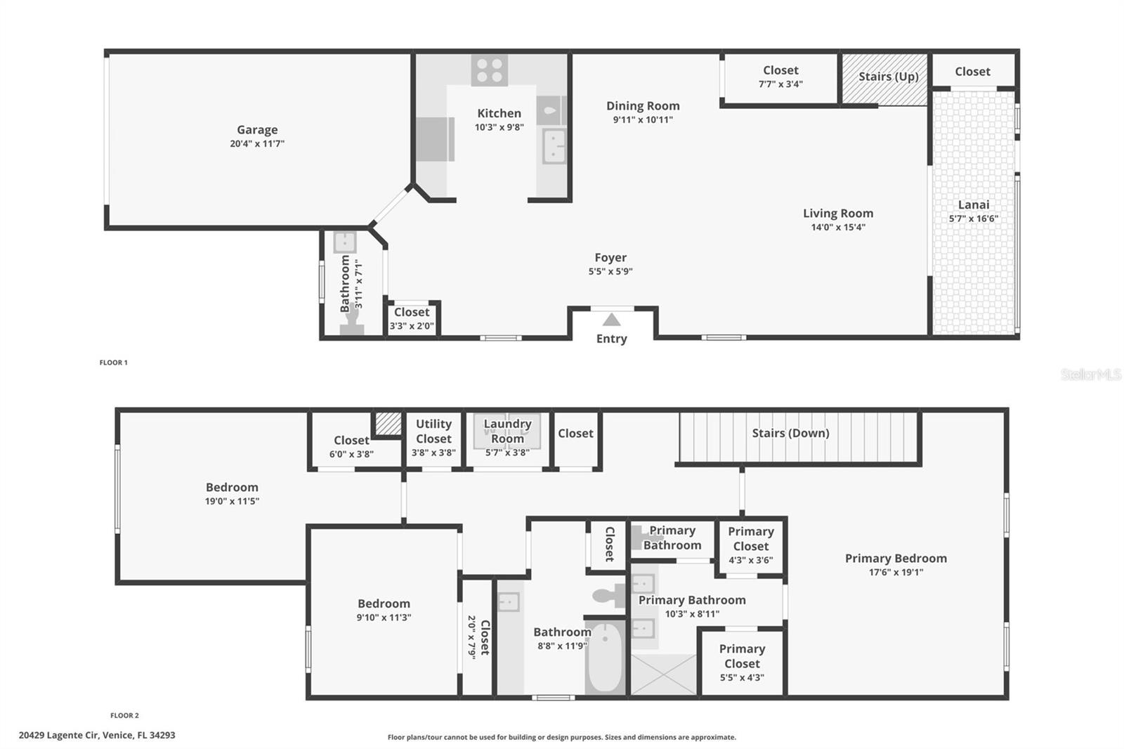
20429 Lagente Cir, Venice, Florida
List Price: $315,000
MLS Number:
TB8433453
- Status: Active
- DOM: 222 days
- Square Feet: 1949
- Bedrooms: 3
- Baths: 2
- Half Baths: 1
- Garage: 1
- City: VENICE
- Zip Code: 34293
- Year Built: 2021
- HOA Fee: $831
- Payments Due: Quarterly
Seller is offering $5K towards closing costs****Turn-key furnished! NOT in a flood zone! This charming corner townhome is designed for both comfort and style, starting with a welcoming paver walkway that leads to your private garage and front porch. Step inside and you're greeted by an open-concept living area that feels bright, inviting, and perfect for both relaxing and entertaining. High-end window treatments (a significant seller investment) convey elegance and offer privacy. This is a lightly used and impeccably maintained end-unit Townhome. The living and dining spaces flow easily to a covered, screened lanai with pond views -- complete with an added shade to block the afternoon sun, making it the perfect spot for morning coffee or an evening glass of wine.The kitchen features granite countertops, stainless steel appliances, and a breakfast bar that keeps you connected while cooking or hosting. Upstairs, plush carpet leads you to the primary suite with two walk-in closets, dual sinks, and a large walk-in shower. Two additional bedrooms offer flexibility for guests, a home office, or hobbies, and share a full bath. You'll also love the convenience of the upstairs laundry closet, generous storage throughout the home, and peace of mind with a Ring camera already in place.For added value and security, all windows and doors are protected by hurricane shutters just installed in September 2025.Living in Gran Paradiso means more than just a beautiful home -- it's a lifestyle. This 24-hour guard-gated community offers an incredible array of resort-style amenities, from the sparkling pool and fitness center with classes, to pickleball, tennis, and basketball courts. The clubhouse has something for everyone, including a library, craft room, billiards, ping pong, card rooms, plus steam and sauna facilities for total relaxation.With its ideal location in Venice, this home delivers both tranquility and convenience. Enjoy the turn-key lifestyle and warm, welcoming community of this exceptional residence. Don't miss the chance to call this exceptional townhome your own -- the Gran Paradiso lifestyle is waiting for you!
Misc Info
Subdivision: Gran Paradiso Twnhms 1b
Annual Taxes: $6,728
Annual CDD Fee: $1,630
HOA Fee: $831
HOA Payments Due: Quarterly
Water View: Pond
Lot Size: 0 to less than 1/4
Request the MLS data sheet for this property
Home Features
Appliances: Dishwasher, Dryer, Microwave, Range, Refrigerator, Washer
Flooring: Carpet, Tile
Air Conditioning: Central Air
Exterior: Hurricane Shutters, Rain Gutters, Sidewalk, Sliding Doors
Garage Features: Covered, Driveway, Garage Door Opener
Room Dimensions
Schools
- Elementary: Taylor Ranch Elementary
- High: Venice Senior High
- Map
- Walk Score
- Street View





































