- Home
- News
- Popular Property Categories
- Anna Maria Island Real Estate
- Bedroom Communities
- Bradenton Real Estate
- Charlotte Harbor Real Estate
- Downtown Sarasota Condos
- Ellenton Real Estate
- Englewood Real Estate
- Golf Community Real Estate
- Lakewood Ranch Real Estate
- Lido Key Condos
- Longboat Key Real Estate
- Luxury Real Estate
- New Homes for Sale
- Palmer Ranch Real Estate
- Palmetto Real Estate for Sale
- Parrish Real Estate
- Siesta Key Condos
- Siesta Key Homes and Land
- Venice Florida Real Estate
- West of the Trail
- Advanced Search Form
- Featured Listings
- Buyer or Seller?
- Our Company
- Featured Videos
- Login
103 17th St E, Bradenton, Florida
List Price: $550,000
MLS Number:
TB8441111
- Status: Active
- DOM: 16 days
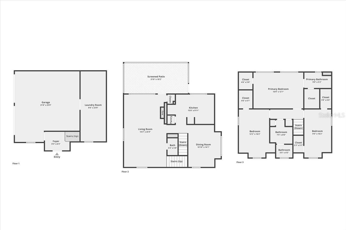
- Square Feet: 1694
- Bedrooms: 3
- Baths: 2
- Half Baths: 2
- Garage: 2
- City: BRADENTON
- Zip Code: 34208
- Year Built: 2000
- HOA Fee: $360
- Payments Due: Annually
This unique elevated, waterview property backs up to a tranquil 1.6 acre waterfront private park with a boat ramp- (Partial ownership TRANSFERS to the buyer of this property). Enjoy fishing, swimming, or taking your kayak or jet skis out on the water. On the first floor you will find an oversized garage with storage space with an elevated laundry room, half bath and a lovely loft area. You will find the main living area on the second floor with the kitchen, dining room, living room with fireplace, and a nicepowder room. A generously sized screened porch and an open deck share the awesome waterview. On the top floor you will find the primary bedroom, primary bath, the two guest bedrooms that share a hall bath. This property has a fenced in yard perfect to keep your fur babies in and allowing easy access to your waterfront park. Tons of parking for all of your toys and boats. The Riverwalk extension is walking distance from this home and adds to your active Florida lifestyle. Walk or bike ride to your favorite restaurants along the Bradenton Riverwalk. Perfect for kayakers, SUP, and jet skis too. No deed restrictions here! East of Historic River District & popular Downtown Riverwalk. Short bicycle or car ride to the farmers market, restaurants, park, library, public art, shopping, The South Florida Museum, Manatee Historical Village Park, Art Center Manatee, Local Award Winning Breweries, Manatee Performing Arts Center, or Lecom Baseball Park. Short distance away from the best GULF beaches, Sarasota Airport and attractions, St Pete 25-minutes away, Tampa Airport 45 minutes, Great centrally located home! Buyer to verify measurements.
Misc Info
Subdivision: Riverside Heights
Annual Taxes: $7,973
HOA Fee: $360
HOA Payments Due: Annually
Water View: River
Water Access: River
Water Extras: Fishing Pier
Lot Size: 1/4 to less than 1/2
Request the MLS data sheet for this property
Home Features
Appliances: Dishwasher, Disposal, Dryer, Electric Water Heater, Exhaust Fan, Range, Refrigerator, Washer
Flooring: Ceramic Tile, Laminate, Wood
Fireplace: Electric
Air Conditioning: Central Air
Exterior: Balcony
Garage Features: Boat, Driveway, Garage Faces Rear, Garage Faces Side
Room Dimensions
Schools
- Elementary: Manatee Elementary School
- High: Manatee High
- Map
- Walk Score
- Street View















































