- Home
- News
- Popular Property Categories
- Anna Maria Island Real Estate
- Bedroom Communities
- Bradenton Real Estate
- Charlotte Harbor Real Estate
- Downtown Sarasota Condos
- Ellenton Real Estate
- Englewood Real Estate
- Golf Community Real Estate
- Lakewood Ranch Real Estate
- Lido Key Condos
- Longboat Key Real Estate
- Luxury Real Estate
- New Homes for Sale
- Palmer Ranch Real Estate
- Palmetto Real Estate for Sale
- Parrish Real Estate
- Siesta Key Condos
- Siesta Key Homes and Land
- Venice Florida Real Estate
- West of the Trail
- Advanced Search Form
- Featured Listings
- Buyer or Seller?
- Our Company
- Featured Videos
- Login
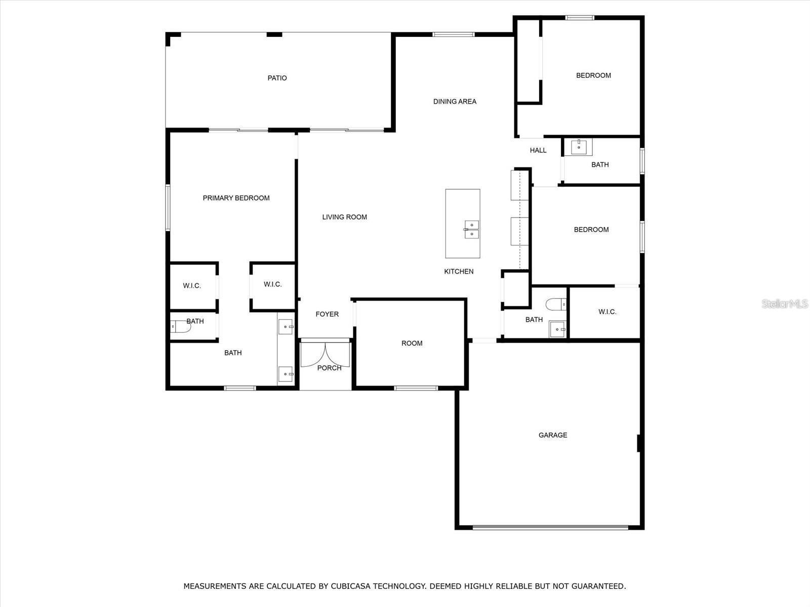
3296 Glencove St, Punta Gorda, Florida
List Price: $339,000
MLS Number:
TB8441234
- Status: Active
- DOM: 129 days
- Square Feet: 1772
- Bedrooms: 3
- Baths: 2
- Half Baths: 1
- Garage: 2
- City: PUNTA GORDA
- Zip Code: 33980
- Year Built: 2023
One or more photo(s) has been virtually staged. Brand-new modern construction with no HOA and no CDD! This beautiful home offers 3 bedrooms, 2.5 bathrooms, a bonus room, and a 2-car garage with 1,772 square feet of heated living space. Enjoy an open-concept floor plan featuring high tray ceilings, French doors, and plenty of natural light throughout. The modern kitchen includes solid surface countertops, new wood cabinetry, luxury vinyl flooring, and stainless steel appliances. The spacious primary suite features two walk-in closets, tray ceilings, and a private bathroom with a stylish walk-in shower. A large sliding glass door leads to a covered back porch and spacious backyard, perfect for entertaining and outdoor enjoyment. This home also comes with a one-year builder's warranty. The builder is offering $10,000 toward closing costs with an acceptable offer. A rare opportunity to own a brand-new home with no restrictions - the possibilities are endless! 3304 Glencove St. On the right side is also active and available from the same builder.
Misc Info
Subdivision: Port Charlotte Sec 013
Annual Taxes: $555
Lot Size: 0 to less than 1/4
Request the MLS data sheet for this property
Home Features
Appliances: Dishwasher, Disposal, Electric Water Heater, Microwave, Range, Refrigerator
Flooring: Luxury Vinyl, Tile
Air Conditioning: Central Air
Exterior: French Doors, Lighting
Room Dimensions
Schools
- Elementary: Peace River Elementary
- High: Charlotte High
- Map
- Walk Score
- Street View








































