- Home
- News
- Popular Property Categories
- Anna Maria Island Real Estate
- Bedroom Communities
- Bradenton Real Estate
- Charlotte Harbor Real Estate
- Downtown Sarasota Condos
- Ellenton Real Estate
- Englewood Real Estate
- Golf Community Real Estate
- Lakewood Ranch Real Estate
- Lido Key Condos
- Longboat Key Real Estate
- Luxury Real Estate
- New Homes for Sale
- Palmer Ranch Real Estate
- Palmetto Real Estate for Sale
- Parrish Real Estate
- Siesta Key Condos
- Siesta Key Homes and Land
- Venice Florida Real Estate
- West of the Trail
- Advanced Search Form
- Featured Listings
- Buyer or Seller?
- Our Company
- Featured Videos
- Login
487 Loma Linda, North Port, Florida
List Price: $210,000
MLS Number:
TB8482870
- Status: Active
- DOM: 36 days
- Square Feet: 1352
- Bedrooms: 2
- Baths: 2
- Garage: 2
- City: NORTH PORT
- Zip Code: 34287
- Year Built: 1986
- HOA Fee: $191
- Payments Due: Monthly
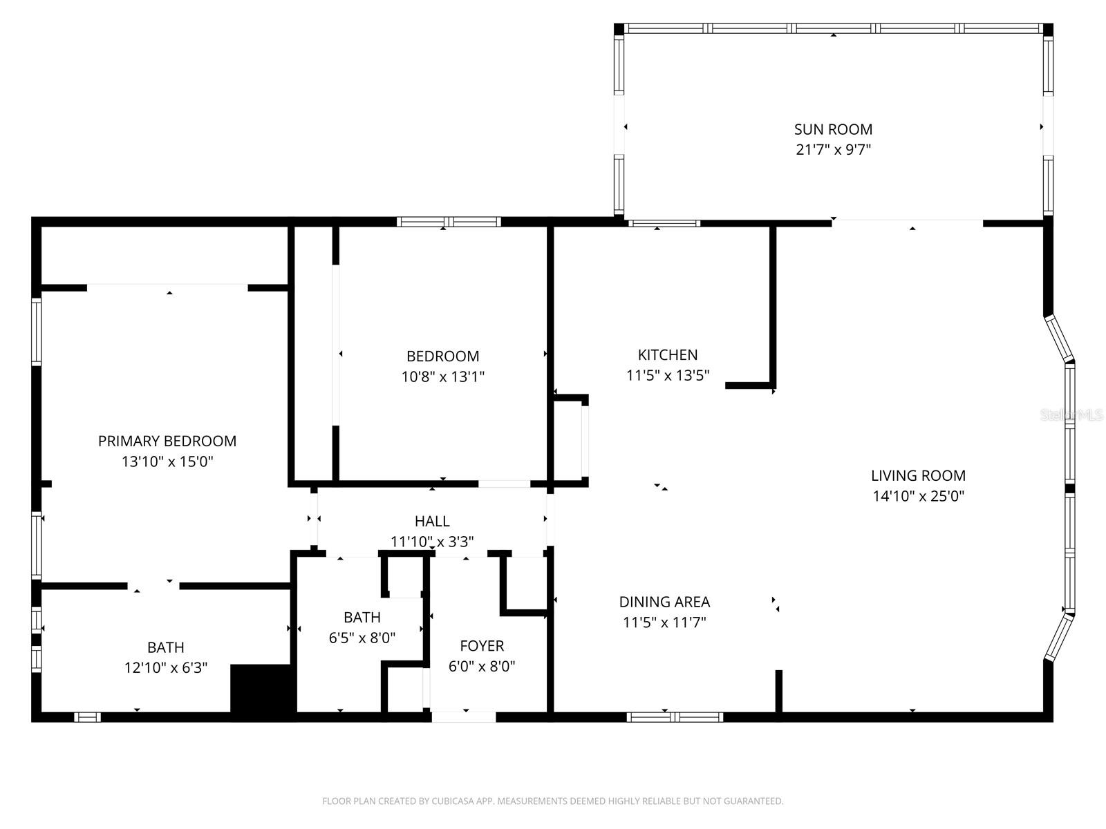
Enjoy the La Casa lifestyle in this charming, well-kept two-bedroom, two-bathroom home. A new carport and long driveway lead to an expanded utility room with a workbench, storage, washer, dryer, and a deep sink. The entryway includes a bench with storage underneath. The spacious kitchen offers a double pantry, breakfast bar, appliances, and a pass-through window to the Florida room. Next to the kitchen, the dining room has a built-in hutch for your special items. The bright living room features a sliding door to the glass-enclosed Florida room, which is cooled by a wall A/C unit and has doors to the front walkway and a patio area. The guest bedroom has a large wall-to-wall closet, and the guest bathroom includes an accent wall, vanity, tub/shower combo, and linen closet. The primary bedroom has a large walk-in double closet, and the ensuite bathroom offers a garden tub, double-sink vanity with tiled countertop, wood accent walls, and a spacious walk-in shower. The roof was replaced in 2023, and the water heater is about four years old. This lovely home also includes A/C, a humidistat, ceiling fans, and vaulted ceilings throughout. Exclusions are Tiffany Lamps, collectibles and wall decor. A beautifully maintained home. La Casa offers the ultimate lifestyle on Florida's Gulf Coast and is located between Sarasota and Fort Myers. It is convenient for shopping, sightseeing, golfing, fishing, and boating, as well as all the culture and elegance for which Southwest Florida area is noted. Residents and visitors enjoy the warmth of Southwest Florida winters in a relaxed and unhurried environment far removed from the hustle of Florida's east coast. You'll be surrounded by mature lush landscaping which demonstrates the utmost level of care our property receives from residents and management. Wireless Internet (Wi-Fi) is available at the Clubhouse, Activity Building, and Recreation Hall area where our pools and spas are located, so you can catch some rays while you catch up on your email! La Casa is a friendly, family community. You will be away from the hustle and bustle except when you want to be part of it. Come for a visit to this self-contained oasis and see for yourself why La Casa is the ultimate destination for both snowbirds and year-round residents!
Misc Info
Subdivision: La Casa Mhp Co-op
Annual Taxes: $1,955
HOA Fee: $191
HOA Payments Due: Monthly
Age Restrictions: 1
Lot Size: 0 to less than 1/4
Request the MLS data sheet for this property
Home Features
Appliances: Dishwasher, Disposal, Dryer, Electric Water Heater, Ice Maker, Microwave, Range, Range Hood, Refrigerator, Washer
Flooring: Carpet, Luxury Vinyl, Tile
Air Conditioning: Central Air, Humidity Control
Exterior: Lighting, Private Mailbox, Rain Gutters, Storage
Room Dimensions
- Map
- Walk Score
- Street View












































































